Locales Alcoy
Sugerencias para ti
Novedades
Local venta
Recién pintado y con suelo porcelánico imitación madera. Es cuadrado con un pilar en medio. Dispone de baño con ducha y un patio exterior. Posibilidad de cambio de uso a vivienda de 3 habitaciones, 2 baños y patio. Casi 6 metros de altura. Mucha luz natural y ventilacion cruzada. Caben 8 coches. Zona tranquila con muchas posibilidades. Trasteros, peluquería, danza, sala multiusos, posibilidad de 2 entradas y partirlo en 2 locales. Al lado de la Rosaleda y Alameda.
Local en alquiler
Alquiler de local de 120 m². Espacio diáfano de 19 m de largo por 6 m de ancho, ideal para almacén, taller o actividad profesional. Dispone de altillo y aseo en perfecto estado. Gran puerta de acceso de 3 m de ancho por 4 m de alto, perfecta para entrada de vehículos o mercancía. Local bien conservado y listo para entrar. Zona de batoy

Alquilo Local
Se Alquila Local de + de 500m2 en la calle Music Goncal Blanes antiguo Garage Se puede utilizar como almacen o aparcamiento o pequeño taller de reparacion personal privado.
Alquiler local comercial Alcoy
Local comercial en Alcoy disponible para alquiler. Ideal para negocio de hostelería. - Dispone de barra de bar. - Suelo de baldosas. - Buena iluminación natural. - Dos baños - Cocina - Almacén

Traspaso bar-cafetería
Traspaso local totalmente equipado para bar-cafetería , con mobiliario , stok de bebidas, vajilla, electrodomésticos, licencia, cumple toda la normativa. También tiene clientela.
Local
Local en zona norte con 2 persianas al exterior y comunica directamente con el centro de alcoy próximamente será reformado todo el edificio y conjunto del barrio sagrado corazón con lo cual sería interesante como loft
Local comercial en Alcoy
Local comercial, zona Santa Rosa. 120 m2. Con agua y luz. Antigua heladería. Altillo. Ventana trasera. Particular, no inmobiliaria. Precio Negociable.
Se vende local
Aprovecha esta oportunidad facilidades , local con su licencia en regla, ofrece una gran oportunidad. El espacio es amplio y luminoso, perfecto para cualquier tipo de negocio de hostelería, restauración, comida rapida, viniteca, cafeteria.La ubicación es inmejorable, con mucho tránsito peatonal y de vehículos. Además, cuenta con todas las instalaciones necesarias para comenzar a operar de inmediato. Sin duda, una excelente inversión para el futuro. Sirve para comercio, cambio de uso, tienda, conidas para llevar , kebab. San jorge, fiestas moros y cristianos.
Local en Alquiler - Oficina en Alcoy
Espacio comercial disponible para alquilar en Alcoy. Ideal para establecer tu negocio.precio a consultar +34 632 70 95 07
Local comercial en venta en Alcoy/Alcoi
Se vende local comercial en zona ensanche, cerca de la rosaleda. Superficie de 80 m2 ideal para reformar y adaptarlo a tus necesidades. [IW].
Local comercial en alquiler en Alcoy/Alcoi
Local en Alquiler y Venta en Alcoi - Oportunidad Única Descubre este espectacular local chaflán en una de las zonas más privilegiadas de Alcoi. Con 540 m² construidos, este amplio espacio ha sido diseñado para adaptarse a diversas necesidades comerciales. El local dispone de dos estancias y dos baños, ofreciendo comodidad tanto para el personal como para los clientes. Su amplia zona destinada a salón comedor permite crear un ambiente acogedor y atractivo. Además, su ubicación a pie de calle asegura una gran visibilidad y flujo de personas, lo que representa una ventaja significativa para cualquier negocio. Este inmueble, construido en 1978, también ofrece la posibilidad de ser transformado en cualquier otro tipo de negocio, gracias a su versatilidad y espacio amplio. No dejes pasar la oportunidad de invertir en un local con tanto potencial. ¡Contáctanos para más información y ven a verlo!
Local comercial en alquiler en Alcoy/Alcoi
Se alquila local en centro comercial Oliver, ideal para centro de estética o centro de masajes, despacho profesional u oficina. El centro comecial dispone de 2 cuatros de baño, alarma y persiana motorizada. Instalaciones a normativa. GASTOS COMUNITARIOS INCLUIDOS EN EL PRECIO. Dispone de agua.
Local comercial en alquiler en Alcoy/Alcoi
LOCAL SITUADO EN EL CENTRO DE ALCOY PARA FIESTAS El local se encuentra pasado el puente de san jorge, de unos 80m2, alquiler desde el día de la gloria hasta pasar fiestas de moros y cristianos, dispone de luz, baño, amplio, ideal para fiestas como guardarropas, por ejemplo, muy bien ubicado en pleno centro a escasos minutos de la plaza españa a pie.
Local comercial en alquiler en Alcoy/Alcoi
LOCAL COMERCIAL EN ZONA CENTRO Os presentamos este local de 89m2 en la zona centro de Alcoy. Este local hace esquina y proporciona visibilidad por estar a pie de calle y sus escaparates luminosos. Se ubica al lado de la plaza Pintor Gisbert y frente a un parking para mayor comodidad de los clientes. Distribución del local: - La primera estancia actualmente está dedicada zona de barbería, con los escaparates y mucha iluminación. Cuenta con aire acondicionado. - La segunda estancia proporciona más intimidad, dedicada actualmente a salón de tatuajes. También cuanta con una cocina con extractor de humos. - Un cuarto de baño simple. - Cuenta con una zona de almacenaje en armarios discretos. El local está reformado y listo para empezar tu proyecto. Una oportunidad única en pleno corazón de Alcoy. VEN A VERLA SIN COMPROMISO _ En la inmobiliaria Núcleo Alcoy te acompañamos de principio a fin en tu búsqueda. Nos situamos en la Avda. Alameda Camilo Sesto 64. Alcoy. Ven a conocernos en nuestro amplio horario comercial: de lunes a viernes de 9:30h a 14:00h y de 16:30h a 20:00h y sábados de 10:00h a 14:00h. _ Núcleo gestiones inmobiliarias; Somos 25 oficinas y mas de 80 asesores inmobiliarios a su disposición. Oficinas en Alicante, Sant Joan d´Alacant y Torrevieja. Además de oficinas en Valencia, Sevilla y Zaragoza. Realizamos valoraciones gratuitas. Les garantizamos el mejor servicio. * cámara de realidad virtual * promoción premium en los mejores portales inmobiliarios * revista inmobiliaria bimensual con tirada de 15.000 copias. * departamento de intermediación financiera. Hasta el 100% de la hipoteca. * base de datos de compradores compartida por las 5 oficinas y filtrada según afinidad. * profesionalidad, compromiso y experiencia.
Local comercial en venta en Alcoy/Alcoi
INMOBILIARAI NUMERO UNO Se vende local, de unos 85 m2, distribuidos en 2 plantas, en Zona Norte de Alcoy. Local ideal para la instalación de negocio, oficina, centro de estética.... Reforma integral convertido en vivienda, sin cédula de habitabilidad. 2 Baños completos 2 Habitaciones Salón unido a cocina (con electrodomésticos incluidos) Trastero grandes dimensiones Aparato de aire acondicionado, suelos tarima y gres, paredes y techo aislados con lana de roca. Precio: 75.000 € TE ESPERAMOS EN NUESTRAS OFICINAS AVENIDA LA ALAMEDA CAMILO SEXTO, 74 ALCOY.
Local comercial en venta en Alcoy/Alcoi
Presentamos una excelente oportunidad de inversión con este local comercial en venta ubicado en el municipio de Alcoy, provincia de Alicante. Este espacio destaca por su generosa superficie de 151 m2 y su estratégica ubicación en esquina, lo que garantiza visibilidad y acceso desde múltiples direcciones. El local se distribuye eficientemente en varias estancias, ideal para diversas actividades comerciales. Dispone además de un acceso directo e independiente desde la calle principal. Situado dentro del núcleo urbano, disfrutará de buenos accesos viales que facilitan tanto la llegada como salida hacia las principales arterias del municipio. En los alrededores encontrará una variedad completa de servicios esenciales: supermercados, restaurantes donde disfrutar buena gastronomía, instalaciones deportivas perfectas para fomentar estilos saludables; centros educativos cercanos ideales para familias jóvenes; así como otros negocios comerciales complementarios que aseguran dinamismo a la zona. No deje pasar esta gran ocasión y descubra todas las posibilidades local comercial.
Local comercial en venta en Alcoy/Alcoi
Oportunidad única de adquirir este local comercial en venta en Alcoy, Alicante. Ofrecemos este local con una superficie de 275.99 m2, ubicado estratégicamente en la entreplanta de un edificio construido en 1972 y situado dentro del casco urbano de la ciudad. Esta localización privilegiada garantiza una alta visibilidad y acceso fácil gracias a su proximidad al tráfico proveniente de la carretera nacional hacia Alicante. En las cercanías encontrará diversas facilidades como supermercados, restaurantes, instalaciones deportivas y centros educativos que fomentarán el flujo constante de clientes potenciales para cualquier tipo de negocio o actividad profesional que desee emprender aquí. Con múltiples opciones para adaptar este local según sus necesidades específicas e ideales tanto para inversores como empresarios. No pierda esta oportunidad excepcional! Contáctenos para recibir más información detallada sobre esta propiedad.
Local comercial en venta en Alcoy/Alcoi
Presentamos un local comercial en la vibrante localidad de Alcoy, Alicante. Este inmueble se encuentra estratégicamente situado en la planta baja de un edificio residencial y cuenta con una amplia superficie total de 77 m2. Su ubicación es privilegiada dentro del casco urbano, rodeado por una gran afluencia peatonal y cercano a diversos servicios esenciales como centros educativos, comercios locales y centros sanitarios. Además, está a tan solo unos minutos caminando del ayuntamiento de Alcoy. El acceso inmediato desde la calle garantiza visibilidad para cualquier tipo de negocio que desee establecerse aquí. La buena conexión mediante las vías N-340 y A-7 permite facilitar el desplazamiento tanto para clientes como proveedores. Este local no sólo representa una excelente oportunidad empresarial sino también puede ser considerado como inversión ideal para alquiler o desarrollo profesional gracias a su fácil adaptabilidad. Nuestros expertos están listos para ofrecerle asesoría personalizada sobre este atractivo inmueble; no dude en solicitar más información hoy mismo.
Local comercial en venta en Alcoy/Alcoi
¡Atención empresarios y emprendedores! Se VENDE Local en Alcoy, situado en Av. Elx. ¡No dejes pasar esta excelente oportunidad para montar tu negocio en un local de primer nivel! Te ofrecemos un espacioso local comercial en una de las zonas más dinámicas y de fácil acceso de todo Alcoy. Ideal para cualquier tipo de actividad comercial. - El local se encuentra a pie de calle y dispone de una zona de escaparate en la entrada. - El espacio principal es totalmente diáfano únicamente dividido actualmente por Lamas de madera, lo que ofrece gran versatilidad para adaptar la distribución según tus necesidades. - Cuenta con 6 grandes ventanales, que aportan abundante luz natural durante todo el día, creando un ambiente luminoso y agradable. - incluye oficina independiente y un cuarto de baño, lo que lo convierte en un local muy funcional. Una oportunidad única para establecer tu negocio en una ubicación estratégica de Alcoy. VEN A VERLA SIN COMPROMISO. _ En la inmobiliaria Núcleo Alcoy te acompañamos de principio a fin en tu búsqueda. Nos situamos en la Avda. Alameda Camilo Sesto 64. Alcoy. Ven a conocernos en nuestro amplio horario comercial: de lunes a viernes de 9:30h a 14:00h y de 16:30h a 20:00h y sábados de 10:00h a 14:00h. _ Núcleo gestiones inmobiliarias; Somos 25 oficinas y mas de 80 asesores inmobiliarios a su disposición. Oficinas en Alicante, Sant Joan d´Alacant y Torrevieja. Además de oficinas en Valencia, Sevilla y Zaragoza. Realizamos valoraciones gratuitas. Les garantizamos el mejor servicio. * cámara de realidad virtual * promoción premium en los mejores portales inmobiliarios * revista inmobiliaria bimensual con tirada de 15.000 copias. * departamento de intermediación financiera. Hasta el 100% de la hipoteca. * base de datos de compradores compartida por las 5 oficinas y filtrada según afinidad. * profesionalidad, compromiso y experiencia.
Local comercial en venta en Alcoy/Alcoi
¡Oportunidad única en el corazón de Alcoy! Este espectacular local en venta se presenta como un espacio ideal para emprendedores y negocios en crecimiento. Con una altura impresionante de 4,50 m y una puerta de 4 m, este local ofrece una gran versatilidad para adaptarse a diferentes tipos de actividades comerciales. Con 286 m² construidos y 280 m² útiles, el local cuenta con una amplia estancia que puede ser fácilmente transformada según las necesidades del futuro propietario. Su ubicación privilegiada en una zona muy céntrica garantiza un alto tráfico de vehículos y peatones, lo que se traduce en una excelente visibilidad comercial. Este bajo, construido en 1945, mantiene un encanto especial y está listo para ser reformado a tu gusto. La fachada de 7 metros lineales asegura que tu negocio no pase desapercibido. Además, al estar a pie de calle, la accesibilidad es inmejorable. ¡No dejes pasar esta oportunidad de establecer tu negocio en un lugar estratégico!
Local comercial en venta en Alcoy/Alcoi
¡Oportunidad única de adquirir el bar "MIAMI! Este atractivo local se encuentra en una zona de alta densidad de población, lo que garantiza un flujo constante de clientes. Con 85 m² construidos y 80 m² útiles, el espacio está diseñado para maximizar la comodidad y la funcionalidad. Totalmente equipado y con mobiliario incluido, este bar cuenta con una cocina completamente equipada y un almacén, ideal para emprender tu negocio de inmediato. La licencia para operar está vigente, lo que te permitirá comenzar a trabajar sin complicaciones. Además, su ubicación estratégica cerca del mercado municipal y colegios asegura una clientela variada y constante. Con un escaparate de 5 metros lineales, tu negocio tendrá una excelente visibilidad a pie de calle. El local también dispone de aire acondicionado, sistemas de alarma y salida de humos, garantizando un ambiente seguro y cómodo tanto para los clientes como para el personal. No dejes pasar esta oportunidad de invertir en un negocio con gran potencial. ¡Contáctanos para más información y ven a conocerlo!
Local comercial en venta en Alcoy/Alcoi
Oportunidad única de adquirir un local comercial de 135 m2 en venta, situado estratégicamente en el corazón de Alcoy, Alicante. Este amplio espacio cuenta con varias estancias y acceso directo desde la calle, lo que facilita su operatividad para cualquier tipo de negocio. Su ubicación privilegiada dentro del núcleo urbano garantiza una excelente visibilidad y afluencia peatonal. Además, dispone de accesos por carretera y está bien conectado mediante transporte público gracias a las cercanas paradas de autobús y estación ferroviaria. En los alrededores encontrará todos los servicios necesarios como supermercados, restaurantes variados, instalaciones deportivas e importantes centros educativos; todo ello contribuye a crear un entorno ideal para desarrollar actividades comerciales exitosas. Con nuestros recursos le orientaremos sobre las múltiples posibilidades que ofrece este local para adaptarse a sus necesidades empresariales específicas. No deje pasar esta oportunidad: comience su nueva actividad ahora mismo pidiendo más información personalizada con uno de nuestros asesores expertos.
Local comercial en venta en Alcoy/Alcoi
¡AMPLIO LOCAL COMERCIAL EN AVENIDA PRINCIPAL DE ALCOY! Os presentamos este fantástico local en la avenida principal de Alcoy, compuesto actualmente por 4 locales unidos en uno solo, lo que le aporta una gran versatilidad y múltiples posibilidades de uso. Gracias a su ubicación estratégica, en una de las zonas con mayor tránsito peatonal y rodado de la ciudad, este local ofrece la máxima visibilidad y un entorno inmejorable rodeado de comercios consolidados, oficinas, bancos y servicios. DISTRIBUCIÓN DEL LOCAL: Planta baja - Recibidor de entrada, perfecto como zona de recepción. - Sala interior contigua a la entrada. - Dos salas grandes a continuación (actualmente arrendadas, generando rentabilidad inmediata). - A la derecha, una sala interior y un pasillo corto que da acceso a otra sala amplia interior. - A la izquierda, un cuarto de baño sencillo y una estancia dedicada a almacén. - En el centro, una escalera de caracol que conecta con la planta superior. Planta superior - Gran sala diáfana y muy luminosa, ideal como espacio polivalente. - Cocina sencilla equipada con fregadero. - Salida directa a una terraza privada de gran tamaño, que aporta un valor añadido único al local. EQUIPAMIENTO * Varias estancias equipadas con aire acondicionado. * Radiador de oficina en la entrada, como sistema de calefacción. * Espacios amplios y versátiles, con luz natural en la planta superior. Este local es ideal tanto para negocios propios como para inversores, gracias a su gran superficie, la distribución flexible y el atractivo de tener parte ya arrendada. Una oportunidad única en pleno corazón de Alcoy. VEN A VERLA SIN COMPROMISO _ En la inmobiliaria Núcleo Alcoy te acompañamos de principio a fin en tu búsqueda. Nos situamos en la Avda. Alameda Camilo Sesto 64. Alcoy. Ven a conocernos en nuestro amplio horario comercial: de lunes a viernes de 9:30h a 14:00h y de 16:30h a 20:00h y sábados de 10:00h a 14:00h. _ Núcleo gestiones inmobiliarias;
Local comercial en venta en Alcoy/Alcoi
�️ ¡Bar montado en pleno corazón de Alcoy - listo para abrir YA! En venta local de 150 m2 totalmente equipado como bar, ubicado junto a la Seguridad Social, en una de las zonas más transitadas y conocidas de la ciudad. � Con licencia de funcionamiento en vigor � Listo para empezar mañana - sin reformas, sin esperas � Servicios activos: luz, agua y gas natural Incluye: Cocina profesional completamente equipada Barra montada y funcional Salones/comedores amueblados Mini oficina 2 baños (hombre/mujer), adaptados a normativa Ducha para empleados Almacén independiente junto al local � Ubicación estratégica con clientela consolidada. � A solo 45 min de Alicante y 1 h de Valencia � Visítalo con Incoal Inmobiliaria - C/ Pòsit 12, Albaida, Valencia � Tel:.
Local comercial en venta en Alcoy/Alcoi
¡ POSIBLE OCUPACIÓN DEL INMUEBLE, NO SE PUEDE VISITAR NI FINANCIAR! OPORTUNIDAD VENTA SIN POSESIÓN - CESIÓN DE REMATE! El inmueble no se puede visitar interiormente. Este tipo de compra no admite hipoteca. Lea LAS CONDICIONES a continuación. Magnífica oportunidad de local comercial en Calle Goncal Barrachina en Alcoy (Alicante). Tiene una superficie de 1661 m2 construidos y 1322 útiles. Cuenta a su alrededor con una inmensa variedad de servicios, tanto de ocio como de necesidad. El inmueble no se puede visitar por desconocer su estado de ocupación, así como su distribución y estado de conservación interior. Al tratarse de una Cesión de Remate derivada de una subasta judicial, el importe de la cesión deberá ser aprobada por el juzgado competente. LA FOTO NO IDENTIFICA LA PROPIEDAD EXACTA DE VENTA, SOLO INFORMA DE LA ZONA. CONDICIONES ESPECIALES DE COMPRA: En este tipo de adquisiciones se requieren una serie de requisitos detallados a continuación: 1º. - No permite hipoteca sobre el inmueble, los bancos no financian estas operaciones. 2º. - LA PROPIEDAD NO SE PUEDE VER INTERIORMENTE, pero sí saber su ubicación exacta (no disponemos de fotos del interior). 3º. - La obtención de las llaves dependerá del curso del procedimiento o la posible negociación con los ocupantes. 4º. - En el caso de que el cliente lo solicite, nuestros profesionales (abogado y procurador) podrán atender su procedimiento judicial hasta la obtención de llaves. Los honorarios de este servicio no están incluidos en el precio, consúltenos. 5º. - La ley exige al adjudicatario poner al día comunidad y IBI de los últimos 4 años en caso de que exista deuda (desconocemos deuda). 6º. - Gastos del comprador: ITP y registro. NO COBRAMOS COMISIÓN AL COMPRADOR. � Encuentra tu hogar ideal con nosotros � Descubre nuestras mejores ofertas en inmuebles y contacta con nosotros directamente a través de WhatsApp en nuestra web � o vía telefónica al Teléf. � Síguenos en redes sociales para estar al día con
Local comercial en venta en Alcoy/Alcoi
¡Oportunidad única! Se vende amplio local comercial en la Zona Norte de Alcoy Local de aproximadamente 400 m², resultado de la unión de dos locales, ubicado en una de las calles más comercial y transitada. Actualmente en funcionamiento y perfectamente acondicionado para iniciar actividad de forma inmediata. Ideal para negocio multiprecio, bazar, tienda de ropa, supermercado, o franquicia comercial gracias a su excelente visibilidad y distribución. Características principales: • 400 m² construidos en planta calle • 2 baños, uno de ellos adaptado para personas con movilidad reducida • Probador incorporado • Salida de emergencia • Aire acondicionado por conductos en techo • Sistema de protección contra incendios instalado Ventajas: * Ubicación estratégica y consolidada comercialmente * Gran afluencia peatonal * Local listo para empezar actividad sin necesidad de reformas � Precio de venta: 240.000 € No dejes pasar esta excelente inversión. Para más información o para agendar una visita, contáctanos sin compromiso.
Local comercial en venta en Alcoy/Alcoi
Estupendo local en una de las zona con mas desndidad de poblacion de alcoy, muy paso de coches jsto por la fachada del local 2 de los colegios mas importantes de alcoy esatn a muy poca distancia del local.
Local comercial en venta en Alcoy/Alcoi
¡Oportunidad única para emprendedores del sector de la belleza! Este local acondicionado como peluquería o salón de belleza está listo para recibir a tus clientes. Con una superficie total de 130 m² construidos y 120 m² útiles, cuenta con tres estancias amplias y dos baños, todo distribuido en una planta a pie de calle. La ubicación es inmejorable, en una calle con alto tránsito de vehículos y en una zona de alta densidad poblacional, lo que garantiza un flujo constante de potenciales clientes. El local, construido en 2002, dispone de un escaparate de 4 metros lineales que brinda una excelente visibilidad para atraer a nuevos clientes. Además, cuenta con un almacén que facilita la gestión del negocio. Si buscas un espacio donde desarrollar tu pasión por la estética y el cuidado personal, este es el lugar ideal. No dejes pasar esta oportunidad de inversión con un potencial de éxito asegurado. ¡Contáctanos para más información y ven a descubrir tu nuevo negocio!
Local comercial en venta en Alcoy/Alcoi
Local comercial en zona ensanche, montado como bar, con licencia definitiva, para empezar a trabajar desde el primer día, son 144m2 de local - extracción de humos- aire acondicionado, equipo de música- ventanas a la calle con mosquiteras. posibilidad de poner terraza en la calle. Altillo de 100m2 - 3 cuartos de baño. Posibilidad de reconvertirlo en vivienda. [IW].
Local comercial en venta en Alcoy/Alcoi
¡ POSIBLE OCUPACIÓN DEL INMUEBLE, NO SE PUEDE VISITAR NI FINANCIAR! OPORTUNIDAD VENTA SIN POSESIÓN - CESIÓN DE REMATE! El inmueble no se puede visitar interiormente. Este tipo de compra no admite hipoteca. Lea LAS CONDICIONES a continuación. Magnífica oportunidad de local en Calle Perú situado en Alcoy (Alicante). Tiene una superficie de 359 m2 construidos y 359 m2 útiles. Cuenta a su alrededor con una inmensa variedad de servicios, tanto de ocio como de necesidad. El inmueble no se puede visitar por desconocer su estado de ocupación, así como su distribución y estado de conservación interior. Al tratarse de una Cesión de Remate derivada de una subasta judicial, el importe de la cesión deberá ser aprobada por el juzgado competente. LA FOTO NO IDENTIFICA LA PROPIEDAD EXACTA DE VENTA, SOLO INFORMA DE LA ZONA. CONDICIONES ESPECIALES DE COMPRA: En este tipo de adquisiciones se requieren una serie de requisitos detallados a continuación: 1º. - No permite hipoteca sobre el inmueble, los bancos no financian estas operaciones. 2º. - LA PROPIEDAD NO SE PUEDE VER INTERIORMENTE, pero sí saber su ubicación exacta (no disponemos de fotos del interior). 3º. - La obtención de las llaves dependerá del curso del procedimiento o la posible negociación con los ocupantes. 4º. - En el caso de que el cliente lo solicite, nuestros profesionales (abogado y procurador) podrán atender su procedimiento judicial hasta la obtención de llaves. Los honorarios de este servicio no están incluidos en el precio, consúltenos. 5º. - La ley exige al adjudicatario poner al día comunidad y IBI de los últimos 4 años en caso de que exista deuda (desconocemos deuda). 6º. - Gastos del comprador: ITP y registro. NO COBRAMOS COMISIÓN AL COMPRADOR. � Encuentra tu hogar ideal con nosotros � Descubre nuestras mejores ofertas en inmuebles y contacta con nosotros directamente a través de WhatsApp en nuestra web � o vía telefónica al Teléf. � Síguenos en redes sociales para estar al día con nuevas oportun
Local comercial en venta en Alcoy/Alcoi
Se vende local (era un bar) de 140 m2, tiene la zona de la cocina con EXTRACCIÓN DE HUMOS, con zona de comedor y la barra. Dos aseos y 2 puertas de acceso. Tiene 5 mts. de fachada y una altura de 3mts. Tiene luz y agua. NO TIENE LICENCIA DE BAR En una de las mejores calles del Barrio de Santa Rosa, zona de muchos comercios y servicios. Este inmueble está sujeto a cambios de precio o retirada del mercado sin previo aviso. La información de este anuncio en su totalidad (Fotos, texto o cualquier otro contenido del mismo) se muestra a título informativo y no contractual y no es vinculante, dado que la información es ofrecida por terceros y puede contener errores. El precio no incluye lo siguiente: honorarios de la agencia inmobiliaria, ITP y otros gastos de la Compraventa (Notaria, Gestoría y registro). Negociación y mediación para conseguir un acuerdo que beneficie a las dos partes. Estudio Financiero gratuito que le conseguirá la mejor financiación y préstamo hipotecario (Pudiendo llegar hasta el 100%+gastos). No trabajamos para el banco, TRABAJAMOS PARA TI. Gestión de los documentos y asesoramiento legal y fiscal. Acompañamiento durante la firma de las arras y del contrato final de compraventa ante el notario para ayudar a verificar que todo sea correcto. Nuestro objetivo es encontrar siempre la mejor solución adaptada a todas las necesidades de nuestros clientes. Te invitamos a venir a visitarlo; estaremos encantados de atenderte y mostrarte todas las posibilidades que este piso tiene para ofrecer. Si quiere vender su casa sin problemas al mejor precio, hemos creado un formulario de contacto para poder asesorarle y tasar su piso totalmente GRATIS, contáctenos: Y si lo que quiere es ver más inmuebles de nuestra inmobiliaria en este portal de internet, puede pulsar en nuestro logo ( gestores inmobiliarios), allí, encontrará más inmuebles como éste o bien, visitar nuestra página web donde encontrará el piso que está buscando, entre en:.
Local comercial en venta en Alcoy/Alcoi
Local en zona tranquila de Santa Rosa, con 2 grandes persianas a la calle, techos muy altos, perfecto como garaje de coches, caravanas.. . con mucha luz natural. Muchas posibilidades. [IW].
Local comercial en venta en Alcoy/Alcoi
FINANCIACION NO DISPONIBLE ACTIVO NO VISITABLE. -. local en planta en la C Perú nº 27 de Alcoy. Superficie construida tresientos cincuenta y ocho metros y noventa y cuatro decímetros y un patio de ciento treinta y cinco metros cuarenta y seis metros cuadrados EL INMUEBLE NO SE PUEDE VISITAR, SU COMPRA REQUIERE TENER LA TOTALIDAD DEL DINERO, NO SE PUEDE PEDIR HIPOTECA. Subasta judicial finalizada, el banco vende su derecho a quedarse con el inmueble una vez finalizada la subasta. El inmueble no se puede financiar quien quiera optar a la compra del inmueble tiene que tener la totalidad del dinero ahorrado. El inmueble se entrega libre de cargas salvo el IBI y la comunidad de propietarios en caso de que exista, de las cuales se tendrá que hacer cargo el nuevo propietario. Si desea ampliar información sobre el proceso de cesión de remate y/o venta sin posesión no dude en contactar con nosotros. Solo para inversores, NO se puede financiar es necesario contar con el total del dinero para la compra. Si le interesa más información no dude en llamarnos, le ayudaremos a hacerse con este inmueble a muy buen precio y le guiaremos en los pasos a seguir para conseguirlo. Al no tratarse de una compraventa directa, el importe publicado ha de ser considerado como una orientación al precio por el cual puede quedarse con el inmueble.
Local comercial en venta en Alcoy/Alcoi
Inmueble sin posesión y sin acceso al interior. Las fotografías del interior y las características del activo, pueden no ajustarse al estado actual. NO COBRAMOS COMISIÓN DE INTERMEDIACIÓN AL COMPRADOR. Excelente oportunidad de adquirir en propiedad este amplio local comercial muy bien distribuido y con distintas dependencias, ofreciendo todo lo que necesitas para una vida cómoda y moderna. Desde el momento en que cruces la puerta de entrada, te sentirás acogido por su ambiente cálido, ubicado en la localidad de Alcoy, provincia de Alicante. Este local comercial, cuenta con una muy buena visibilidad tanto por su ubicación como por su fachada a una de las avenidas principales de la localidad. En un barrio residencial consolidado con todos los servicios básicos necesarios. Su diseño diáfano y su distribución funcional permiten una fácil personalización según las necesidades específicas de tu negocio, ya sea para una tienda minorista, un restaurante, una oficina o cualquier otro tipo de actividad comercial. Hipoges es una plataforma inmobiliaria donde podrás acceder a miles de activos inmobiliarios de diferentes tipos como viviendas, locales comerciales, terrenos, nueva obra, tanto a nivel particular como para inversores. Hipoges cuenta con una amplia cartera de activos inmuebles tanto en España como en Portugal y Grecia. Esta propiedad está ocupada por terceros. No se puede visitar. No apta para compradores que requieran financiación hipotecaria. El comprador será responsable de los trámites y gastos relacionados con la desocupación del inmueble. La información proporcionada referente a la distribución y estructura puede no ajustarse a la realidad, ya que su verificación no ha sido posible. La distribución indicada se ha tomado en referencia a la distribución de activos de la zona. ¿Necesitas financiación? Te ofrecemos la posibilidad de financiaciones de hasta el 100% para la compra de este inmueble. Entra en Finanwin. com, haz tu simulación y obtén la mejor ofe
Local comercial en venta en Alcoy/Alcoi
Local comercial en venta en Alcoy (Alicante) con una superficie de 250 m². El local se encuentra en la planta baja de un edificio de 7 plantas. Consta de un recibidor, de varias estancias de gran amplitud, 2 cuartos de baño y cocina. La actividad comercial que se ha estado desarrollando en el local hasta la actualidad corresponde con la de una Escuela Infantil donde se puede apreciar la amplitud de las aulas y las salas destinadas al juego. La antigüedad del edificio data del año 1980 y el local deastaca por su amplia dimensión y por su excelente ubicación, a tan solo 1.000 metros del centro histórico de Alcoy. El municipio de Alcoy se encuentra a 45 minutos de la ciudad de Alicante, comunicada con ésta por carretera mediante la A7. Consulta nuestras condiciones de financiación hechas a tu medida a través de nuestro intermediario Twinkloo. Entra en Nolon para ver todos los inmuebles en venta. Referencia interna 226687.
Local comercial en venta en Alcoy/Alcoi
NO COBRAMOS COMISIÓN DE INTERMEDIACIÓN AL COMPRADOR Excelente oportunidad de adquirir en propiedad este local comercial para reformar en base a tus necesidades, situado en la planta baja de un edificio residencial de 5 plantas, muy bien distribuido en dos espacios rectangulares completamente diáfanos ubicado en la localidad de Alcoy, provincia de Alicante. De estructura de ladrillo y hormigón, techo plano bajo las viviendas y en la parte interior y más grande cubierta a dos aguas con estructura metálica gran altura, anteriormente destinado a aparcamiento. Perfecto para un espacio de negocio en el que se pueden desarrollar distintas actividades profesionales, con fachada a vía pública en tráfico rodado muy atractivo para la prosperidad de cualquier negocio. El entorno también es importante para atraer a los clientes y garantizar el éxito de un negocio. Es posible que desee buscar una ubicación cercana a otras empresas, tiendas o centros de ocio para aprovechar el tráfico de clientes existente en la zona. El entorno de Alcoy es de gran belleza natural, con paisajes de montaña, bosques, ríos y embalses. Es conocida por sus puentes, que superan las irregularidades del terreno en el que se asienta la ciudad, además, de por sus fiestas y su gastronomía Ofrece todos los servicios necesarios para la vida diaria de sus residentes. Para llegar a Alcoy, se puede acceder por diferentes vías. Desde Valencia, el acceso a Alcoy se realiza por la A-7, dirección N-340 hasta Alcoy. Desde Alicante, el acceso es exactamente el mismo, tomando la A-7 dirección N-340 Alcoy. También se puede llegar a Alcoy por ferrocarril, desde Barcelona, Lleida o Madrid. Hipoges es una plataforma inmobiliaria donde podrás acceder a miles de activos inmobiliarios de diferentes tipos como viviendas, locales comerciales, terrenos, nueva obra.. . tanto a nivel particular como para inversores. Hipoges cuenta con una amplia cartera de activos inmuebles tanto en España como en Portugal y Grecia. ¿Necesi
Local comercial en venta en Alcoy/Alcoi
En venta local en planta sótano, apto para varias unidades de parking, además de varias unidades de trasteros, con acceso por una rampa abierta a la calle Pintor Cabrera, 3. Ocupa una superficie construida de 929m². Ideal para inversor, dada la ubicación en la que se encuentra en el centro de Alcoy. Cerca de servicios y comercios, transporte público, acceso a principales vías.. . NO LO DUDE Y VISITELO! CONTACTE CON NOSOTROS ESTAREMOS ENCANTADOS DE ATENDERLE!
Local comercial en venta en Alcoy/Alcoi
Las fotografías y las características del activo pueden no ajustarse al estado actual. Ideal para Invertir. NO COBRAMOS HONORARIOS AL COMPRADOR. Al tratarse de una cesión de remate, el comprador, adquiere el derecho a la propiedad del bien subastado en las mismas condiciones en que se adjudicó al cedente original SIN NECESIDAD DE PARTICIPAR DE LA PUJA DE LA SUBASTA, asumiendo las obligaciones que puedan estar pendientes como (cargas, IBI, comunidad, entre otros). Dado que el inmueble no puede ser visitado impide que puedan realizarse la tasación oficial, por lo que mientras perdure la situación, no podrá ser hipotecado. En consecuencia, se recomienda que el interesado se asesore con un profesional antes de adoptar la decisión de compra. Por relación precio - valor, la presente representa una excelente oportunidad de inversión, al adquirir esta propiedad ubicada en ALCOY, ALICANTE. No dejes pasar la oportunidad, para más información puedes contactarnos por teléfono, correo, mediante el portal inmobiliario y/o páginas web. El Propietario de la Vivienda Puede Realizar Ajustes de Precios sin previo aviso (pueden bajar o subir de acuerdo con las condiciones del mercado. Somos una empresa Inmobiliaria con posicionamiento en España y en el Mundo, estas cordialmente a conocer más de nosotros. Estamos en +84 países con +134.000 Agentes inmobiliarios. Es una propiedad de procedencia bancaria. Cualquier duda pueden consultar con nosotros, será un placer atenderles. No dejes pasar la oportunidad, mañana puede ser tarde. ¡Te esperamos! Los datos indicados son de carácter informativo, sin valor contractual. Los impuestos no están incluidos.. . [IW].
Local comercial en venta en Alcoy/Alcoi
¿Buscas un espacio con personalidad? Este local, antiguamente utilizado como jardín de niños/escuela infantil, ofrece varias salas, armarios y cocina, creando un entorno versátil y lleno de posibilidades para todo tipo de actividad. Características principales: Varias estancias amplias e independientes Armarios Cocina con muebles y un termo incorporado. Distribución versátil y luminosa. Perfecto para academias, centros de actividades, talleres creativos, despachos, estudios y más. Ubicación estratégica dentro de un pequeño centro comercial: El local se encuentra en un pequeño centro comercial céntrico de Alcoy, lo que garantiza visibilidad, tránsito y comodidad. Además, dispone de cierre hacia el interior del centro comercial, lo que aporta protección y seguridad adicional. Listo para transformarlo a tu gusto: Este espacio bien distribuido cuenta con todas las instalaciones necesarias para empezar a reformar, permitiéndote adaptarlo por completo a las necesidades de tu negocio. Barrio de Santa Rosa: Una zona con vida, servicios y todas las comodidades a pie de calle, impulsando el crecimiento de cualquier actividad comercial. ¿Estás listo para hacer de este luminoso local tu próximo proyecto? ¡Vamos a verlo! (ESTE PRECIO NO INCLUYE LOS GASTOS E IMPUESTOS POSTERIORES A LA FIRMA NOTARIAL).
Local comercial en venta en Alcoy/Alcoi
INMUEBLE SIN POSESION Y SIN ACCESO AL INTERIOR - SIN POSESION Y SIN ACCESO AL INTERIOR. Las fotografías y las características no identifican la propiedad exacta en venta, SOLO INFORMAN DE LA ZONA pueden no ajustarse al estado actual. Ideal para Invertir. NO COBRAMOS HONORARIOS AL COMPRADOR. Dado que el inmueble no puede ser visitado impide que puedan realizarse la tasación oficial, por lo que mientras perdure la situación, no podrá ser hipotecado. En consecuencia, se recomienda que el interesado se asesore con un profesional antes de adoptar la decisión de compra. No se puede realizar visita al interior de la propiedad, sin embargo representa una excelente oportunidad de inversión este piso ubicado en ALCOY - ALICANTE. No dejes pasar la oportunidad, para más información puedes contactarnos por teléfono, correo, mediante el portal inmobiliario y/o páginas web. El Propietario de la Vivienda Puede Realizar Ajustes de Precios sin previo aviso (pueden bajar o subir de acuerdo a condiciones del mercado). ***El comprador-adjudicatario asume la las cargas que deriven de comunidad e IBI. *** Somos una empresa Inmobiliaria con posicionamiento en España y en el Mundo, estas cordialmente a conocer más de nosotros. Estamos en +84 países con +134.000 Agentes inmobiliarios. Es una propiedad de procedencia bancaria. Cualquier duda pueden consultar con nosotros, será un placer atenderles. No dejes pasar la oportunidad, mañana puede ser tarde. ¡Te esperamos! Los datos indicados son de carácter informativo, sin valor contractual. Los impuestos no están incluidos.. . [IW].
Casa en venta en Alcoy/Alcoi
Inmueble sin posesión y sin acceso al interior. Las fotografías del interior y las características del activo pueden no ajustarse al estado actual. NO COBRAMOS COMISIÓN DE INTERMEDIACIÓN AL COMPRADOR Excelente oportunidad de adquirir esta Parcela urbana residencial de 569m2, aunque registralmente son 6.324, 35m2. De forma irregular, alargada, con una longitud de 55,10 metros y una anchura media de 11,70 metros. Tiene fachada a la calle Forn del Vidre, de 7,35 metros. Al este linda, con una parcela y un camino por medio, con el cauce del río Molinar. En el interior existen 2 edificaciones a reformar o derribar. Una de 321m2 y otra de 70 m2. La parcela está dentro del Sector 2- Casco Antiguo. -Ref. catastral: 9959326YH1895N0001ZX -Altura Máx. 12mt -Parcela mínima 60m2 -Fachada mínima 4,50m -Edificabilidad: 900m2 -Se podría construir tanto edificación plurifamiliar como unifamiliar. La parcela está en Alcoy, una localidad que cuenta con excelentes comunicaciones, conectándose con la ciudad de Alicante por la carretera N-340, y con Játiva-Valencia por el Norte, con enlaces a la A-3. También supone una de las principales vías de comunicación la autovia A7. Alcoy ofrece servicios médicos destacados con un hospital comarcal y varios centros de salud. Posee una amplia oferta educativa, incluyendo universidades. Su comercio combina tradición y modernidad. Está bien comunicado por la A-7 y carreteras locales, ideal para vivir. Hipoges es una plataforma inmobiliaria donde podrás acceder a miles de activos inmobiliarios de diferentes tipos como viviendas, locales comerciales, terrenos, nueva obra, tanto a nivel particular como para inversores. Hipoges cuenta con una amplia cartera de activos inmuebles tanto en España como en Portugal y Grecia. ¿Necesitas financiación? Te ofrecemos la posibilidad de financiaciones de hasta el 100% para la compra de este inmueble. Entra en Finanwin. com, haz tu simulación y obtén la mejor oferta para tu Hipoteca de la manera más ágil
Local comercial en venta en Alcoy/Alcoi
Este local comercial en venta se encuentra en la Zona Norte de Alcoi - Alcoy. Con una superficie total de 114 m², el local cuenta con 1 aseo, es de planta baja y tiene una ubicación exterior. Ideal para emprender un nuevo negocio o expandir el actual. No pierdas la oportunidad de adquirir este excelente espacio en una de las zonas más transitadas de la ciudad.
Local comercial en venta en Alcoy/Alcoi
¡Oportunidad única en Alcoy! Se vende un local acondicionado como pub, ideal para emprendedores que buscan establecerse en una de las zonas más concurridas de la ciudad. Con 137 m² construidos y 130 m² útiles, este espacio versátil se adapta a diversas actividades, desde cafetería hasta bar, ofreciendo un sinfín de posibilidades. La persiana automática y el escaparate de 8 metros lineales garantizan una excelente visibilidad y acceso a pie de calle. Este mítico pub, construido en 1978, cuenta con un almacén y dos baños, lo que lo convierte en una opción práctica y funcional. Además, dispone de suministro de agua y luz, lo que facilita el inicio inmediato de cualquier actividad. Aunque no cuenta con salida de humos, su ubicación en una zona de alta densidad de población asegura un flujo constante de clientes. ¡No dejes pasar esta oportunidad de invertir en un local con tanto potencial!
Local comercial en venta en Alcoy/Alcoi
¡Oportunidad única para emprendedores! Este espectacular local en venta, ubicado a pie de calle, es ideal para aquellos que buscan iniciar su propio negocio. Con 148 m² construidos distribuidos en una planta, cuenta con un bar en perfectas condiciones y una cocina completamente equipada. La licencia definitiva te permitirá operar sin preocupaciones. El local dispone de dos estancias amplias y dos baños adaptados para personas con discapacidad, garantizando accesibilidad para todos tus clientes. Además, cuenta con salida de humos, persianas a motor y aire acondicionado, lo que asegura un ambiente cómodo y agradable durante todo el año. La instalación de luz es nueva, lo que significa que no tendrás que preocuparte por gastos adicionales en reformas. Con un metro lineal de fachada, tu negocio tendrá una excelente visibilidad. ¡No dejes pasar esta oportunidad y convierte este local en el lugar de encuentro que la comunidad estaba esperando!
Local comercial en venta en Alcoy/Alcoi
Se vende local de 2 plantas, la planta baja con 81 m2, todo diáfano, tiene escaparate a la calle y terraza de 30m2. Con bonita escalera que da acceso a la 1ª planta. La primera planta de 217m2, todo diáfano, en chaflán a dos calles con 7 grandes ventanales y suelos de tarima. Un aseo. El bajo tiene acceso directo desde la calle, con escalera a la 1ª planta. El local de la 1ª planta tiene acceso desde el local del bajo y desde la escalera y ascensor de la comunidad de vecinos. Actualmente no tiene luz ni agua. Posibilidad de convertir ambas plantas en viviendas. Las posibilidades del local son muchas, tanto de forma conjunta ambas plantas o por separado. Ideal para profesionales que quieran tener su negocio y su casa en un mismo edificio, pero por separado. -Abogados para instalar su bufete en el bajo -Médicos con clínica particular -Clínica dental -Arquitectos -Artistas para instalar su estudio El local también se ofrece en alquiler por 750€ mensuales. Hemos utilizado la IA para mostrar el resultado de la vivienda rehabilitada, actualmente se encuentra y vende como en las fotos originales. Este inmueble está sujeto a cambios de precio o retirada del mercado sin previo aviso. La información de este anuncio en su totalidad (Fotos, texto o cualquier otro contenido del mismo) se muestra a título informativo y no contractual y no es vinculante, dado que la información es ofrecida por terceros y puede contener errores. El precio no incluye lo siguiente: honorarios de la agencia inmobiliaria, ITP y otros gastos de la Compraventa (Notaria, Gestoría y registro). Negociación y mediación para conseguir un acuerdo que beneficie a las dos partes. Estudio Financiero gratuito que le conseguirá la mejor financiación y préstamo hipotecario (Pudiendo llegar hasta el 100%+gastos). No trabajamos para el banco, TRABAJAMOS PARA TI. Gestión de los documentos y asesoramiento legal y fiscal. Acompañamiento durante la firma de las arras y del contrato final de compraventa ante el no
Nave industrial en venta en Alcoy/Alcoi
Presentamos esta espectacular nave industrial ubicada en la codiciada zona de Alcoi/Alcoy, una propiedad que redefine el concepto de funcionalidad y elegancia. Con un precio competitivo de 187,000 euros, este inmueble ofrece una generosa superficie construida de 445 m2 sobre un terreno total de 200 m2. La instalación cuenta con potentes características como fuerza eléctrica disponible hasta 14kw y cámaras frigoríficas perfectamente equipadas para satisfacer las necesidades más exigentes del sector alimentario o logístico. Distribuida eficientemente en dos plantas, cada rincón ha sido diseñado pensando en la comodidad y operatividad empresarial; dispone también de dos aseos bien ubicados para mayor conveniencia del personal. Además, su salida a humos garantiza versatilidad al momento definir los usos industriales posibles dentro del recinto. El acceso óptimo para vehículos permite carga y descarga fluida desde cualquier punto gracias a sus amplias entradas adecuadas tanto para camiones ligeros como pesados. Esta es más que solo una nave; es el espacio ideal donde tus sueños empresariales pueden hacerse realidad mientras disfrutas por completo todos los beneficios que brinda estar ubicado estratégicamente entre importantes vías comerciales locales e interurbanas.
Local comercial en venta en Alcoy/Alcoi
Local comercial de 82 m² ubicado en Alcoy, Alicante. Se trata de un local distribuido en varias dependencias, con acceso directo desde la calle Juan Gil-Albert, lo que facilita la entrada y salida de clientes y proveedores, aportando gran visibilidad y comodidad para cualquier tipo de negocio. El local se sitúa en el núcleo urbano de Alcoy, concretamente en el barrio de Santa Rosa, una de las zonas más consolidadas y transitadas de la ciudad. La ubicación ofrece excelentes accesos mediante la Avenida Juan Gil-Albert, que conecta rápidamente con la A-7 (Autovía del Mediterráneo), facilitando la comunicación tanto con el centro de Alcoy como con localidades cercanas y principales vías de salida hacia Alicante y Valencia. En cuanto a transporte público, la zona cuenta con varias líneas de autobús urbano (como la línea 1 y 2 de Alcoy), que conectan el barrio de Santa Rosa con el centro histórico, la estación de tren y otras áreas de la ciudad. Además, la estación de tren de Alcoy se encuentra a menos de 2 km, ofreciendo conexiones con Alicante y otras poblaciones importantes de la provincia. En el entorno inmediato del local, se pueden encontrar servicios esenciales como supermercados (Mercadona, Consum), restaurantes, cafeterías, farmacias, oficinas bancarias y una amplia variedad de comercios locales. Destacan también instalaciones deportivas como el Polideportivo Francisco Laporta, situado a pocos minutos, y centros educativos como el Colegio San Vicente de Paúl y el IES Andreu Sempere. En cuanto a servicios sanitarios, el Hospital Virgen de los Lirios está situado a menos de 10 minutos en coche, ofreciendo atención médica especializada y urgencias. También se encuentra próximo el Centro de Salud La Bassa, que cubre las necesidades de atención primaria de la zona. El aspecto general del local es funcional y adaptable, con una estructura que permite la personalización según las necesidades del negocio. La fachada a pie de calle proporciona una excelente oportunidad pa
Local comercial en venta en Alcoy/Alcoi
Venta de local comercial en avenida principal de la zona centro con 300 m2 La planta principal tiene 185 m2 diáfanos, con posibilidad de distribuir según necesidades, con ventanas que le aportan luminosidad, escaparate y acceso a pie de calle. Tiene baños y zona de almacenaje o archivo. La planta inferior tiene 123m2 Tiene luz y agua y muchas posibilidades. Su situación es inmejorable, muy cerca de bancos, universidad.. . [IW].
Local comercial en venta en Alcoy/Alcoi
**Local en Venta: Oportunidad Única para Negocios en Crecimiento** Descubre este excepcional local acondicionado como guardería, ideal para emprendedores que buscan establecer un negocio exitoso en una zona de alta densidad de población. Con 410 m² construidos y 400 m² útiles, este espacio cuenta con 5 estancias amplias y 4 baños, de los cuales uno está adaptado para personas con discapacidad, asegurando así la inclusión y comodidad de todos los usuarios. Ubicado a pie de calle, el local tiene una fachada de 10 metros lineales que garantiza una excelente visibilidad y acceso. La propiedad, construida en 1980, se encuentra en perfecto estado y cumple con toda la normativa vigente, lo que brinda tranquilidad a los futuros propietarios. Además, cuenta con calefacción y aire acondicionado, creando un ambiente agradable durante todo el año. La cocina completamente equipada y el almacén son características que facilitan el funcionamiento diario del negocio. También dispone de salida de humos, lo que permite diversas posibilidades de uso. No pierdas la oportunidad de invertir en un local que asegura el éxito de tu emprendimiento. ¡Contáctanos para más información y ven a verlo!
Local comercial en venta en Alcoy/Alcoi
¡Oportunidad única en Plaça Centenari! Este amplio local de 110 m² construidos y 98 m² útiles es perfecto para emprendedores que buscan un espacio versátil. Ideal para un almacén, una sala de masajes o un centro de fisioterapia, este local ofrece múltiples posibilidades para desarrollar tu negocio. El local cuenta con dos estancias amplias y un baño, lo que lo convierte en un espacio funcional y cómodo. Además, las múltiples salidas disponibles garantizan una excelente circulación y visibilidad. No dejes pasar esta oportunidad de establecer tu negocio en una zona con gran afluencia. ¡Contáctanos para más información y ven a conocerlo!
Local comercial en venta en Alcoy/Alcoi
Se vende local muy luminoso en la zona de Ensanche. Tiene una superficie de 199 m2, + 90M2 de altillo. Dispone de dos entradas con vado y posibilidad de guardar furgón Es exterior, con una excelente situación cerca de colegio, farmacia, ambulatorio, parque y parada de bus. Tenemos más inmuebles. Llámenos sin compromiso y solicite información sobre la referencia 995612. Este anuncio no es vinculante y puede contener errores; se muestra a título informativo y no contractual. Gracias por su tiempo.
Local comercial en venta en Alcoy/Alcoi
Se ofrece amplio local en Alcoy, con una ubicación privilegiada y múltiples posibilidades de uso. Con una superficie generosa y una distribución versátil, este espacio destaca por su gran potencial tanto para explotación comercial como para uso residencial o mixto. El inmueble cuenta con dos accesos independientes, lo que facilita su adaptación a diferentes proyectos: establecimiento comercial, despacho profesional, taller creativo, estudio o incluso vivienda tipo loft. Dispone de techos altos y estructura en excelente estado, ofreciendo una base sólida para cualquier reforma o redistribución. Las instalaciones básicas de agua, luz y saneamiento están operativas, lo que simplifica su acondicionamiento para distintos fines. Además, su ubicación en una zona tranquila pero bien comunicada, cercana a servicios, colegios, transporte público y zonas de aparcamiento, lo convierte en una oportunidad ideal tanto para emprendedores como para quienes buscan un espacio singular para vivir y trabajar. Si quieres más información no dudes en contactarnos!
Local comercial en alquiler en Alcoy/Alcoi
¡Oportunidad única en el corazón de Alcoy! Este amplio local comercial, ideal para una tienda de alimentación, se encuentra estratégicamente situado en una de las calles principales de la ciudad. Con 180 m² construidos y 165 m² útiles, ofrece un espacio diáfano perfecto para adaptar a tus necesidades comerciales. La luz natural que entra por la parte trasera del local crea un ambiente acogedor y agradable para tus clientes. Además, cuenta con una persiana grande comercial y un escaparate que aseguran una excelente visibilidad. El local dispone de una puerta de acceso peatonal y un almacén, lo que facilita la gestión del inventario. Aunque actualmente no tiene la luz conectada, el agua está disponible, lo que te permitirá empezar a operar sin complicaciones. Construido en 1978, este bajo con 8 metros lineales de fachada es una joya esperando a ser descubierta. No dejes pasar esta oportunidad de establecer tu negocio en una ubicación privilegiada y con gran afluencia de público. ¡Ven a visitarlo y visualiza el futuro de tu negocio en este espacio lleno de potencial!
Bar en venta en Alcoy/Alcoi
¡Oportunidad única de inversión en Santa Rosa! Este espectacular local en venta se encuentra en la mejor zona comercial de la ciudad, ideal para emprender o expandir tu negocio. Actualmente funciona como un bar y se vende con el inquilino, lo que significa que podrás disfrutar de ingresos inmediatos. Con 100 m² construidos en una sola planta, el local cuenta con una estancia amplia y luminosa, perfecta para crear un ambiente acogedor. El local está completamente equipado y tiene toda la documentación en regla. Dispone de dos baños, uno de ellos adaptado para personas con movilidad reducida, garantizando accesibilidad para todos. Además, cuenta con una rampa de acceso y un escaparate que ofrece gran visibilidad desde la calle. La cocina está lista para funcionar y el sistema de alarma proporciona seguridad adicional. ¡No dejes pasar esta oportunidad de tener un negocio en pleno funcionamiento en una ubicación privilegiada!
Local comercial en venta en Alcoy/Alcoi
Se vende local comercial en la zona del Ensanche de Alcoi - Alcoy. Con una superficie total de 80 m², este local es ideal para emprender un nuevo negocio o expandir uno existente. El distrito del Ensanche está situado entre los ríos Benissaidó y Uxola, en las faldas del monte San Cristóbal, considerado la puerta del Parque Natural de la Serra de Mariola.
Local comercial en venta en Alcoy/Alcoi
Local de 130m2 con persiana automática, aseo y altillo, muy bien situado. Muy cerca de la Alameda, puede emplearse como local comercial, también se podría hacer un loft.
Local comercial en venta en Alcoy/Alcoi
Este amplio local comercial en Alcoi - Alcoy es una excelente oportunidad para invertir en un espacio con una superficie total de 200 m². El local se encuentra en buen estado de conservación, lo que facilita su adaptación a diferentes tipos de negocios. Situado en la zona del Ensanche.
Local comercial en venta en Alcoy/Alcoi
. Local de 650m2 con 2 alturas, 400m2 abajo y 250m2 arriba con 2 oficinas y 2 aseos, uno abajo y otro arriba.
Local comercial en venta en Alcoy/Alcoi
Nave en Alcoy (zona de Batoy). Tiene 3 plantas; la primera (dispone de baño) y segunda tienen 150 m2. La tercera (aguardillada) tiene 100 m2 y cuenta con terraza.
Local comercial en venta en Alcoy/Alcoi
Tiene sobre 110 m2 con agua y luz.
Piso en venta en Alcoy/Alcoi
� Propiedad: 100% � Inmueble sin posesión y sin acceso al interior. � Las fotografías y características pueden no reflejar el estado actual. Sin comisiones de intermediación para el comprador. ¿Estás buscando un local con potencial en una zona consolidada? Te presentamos este amplio local comercial situado en planta baja, ubicado en la Calle Sant Joan de Ribera, nº 58 - Alcoy (Alicante). Una zona urbana con actividad y fácil acceso. El local cuenta con una distribución versátil, varias dependencias y grandes posibilidades de adecuación para distintos tipos de negocio, trastero, almacén, inversión o futura transformación según normativa y proyecto. � Ideal para inversores con visión, profesionales del sector o emprendedores que busquen una base sólida para su proyecto. � ¿Te interesa? Solicita más información sin compromiso. Visita virtual o documentación bajo petición. Sin comisiones y con la garantía de transparencia total.
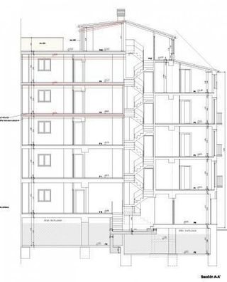
Edificio en venta en Alcoy/Alcoi
EDIFICIO EN VENTA EN PÑÑENO CENTRO DE ALCOY OPORTUNIDAD DE INVERSIÓN INMOBILIARIA Se ofrece a la venta edificio completo para reformar, ubicado en pleno centro de la ciudad de alcoy, a tan solo 50metros de la plaza españa, una de las zonas más demandadas y consolidadas de la ciudad, cerca de todos los servicios, muy bien ubicada, cuenta con 570m2 distribuidos en planta baja más cuatro alturas, gran oportunidad para desarrollo comercial y residencial, dispone de proyecto de rehabilitación aprobado con licencia concebida por el ayuntamiento, permitiendo iniciar las obras de forma inmediata y reduciendo tiempo y riesgos administrativos. Proyecto de reforma aprobado, vivienda de 90m2 aproximadamente, con 3 dormitorios y dos baños completos por vivienda, todas las vivienda cuentan con terraza orientada a patio de manzana, planta baja destinada a uso comercial, ideal para local o actividad profesional. Trastero en planta alta/bajo cubierta, que aportan un valor añadido al conjunto. Ubicación Centro urbano Excelente conexión con todos los servicios de comercios, transporte, administraciones y zonas de ocio, Condiciones económicas, precio no negociable. Este activo representa una excelente oportunidad de inversión tanto para promoción de viviendas en venta como para explotación en régimen de alquiler en una ubicación prime de alcoy. Una buena inversión hoy es un refugio seguro para el futuro.





































































































































































































































































































































































































































































































































































































































































































































