Casas y pisos en venta y alquiler Ondara
Novedades
Casa de pueblo renovada
El descriptif completo de la casa está en las fotos .
Alquilo Habitación en ondara
Habitación con balcón compartido, baño compartido y cocina compartida.
Nave Industrial con excelente ubicación en Ondara
Se vende nave industrial en una de las mejores zonas de Ondara, a pie de calle y con muy buena visibilidad. Dispone de 553 m² construidos, distribuidos en dos plantas con distribución diáfana. Cuenta con amplia zona de exposición, altillo con dos oficinas y baños totalmente renovados. Incluye zona de almacén o archivo, extractor de humos y fachada lineal. Ideal para concesionario, showroom, actividad comercial o empresa que necesite espacio y buena imagen. Excelente oportunidad para negocio propio o inversión.
Local de alquiler en Avinguda L'oest, 2, Ondara
Se alquila local comercial de 92 m² situado en la Avenida L’Oest nº 2 de Ondara (Alicante). La fachada tiene 6 metros con acceso directo desde la calle. Distribución: Sala principal de 55 m², espacio diáfano. Despacho de 11 m². Almacén de 23 m². Aseo. El local dispone de suelo de granito. Ubicado en una zona con servicios cercanos, incluyendo un colegio. Posibilidad de alquiler conjunto con local/almacén de 200 m2, consultanos
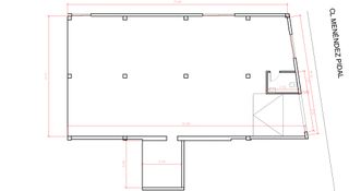
Alquiler de nave en Calle Menéndez Pidal, 35
Se alquila taller–almacén situado en Carrer Menéndez Pidal. Dispone de 10 metros de fachada y acceso directo desde la vía pública. Distribución: Superficie principal de 178 m² Estancia de 12 m² Aseo de 4 m² Características: Rampa de acceso Puerta apta para entrada de vehículos de más de 3 metros de longitud y gran altura Altura interior superior a 4 metros Buena iluminación natural, con ventanas y lucernarios en el techo Espacio adecuado para uso como taller, almacén u otras actividades compatibles. Posibilidad de alquilar junto con local comercial de 95m2, recayente a Av. Oest y comunicados entre sí.
Cochera
Se vende cochera, garaje, trastero en Ondara .
Chalet en alquiler en Ondara
Se alquila casa de dos plantas en Ondara, Alicante Se ofrece para alquiler a largo plazo (a partir de 1 año) una casa de dos plantas con nuevas reformas y electrodomésticos modernos. Una opción ideal para quienes valoran la comodidad, la calidad y la ubicación conveniente. Descripción de la propiedad: 3 dormitorios 3 baños (2 completos y 1 de invitados sin ducha) Casa de huéspedes con entrada independiente, baño completo y sofá cama. La casa viene con una plaza de aparcamiento en el aparcamiento subterráneo a 350 metros, incluida en el precio del alquiler. La casa está completamente amueblada, equipada con electrodomésticos nuevos y ha sido renovada modernamente de alta calidad. Habitaciones amplias y luminosas y una distribución bien pensada crean una sensación de comodidad y conveniencia. Ubicación: Zona tranquila y bien cuidada de Ondara con infraestructura desarrollada. Supermercados, tiendas, cafeterías y todos los servicios necesarios se encuentran a poca distancia. Gandia está a 15 minutos en coche. El aeropuerto de Valencia está a aproximadamente 1 hora en coche. Condiciones: Periodo mínimo de alquiler: 12 meses Confirmación obligatoria de la solvencia del inquilino La casa está lista para ser habitada y será una excelente opción para una vida cómoda y segura. Para cualquier pregunta o para programar una visita, comuníquese con nosotros.
Ático en venta en Ondara
Bonito ático dúplex en el corazón de Ondara. Ubicado en el centro urbano de Ondara (Alicante), este dúplex de 272 m² construidos y 250 m² útiles ofrece espacio, comodidad y una distribución pensada para el día a día. La planta principal cuenta con tres dormitorios, tres baños, cocina independiente, salón-comedor, lavadero y una terraza ideal para disfrutar al aire libre. En la planta inferior, con acceso independiente, se encuentra un dormitorio y un baño extra, perfecto como espacio privado para invitados, despacho o zona de ocio. La vivienda destaca por su luminosidad, orientación sureste y climatización por conductos frío/calor. Las cuatro habitaciones son amplias y acogedoras, y los baños están equipados con acabados actuales. Además, incluye plaza de garaje subterráneo y dos terrazas: una delantera de 212 m² preparada para instalar piscina, y otra trasera de 23 m² con barbacoa, ideal para disfrutar con amigos y familia. Situado cerca de supermercados, restaurantes y todo tipo de servicios, este dúplex es una excelente opción para quienes buscan amplitud, comodidad y buena ubicación. [IW].
Piso en venta en Ondara
Piso en Ondara, reformado y listo para entrar a vivir. La vivienda cuenta con 3 dormitorios, 1 baño, salón-comedor muy luminoso y cocina independiente con galería. Se han cambiado las ventanas, las puertas interiores y el baño, lo que mejora notablemente el confort del hogar. La cocina no ha sido reformada, pero está en buen estado. Situado junto a todos los servicios: supermercados, colegios, centro de salud, transporte y zonas de ocio. Ideal tanto para vivir como para invertir. ¡Una oportunidad que no puedes dejar escapar!
Piso en venta en Ondara
Piso dúplex en Ondara, ubicado junto a todos los servicios y con una distribución ideal para familias o como inversión. En la planta baja cuenta con 3 dormitorios, 2 baños, salón-comedor con acceso a balcón, y cocina independiente, todo con una distribución cómoda y luminosa. Desde esta planta se accede a la planta alta, actualmente acondicionada como una segunda vivienda independiente, que dispone de 2 dormitorios, 1 baño, salón-comedor, cocina y una terraza con vistas al mar, perfecta para relajarse o disfrutar de reuniones al aire libre. Una propiedad versátil, lista para entrar a vivir, en una ubicación privilegiada cerca de supermercados, colegios, transporte y todos los servicios esenciales. ¡Una oportunidad única en el corazón de la Marina Alta!
Piso en venta en Ondara
Se vende estupendo piso de 115 m² construidos (101 m² útiles) en pleno centro de Ondara. Una excelente oportunidad para inversores, ya que la vivienda cuenta con inquilinos actuales que están al corriente de pago, han sido siempre puntuales y son personas serias y responsables. La vivienda se encuentra en una primera planta con ascensor y se distribuye en tres dormitorios y dos baños completos, uno de ellos en suite. Dispone de un amplio y luminoso salón con salida a balcón, una cocina independiente con acceso a un pequeño patio interior, lo que aporta ventilación y luz natural. Cuenta con aire acondicionado en todas las estancias, lo que garantiza confort durante todo el año. Además, se incluye en el precio una plaza de garaje subterránea, muy práctica para vivir en el centro sin preocuparse por el aparcamiento. Una opción perfecta para quien busca una inversión segura y rentable desde el primer día, con inquilinos excelentes y un piso bien ubicado y mantenido.
Piso en alquiler en Ondara
� Alquiler Anual de piso - Ondara � 900 €/mes � 98 m² | � 4 habitaciones | � 1 baño � Terraza Planta 2ª exterior � Sin ascensor ✨ Encantador apartamento reformado en el corazón de Ondara Hola � Tenemos el placer de presentarte este bonito apartamento situado en pleno centro de Ondara, actualmente en las últimas fases de su reforma integral. Ha sido renovado con mimo durante casi dos años para ofrecerte un hogar cómodo, moderno y acogedor. � Reforma completa ✔ Cocina nueva ✔ Baño totalmente renovado ✔ Instalación eléctrica y fontanería actualizadas ✔ Puertas y ventanas restauradas ✔ Suelos recién cambiados � Aún no disponemos de fotos finales, pero estaremos encantados de agendar una visita. Incluimos una imagen con las preciosas vistas al campanario de la iglesia desde el salón. � Ubicación inmejorable Situado en pleno centro del pueblo, tendrás todos los servicios a un paso: � Ambulatorio �♂️ Piscina pública � Tiendas y supermercados (Mercadona a solo 2 minutos andando) � Centro comercial con cines, restaurantes y una amplia oferta de ocio � Perfecto para trabajadores de Dénia y del Hospital Comarcal � A 7 minutos del Hospital Comarcal � A 12 minutos del centro de Dénia �♂️ En bici eléctrica: 12 minutos al hospital y 20 minutos a Dénia � Además, instalaremos puntos de carga para bicicletas eléctricas en el rellano. � Conexiones excelentes Ondara cuenta con acceso directo a la autopista, lo que facilita los desplazamientos por las comarcas vecinas y las visitas familiares los fines de semana. � ¿Quieres conocer tu futuro hogar? Contáctanos y estaremos encantados de enseñártelo en persona. � Moreno Houses Inmobiliaria C/ Azorín 19, 03730 Jávea (Alicante) � Natalia: � Ideal para familias con niños [IW].
Local comercial en alquiler en Ondara
Bar-Cafetería con Historia en Traspaso en el Corazón de Ondara Se ofrece bar-cafetería en pleno funcionamiento, con más de 16 años de trayectoria, ubicado en una excelente zona de Ondara. Un local amplio, renovado y totalmente equipado, ideal para emprendedores que buscan empezar a trabajar desde el primer día, sin necesidad de realizar inversiones adicionales. Características principales del local: Superficie total de 150 m², distribuida en: Salón interior de 90 m², cómodo y luminoso. Terraza exterior cubierta de 60 m², completamente cerrada e ideal para uso durante todo el año, equipada con 15 mesas. Licencias al día y negocio listo para continuar su actividad inmediatamente. Cocina amplia y totalmente equipada, con una práctica sala adicional que puede usarse como oficina, más baño privado. Equipado con aire acondicionado tanto en comedor como en cocina. Dispone de dos aseos para clientes. Persiana eléctrica para mayor comodidad y seguridad. Última reforma realizada en 2021, por lo que todas las instalaciones se encuentran en perfecto estado. Una oportunidad única para continuar un negocio con clientela consolidada, excelente ubicación y todas las comodidades para trabajar desde el primer minuto. Ideal para profesionales de la hostelería o inversores que buscan un local con estabilidad y potencial. También existe la posibilidad de comprar el negocio junto con el local.
Local comercial en alquiler en Ondara
Se traspasa bar-restaurante en una de las mejores zonas de Ondara, con un nombre reconocido y una clientela fija que garantiza rentabilidad desde el primer día. El negocio dispone de una cocina completamente equipada y lista para trabajar, además de un local principal totalmente operativo que se complementa con dos locales adicionales de almacén situados justo al lado, sumando un total de tres espacios. Uno de estos locales anexos puede destinarse a fiestas privadas, cumpleaños o eventos, ofreciendo un gran potencial para ampliar servicios y aumentar ingresos. El establecimiento cuenta con aire acondicionado, dos aseos y múltiples posibilidades de crecimiento. Una inversión segura en un negocio con prestigio y excelente ubicación.
Casa en venta en Ondara
Se vende casa de pueblo en Ondara en buen estado, lista para entrar a vivir, ubicada junto a todos los servicios (supermercados, colegios, centro médico, transporte público, etc. ). La vivienda se distribuye en dos alturas y cuenta con dos viviendas independientes. En la planta baja encontramos un acogedor salón-comedor con cocina abierta, un dormitorio, un baño completo, patio interior y calefacción. La planta primera dispone de cuatro dormitorios, dos baños completos, amplio salón-comedor, cocina independiente y una terraza privada. Además, la propiedad incluye un garaje con capacidad para dos coches. Una oportunidad única para familias, inversores o quienes buscan espacio y comodidad en una zona tranquila y bien comunicada.
Casa adosada en venta en Ondara
Se vende amplio bungalow en Ondara, ubicado junto a todos los servicios, distribuido en tres plantas: en la planta baja cuenta con un gran garaje con aseo y salida directa a una espaciosa terraza; al subir, encontramos un luminoso salón-comedor con acceso a otra terraza, una cocina independiente de gran tamaño con espacio para comer, y un baño completo; en la planta superior dispone de tres dormitorios, otro baño completo y una tercera terraza. Una vivienda cómoda, funcional y con muchas posibilidades, ideal para vivir todo el año o como inversión.
Casa en venta ondara calle iglesia reformada ace
Casa reformada entera ace menos de un año se puede visitar. Tiene corral espacioso aire acondicionado tiene de metros 137m dos abitaciones
Garaje en venta en Ondara
Se vende plaza de parking subterránea en una finca de reciente construcción en el casco urbano de Ondara. La plaza mide 10m2 útiles y le corresponden 32m2 de elementos comunes. La entrada al sótano es con elevador para vehículos. Calle sin salida, a 300 metros de la Plaza de Toros de Ondara.
Terreno en venta en Ondara
¡Gran oportunidad! Amplio terreno urbano de 296 m² con orientación sur en Ondara. Perfecto para construir la casa de tus sueños o como inversión. Goza de una ubicación privilegiada, Ondara se ubica cerca de la entrada de la autopista y a tan solo 1 hora de los aeropuertos de Alicante y Valencia. Además, estarás a un paso de Denia y Jávea, localidades llenas de vida en cualquier época del año. No dejes pasar esta oportunidad. Para más información no dude en ponerse en contacto.
Piso en venta en Ondara
Ikami os presenta este luminoso piso de 97 m², ubicado en una de las zonas más céntricas y tranquilas de Ondara. La vivienda se encuentra en un edificio familiar de tan solo seis vecinos, lo que garantiza un ambiente agradable y tranquilo. El piso, situado en una tercera planta sin ascensor, destaca por su excelente distribución y luz natural en todas las estancias. Dispone de: Tres habitaciones amplias y versátiles, ideales para familia, una de ellas ideal despacho o zona de invitados. Un gran salón comedor, perfecto para disfrutar de reuniones y momentos de descanso. Amplia Cocina práctica y luminosa, con despensa y zona exterior de lavado. Cuarto de baño con ducha en muy buen estado con ventilación y acabados cuidados. Are acondicionado. Buena inversión para alquilar. Su ubicación es inmejorable: en pleno centro de Ondara, con todos los servicios al alcance, y a tan solo 15 minutos de la playa de las marinas de Denias unos minutos de la autopista AP-7 y del Centro Comercial Portal de la Marina. Además, se encuentra a una hora de los aeropuertos de Alicante y Valencia, lo que lo convierte en una opción muy atractiva tanto como residencia habitual como inversión. Una oportunidad única para disfrutar de la comodidad y la vida mediterránea en un entorno privilegiado. No pierdas esta oportunidad, solicita ya tu visita.
Chalet en venta en Ondara
A la venta esta casa de campo/villa con mucho potencial en una zona tranquila en plena naturaleza y con una amplia parcela completamente vallada de naranjos en plena producción. Parcela principal de 5.555 m2 dónde se alza la vivienda en 2 plantas con 220 m2 construidos, luego hay otras dos parcelas de 1.994 m2 y 904 m2. Planta baja hall de entrada, salón comedor con chimenea, 2 dormitorios, 1 cuarto de baño con ducha y un patio interior donde se haya la cocina/paellero. Por escalera interior se asciende a la buhardilla dónde hay otro salón y otros 2 dormitorios. Dispone de garaje para 1 vehículo, zonas de trasteros, perreras, gallineros etc.. . que pueden ser reconvertidos en zonas de vivienda. La propiedad necesita reforma pero fácilmente se podrían hacer otros dormitorios y baños. Dispone de dos tipos de agua: Acciones de agua para regar los 8.453 m2 de naranjos con un coste mínimo anual y una perforación de agua de manantial para el uso en la vivienda con 0€ de gasto. Zona tranquila a escasos 3 km de Ondara o a 5 km de las Playas de Dénia Referencia PRT-329583.
Casa en venta en Ondara
Nave comercial con acceso a dos de las calles más comerciales de Ondara. La nave se encuentra situada en la antigua carretera comarcal, en la AVENIDA DR. FLEMING N 8, y tiene acceso tanto por esta calle como por la calle de detrás. En su día fue destinada a un taller mecánico, y en su parte superior y de manera independizada cuenta con una vivienda de unos 100 m2, formada por tres habitaciones, salón cocina, baño y terraza. Ofrece muchas posibilidades, tanto para los que buscan idear negocios, o trasladarlos, por su gran dimensión, así como accesibilidad y posicionamiento, ya que además cuenta con una gran zona de parking en la parte posterior.
Chalet en venta en Ondara
Casa de pueblo en buenas condiciones estructurales en la localidad de Ondara. La casa se encuentra ubicada en el centro de la localidad, en una de las avenidas principales y tiene un gran potencial por sus dimensiones y características. La vivienda está distribuida en dos alturas en la que la parte baja es prácticamente diáfana por ser antiguamente un negocio ó taller y la primera planta es una casa con diferentes habitaciones, estancias, baños y una bonita terraza. La vivienda no dispone ahora mismo ni de luz ni de agua, aunque puede conectarse a los servicios sin problema No dejes escapar esta oportunidad de vivir en una localidad con mucho potencial a tan solo unos minutos de Denia pero con el encanto de un pueblo tranquilo y Mediterráneo La vivienda puede ser adquirida junto con la casa contigua y referencia LTV740, con lo que sería una construcción total de 580 m² y una superficie del suelo de 350 m² ref: LTV739-44.
Local comercial en venta en Ondara
¡OPORTUNIDAD ÚNICA! , LOCAL DE 160M2 EN LA MEJOR UBICACIÓN DE ONDARA. ¿Estas buscando un local para montar tu negocio? , NO BUSQUES MÁS. Te presentamos este local de 160m2 ubicado en el corazón del pueblo, en la zona del mismo Prado de Ondara, sin duda alguna una de las mejores ubicaciones de Ondara, si no, la mejor. Justo enfrente hay un centro comercial donde esta ubicado Mercadona entre otros negocios y con un gran paso de gente y de coches, pues justo enfrente del local está también el parking de Mercadona, por lo que la afluencia de coches que pasan por enfrente es muy grande. El local consta de 160m2 y se podría dividir en 2 locales para montar 2 negocios independientes, pues tiene 2 puertas de entrada y tiene un baño, pero en la otra parte del local hay tomas de agua donde se podría montar otro baño perfectamente. El mismo local tiene un vado privado, por lo que se puede entrar un vehículo dentro o para carga y descarga. Hay que destacar que el negocio que había se ha cerrado por jubilación, pero era un negocio que funcionaba muy bien, por lo que la respuesta de la gente a tal ubicación es genial. Esta venta esta exenta de honorarios a la inmobiliaria, por lo que no van a tener que pagar un dinero extra por tal concepto. NO DEJEN PASAR LA OPORTUNIDAD, y si están interesados, pónganse en contacto con nosotros sin ningún compromiso y les atenderemos muy amablemente.
Chalet en venta en Ondara
Amplia casa de pueblo en el centro de Ondara, a pocos pasos de los supermercados, bancos y todos los servicios. Entrada a la vivienda con puertas altas de madera, amplio vestíbulo. A la izquierda hay un dormitorio, el comedor, sala de estar, otro dormitorio doble y cuarto de ducha, una cocina independiente con los electrodomésticos, y acceso al patio. En la primera planta hay 2 dormitorios, baño con ducha, un trastero y un salón con acceso a la terraza de la azotea. Una excelente ventaja de esta casa es que en la planta baja, al otro lado del patio, hay un apartamento separado, con un salón, y escaleras que suben a un dormitorio con cuarto de ducha. La casa se encuentra en buen estado, y está equipada con doble acristalamiento nuevo, 1 unidad de aire acondicionado, e incluye los muebles, a excepción de los objetos personales.
Local comercial en venta en Ondara
¡OPORTUNIDAD ÚNICA EN ONDARA! JACBON Real Estate presenta este espectacular local comercial de 339 m², ubicado en una zona estratégica de Ondara, ideal para hacer realidad cualquier tipo de negocio. Características clave: - Superficie: 339 m² - Ubicación privilegiada en una zona de gran afluencia - Cerramientos ya acabados - Estética cementada, lista para personalizar según tus necesidades Un lienzo en blanco con infinitas posibilidades Este espacio es perfecto para comercio, oficinas, restauración o cualquier proyecto que requiera amplitud, versatilidad y una ubicación inmejorable. No dejes pasar esta oportunidad. Contacta con JACBON Real Estate y haz realidad tu visita!
Terreno en venta en Ondara
OPORTUNIDAD! A la venta este solar urbano de 100 m2 con entrada o salida a dos calles. Actualmente es un solar al aire libre pero con la posibilidad de construir sótano, planta baja, 1º y 2º. No dispone de electricidad o agua pero el enganche está próximo. Ubicación en el casco urbano de Ondara.
Local comercial en venta en Ondara
Este bar-restaurante cuenta con 257 m² distribuidos en dos plantas: la planta principal alberga la zona de atención al público -ideal para barra, mesas y ambiente- mientras que la planta baja se reserva como almacén o área de back-office. Gracias a esta combinación, el local ofrece una funcionalidad excepcional, integrando la experiencia cliente con una óptima logística operativa. Su cocina es perfecta para unas tapas que hacen una compañía perfecta a esa bebida que todos desean cuando se entra en un local así. También cuenta dos aseos. Cuenta con una gran historia dentro de la población, debido a su gran carisma que ha logrado durante todo este tiempo. Situado en el corazón de Ondara, este bar goza de una localización privilegiada. Se encuentra a solo 5,6 km de la playa y 7,8 km de Dénia, lo que lo convierte en un punto de encuentro ideal tanto para paseantes urbanos como para visitantes que disfrutan del litoral cercano. No pierda la oportunidad de adquirir este fantástico local con un gran potencial en un entorno privilegiado. ¡Contáctenos para más información y concertar una visita!
Local comercial en venta en Ondara
Se ofrece a la venta un local comercial idealmente ubicado en Ondara, dentro de la Comunidad Valenciana. Esta propiedad cuenta con una superficie total de construcción de 233 m2 y está diseñada para ser utilizada como gimnasio, pero se puede adaptar a otra actividad, lo que le brinda un gran potencial para emprendedores. Aunque requiere reformas, el local incluye aseos y sauna, proporcionando así las comodidades necesarias para los usuarios. Además, su ubicación permite fácil acceso y tiene disponibilidad de aparcamiento cercano. Con un precio atractivo de 97,700 euros, esta es una oportunidad única tanto para inversores como para aquellos interesados en establecer o expandir su negocio en el ámbito deportivo.
Local comercial en venta en Ondara
Oportunidad de inversión en el corazón de Ondara, ubicado en la hermosa Comunidad Valenciana. Este local comercial cuenta con una amplia superficie construida de 233 m2, ideal para desarrollar múltiples actividades comerciales o administrativas según las necesidades del futuro propietario. Aunque se encuentra 'de origen', esto ofrece un lienzo perfecto para que los nuevos propietarios personalicen y adapten el espacio a su visión empresarial. Su estratégica ubicación permite fácil acceso tanto peatonal como vehicular, garantizando visibilidad y flujo constante de clientes potenciales. Con un precio atractivo de solo 81.550 euros, esta propiedad representa una excelente oportunidad dentro del mercado inmobiliario actual; perfecta para emprendedores que desean establecerse o expandirse en esta vibrante área.
Garaje en venta en Ondara
Oportunidad única para adquirir una plaza de garaje en la zona centro de Ondara, ideal tanto para residentes como para inversores. Esta propiedad se encuentra disponible por un precio atractivo de solo 3,500 euros. La superficie útil es de 11 metros cuadrados y hay varias plazas disponibles con diferentes medidas y precios según sus necesidades específicas. Cabe destacar que estas plazas son perfectas dada su ubicación estratégica, haciendo mucho más fácil acceder al bullicioso corazón del municipio sin preocuparse por encontrar aparcamiento. Le invitamos a consultar disponibilidad; estamos aquí para ayudarle a asegurar su espacio seguro dentro del núcleo urbano.
Local comercial en venta en Ondara
Ubicado en la vibrante ciudad de Ondara, este amplio local comercial se presenta como una oportunidad única para emprendedores y empresarios que busquen establecer su propio negocio. Con un precio competitivo de 204.000euros, el inmueble cuenta con una impresionante superficie útil de 920 m2 ideal para diversas actividades comerciales o industriales. La propiedad está destinada a ser reformada según las necesidades del futuro propietario, lo que permite personalizar el espacio completamente al estilo deseado. Aunque actualmente no dispone de habitaciones ni baños instalados, esto representa una ventaja adicional: los nuevos propietarios podrán diseñar la distribución interna acorde a sus requerimientos específicos. Situado en la Comunidad Valenciana y rodeado por diversos servicios e infraestructuras locales clave, este local tiene un gran potencial tanto por su ubicación estratégica como por sus dimensiones generosas.
Casa en venta en Ondara
A la venta esta casa de campo/villa con mucho potencial en una zona tranquila en plena naturaleza y con una amplia parcela completamente vallada de naranjos en plena producción. Parcela principal de 5.555 m2 dónde se alza la vivienda en 2 plantas con 220 m2 construidos, luego hay otras dos parcelas de 1.994 m2 y 904 m2. Planta baja hall de entrada, salón comedor con chimenea, 2 dormitorios, 1 cuarto de baño con ducha y un patio interior donde se haya la cocina/paellero. Por escalera interior se asciende a la buhardilla dónde hay otro salón y otros 2 dormitorios. Dispone de garaje para 1 vehículo, zonas de trasteros, perreras, gallineros etc.. . que pueden ser reconvertidos en zonas de vivienda. La propiedad necesita reforma pero fácilmente se podrían hacer otros dormitorios y baños. Dispone de dos tipos de agua: Acciones de agua para regar los 8.453 m2 de naranjos con un coste mínimo anual y una perforación de agua de manantial para el uso en la vivienda con 0€ de gasto. Zona tranquila a escasos 3 km de Ondara o a 5 km de las Playas de Dénia .
Local comercial en venta en Ondara
¡Excelente oportunidad de inversión en el corazón de Ondara! Este local comercial en venta se encuentra en el centro del pueblo, en el casco antiguo, rodeado de una gran variedad de servicios como transporte público, club social, parques, zonas comerciales, gimnasios, restaurantes y bancos. Con una superficie de 130m2, este local en buen estado ofrece un amplio espacio para desarrollar tu negocio. Su ubicación privilegiada garantiza un fácil acceso a la carretera y una proximidad inigualable al pueblo. ¡No dejes pasar esta oportunidad única de emprender en un lugar con gran potencial! Posibilidad de vivienda o los dos, vivienda y negocio.
Ático en venta en Ondara
Descubra este fantástico ático-dúplex situado en una de las zonas más apreciadas de Dénia, junto a las preciosas y tranquilas playas de arena fina del km 7 de Las Marinas, conocidas por sus aguas cristalinas y ambiente relajado. El residencial cuenta con acceso directo a la playa, ofreciendo una experiencia costera única. La vivienda, ubicada en la 3ª planta con bajo cubierta, se distribuye en dos cómodas plantas: Planta principalAmplio y luminoso salón-comedor con salida a una impresionante terraza de unos 25 m² equipada con toldos, perfecta para disfrutar del mar y las mejores vistas. Cocina independiente completamente equipada. Aseo con plato de ducha. Dormitorio sencillo con literas. Planta superiorDos dormitorios dobles muy espaciosos, ambos con armarios empotrados y acceso a sus respectivas terrazas privadas. Gran cuarto de baño con bañera. La vivienda está equipada con aire acondicionado frío/calor y ofrece unas vistas increíbles tanto al mar como a la montaña. Zonas comunes y extrasEl residencial cuenta con amplias y cuidadas zonas comunes: una gran piscina con diferentes profundidades, zona infantil y pista de pádel. Incluye plaza de garaje subterránea de 15 m² y trastero de 10 m², con acceso directo en ascensor desde la vivienda hasta el sótano. Ubicado cerca de supermercados, restaurantes y parada de autobús, este ático es una oportunidad excepcional en una de las mejores áreas de Las Marinas. ¡No deje pasar la oportunidad de visitarlo y enamorarse de sus vistas y de las maravillosas playas del km 7 de Dénia!
Casa adosada en venta en Ondara
Nave comercial con acceso a dos de las calles más comerciales de Ondara. La nave se encuentra situada en la antigua carretera comarcal, en la AVENIDA DR. FLEMING N 8, y tiene acceso tanto por esta calle como por la calle de detrás. En su día fue destinada a un taller mecánico, y en su parte superior y de manera independizada cuenta con una vivienda de unos 100 m2, formada por tres habitaciones, salón cocina, baño y terraza. Ofrece muchas posibilidades, tanto para los que buscan idear negocios, o trasladarlos, por su gran dimensión, así como accesibilidad y posicionamiento, ya que además cuenta con una gran zona de parking en la parte posterior.
Casa en venta en Ondara
Presentamos esta amplia casa de pueblo de casi 200 m², distribuida en dos plantas y ubicada en una tranquila calle del casco urbano. Una vivienda con muchas posibilidades, ideal para familias grandes o para quienes buscan una propiedad con potencial para dividir en varios apartamentos independientes. Planta principal: •Tres dormitorios muy amplios y con buena luz natural. •Salón-comedor con chimenea. •Cocina independiente. •Baño. •Patio privado perfecto para desahogo o zona de lavandería. Planta superior (reformada en 2007): •Tres dormitorios luminosos. •Uno/dos baños (según distribución actual). •Terraza/solárium de aproximadamente 40 m², muy agradable y con un pequeño trastero adicional que incluso permite crear una cocina para independizar aún más la planta. •Gran trastero. •Carpintería de PVC con persianas. Potencial de la vivienda: •Un área en la planta baja con entrada independiente, compuesta por dos habitaciones (una actualmente usada como taller) y un baño. •La planta superior, que también dispone de su propia puerta de acceso. Esto convierte la propiedad en una excelente opción para inversión, alquileres o vivienda multifamiliar. Estado y detalles importantes •La planta baja, reformada hace unos 30 años, presenta algunas humedades y una zona con el suelo levantado. Requiere una pequeña inversión para dejarla completamente habitable. •La planta superior se encuentra en estado impecable gracias a la reforma de 2007. •Al tratarse de una casa típica de pueblo, no dispone de parking privado. En la zona suele haber aparcamiento en la calle, aunque no siempre garantizado. •El precio es firme o con muy poca negociación posible. [IW].
Ático en venta en Ondara
A la venta este gran atico en Ondara de 5 habitaciones, dos cocinas, 2 salón/comedor y 3 baños con todas las comodidades y perfectamente ubicado en Ondara! Pasillo, despensa, cuartito de la limpieza, mosquiteras en puertas y ventanas, 2 osmosis, descalificador. Toldo y pérgola, banco de bbca en el ático, vistas increíbles al mar y montaña por las dos terrazas y al parque de niños, garage, trastero, una vivienda impecable. Semi-amueblada 275000 Con ascensor y patio interior de la comunidad para jugar los niños o hacer algún evento. Al lado del centro de salud de Ondara y de todos los servicios, autobuses, bancos, supermercados, CC La Marina a 7 min andando, 5 kmts de la playa y a 2 km de la montaña, y a 3 km de la autovía, todo cerca y por la situación del edificio, nada de ruidos, ya que abajo no hay coches, ni locales comerciales.
Casa adosada en venta en Ondara
Chalet Adosado en Venta en Ondara Descubre este amplio bungalow en Ondara, un hogar que combina comodidad y funcionalidad. Con una distribución en tres plantas, esta propiedad cuenta con todas las comodidades necesarias para disfrutar de una vida plena. En la planta baja, encontrarás un gran garaje con espacio para 2-3 coches, además de una zona de lavandería y un aseo. Desde aquí, accedes a una espaciosa terraza ideal para disfrutar del aire libre. Subiendo a la primera planta, te sorprenderá la cocina independiente completamente equipada, perfecta para los amantes de la gastronomía. El luminoso salón-comedor, adornado con una acogedora chimenea de pellets, se convierte en el lugar ideal para compartir momentos en familia. También hay un baño completo y acceso a otra terraza con vistas a la calle. En la planta superior, se encuentran tres dormitorios amplios y otro baño completo, brindando privacidad y confort. Además, podrás disfrutar de una tercera terraza, perfecta para relajarte al sol. Este bungalow es ideal tanto para vivir todo el año como para invertir, gracias a su ubicación estratégica junto a todos los servicios. ¡No pierdas la oportunidad de hacer de este lugar tu nuevo hogar! Con 183 m² construidos y en buen estado, esta propiedad es una opción perfecta para quienes buscan calidad de vida. Ven a visitarlo. Contáctanos ahora!
Ático en venta en Ondara
SYBARIS HOMES tiene a la venta este magnífico ático en Ondara, una vivienda única que combina amplitud, luminosidad y vistas panorámicas al mar y a la montaña Segària. Con 198 m² construidos, este ático destaca por sus amplios espacios y por la luz natural que inunda cada estancia gracias a sus grandes ventanales. Ubicado en un edificio muy tranquilo de solo 6 vecinos, con ascensor y plaza de parking, ofrece comodidad y privacidad en pleno centro del municipio. La vivienda se distribuye en dos plantas: En la planta baja se encuentra un amplio y luminoso salón con ventanales con vistas al mar, y acceso a una terraza con vistas despejadas (5m2), una gran cocina totalmente equipada con lavadero independiente (galería acristalada), 2 generosos dormitorios con armarios empotrados y 2 baños completos, uno de ellos en suite en el dormitorio principal. En la planta superior hay otros 2 dormitorios, 1 baño completo, un práctico trastero y un segundo salón con la posibilidad de convertirse fácilmente en un quinto dormitorio. Desde este espacio se accede a una amplia terraza superior de 10m2, perfecta para disfrutar del sol y de las vistas. Además, la planta alta tiene una barandilla interior que comunica visualmente con el salón de la planta inferior, aportando un toque arquitectónico muy especial. La propiedad cuenta con cuatro equipos de aire acondicionado frío/calor, fibra óptica, sistema de alarma con cámaras de seguridad, y una cocina equipada con nevera, lavavajillas, placa eléctrica y calentador de gas natural, además de lavadora y secadora. Se entrega sin muebles, aunque existe la posibilidad de negociarlos si el comprador está interesado. Su ubicación es inmejorable: a un paso del Ayuntamiento, la plaza de toros centenaria, el centro médico, colegios, piscina municipal y supermercados. Además, dispone de un parking público gratuito a pocos metros. A nivel de comunicación y entorno, Ondara se encuentra estratégicamente situada en la Marina Alta, muy cerca de De
Dúplex en venta en Ondara
Ubicación: Esta vivienda se encuentra en Ondara, un encantador pueblo con unos 8.000 habitantes, situado a menos de 10 km del centro de Dénia y a solo unos minutos a pie del conocido centro comercial Portal de la Marina. La propiedad se ubica en una zona tranquila, ligeramente apartada del centro urbano, pero con todos los servicios esenciales cerca: supermercados, restaurantes, colegios y zonas verdes. Ondara ofrece una excelente conexión con la autopista AP-7, facilitando el acceso tanto a Valencia como a Alicante, lo que convierte esta ubicación en una opción ideal para quienes buscan tranquilidad sin renunciar a la comodidad. Características principales: Superficie construida: 111 m²Superficie útil: aprox. 100 m²Año de construcción: 20083 dormitorios (1 en planta baja, 2 en planta alta)2 baños (uno con ducha en la planta baja, otro con bañera y ventana en la planta superior)Cocina independiente equipada con lavaderoSalón-comedor con salida a un balcón con vistas panorámicas a la montañaTerraza superior amplia y soleada con acceso desde el dormitorio principalArmarios empotrados en los dormitorios Distribución y confort: El acceso a la vivienda se realiza por ascensor, y el edificio está adaptado para personas con movilidad reducida, contando con rampa de acceso y zonas comunes amplias. En la planta principal se encuentran el salón-comedor, la cocina, un dormitorio y un baño con ducha, lo que ofrece comodidad para personas mayores o movilidad limitada. En la planta superior se ubican dos dormitorios adicionales y un baño completo con bañera. Desde el dormitorio principal se accede a una gran terraza privada ideal para disfrutar del sol y las vistas abiertas. El agua caliente y el horno funcionan con gas, mediante bombonas. Actualmente la vivienda no dispone de aire acondicionado ni calefacción, aunque el sistema de conductos está preparado para su instalación. Entorno y estilo de vida: Ondara combina el encanto de un pueblo tranquilo con la comodidad de te
Casa adosada en venta en Ondara
� Casa de pueblo con dos terrazas enormes pleno Ondara Si buscas una vivienda amplia, auténtica y con el encanto de las casas de pueblo de verdad, aquí tienes una oportunidad que no sale todos los días. Situada en Calle Sol, esta propiedad ofrece 194 m² construidos y una distribución ideal para quienes necesitan espacio, independencia entre plantas o incluso plantean un proyecto de inversión. �️ Espacio de sobra para vivir o rentabilizar La vivienda cuenta con: 5 habitaciones 3 baños 2 salones Cocina amplia y funcional Trastero Armarios empotrados ✨ Espacios amplios y con carácter La casa está llena de rincones con ese toque tradicional que ya no se construye: techos altos con vigas vistas, un recibidor largo y luminoso, estancias espaciosas y pavimentos clásicos que pueden conservarse o modernizarse según tu estilo. �️ Dos terrazas para disfrutar al aire libre Tienes dos zonas exteriores claves: Una gran terraza superior, perfecta para crear un chill out, zona de juegos, reuniones con amigos o simplemente disfrutar de la luz de la Marina Alta. Un patio interior amplio, ideal para una cocina exterior, lavandería, almacenaje o reconvertirlo en un espacio más verde. Ambas zonas, con un poco de cariño, pueden convertirse en auténticos oasis privados. Según consta en catastro, la finca incluye dos unidades de vivienda y un almacén, lo que te permite hacer algo muy interesante: � Dividir la propiedad en hasta 3 apartamentos, perfecto para grandes familias o si buscas una inversión que genere ingresos. �️ Estado general: sólido pero con margen de mejora La casa está estructuralmente bien y se puede vivir en ella tal cual, pero algunos detalles como pintura, carpintería o pequeños remates agradecerían una actualización. Lo bueno: ✔ No necesitas una reforma integral ✔ Todo lo que inviertas se notará muchísimo, porque la base ya es muy buena ✔ Las terrazas y patios son un regalo que pocas casas del casco urbano tienen � Ubicación cómoda y práctica A un paso de
Ático en venta en Ondara
Descubre Tu Nuevo Ático en Ondara Bienvenido a este encantador ático ubicado en la hermosa ciudad de Ondara, en la provincia de Alicante. Con 193 m² construidos, este hogar combina amplitud y comodidad, perfecto para disfrutar de la vida mediterránea. Distribución Espaciosa Este ático cuenta con 4 dormitorios y 3 baños, brindando el espacio necesario para una familia o para quienes buscan compartir su casa con amigos. Cada habitación es luminosa y acogedora, ofreciendo un ambiente ideal para el descanso. Comodidades Modernas Equipado con aire acondicionado frío/calor, podrás mantener la temperatura agradable durante todo el año. La cocina independiente está diseñada para ser funcional y acogedora, perfecta para preparar deliciosas comidas y disfrutar de momentos en familia. Terrazas para Disfrutar Una de las joyas de este ático es su terraza abierta y cubierta, donde podrás relajarte, leer un buen libro o simplemente disfrutar de las vistas de la ciudad. Imagina tus tardes de verano en este espacio exterior, ideal para compartir con amigos y familiares. Ubicación Estratégica Situado en Ondara, tendrás acceso a todas las comodidades de la ciudad. Desde tiendas locales hasta restaurantes, la vida en esta zona es vibrante y agradable. Además, la orientación noreste de la propiedad te brinda una luz natural increíble, haciendo de cada rincón un lugar más acogedor. Instalaciones Adicionales El edificio cuenta con elevador, facilitando el acceso a tu nuevo hogar. La construcción se encuentra en buen estado, lo que asegura una inversión sólida. Cada detalle ha sido cuidado para ofrecerte un lugar en el que podrás sentirte completamente a gusto. No dejes pasar la oportunidad de convertir este ático en tu nuevo hogar. Ondara te espera con sus paisajes y su estilo de vida inigualable. ¡Ven a conocerlo!
Piso en venta en Ondara
? EN VENTA EN ONDARA ¡LISTO PARA ENTRAR A VIVIR? Amplio apartamento de 3 dormitorios con azotea privada y vistas impresionantes Situado en Ondara, este luminoso y cuidado apartamento en una 3. ª planta (con ascensor) está listo para convertirse en tu nuevo hogar. ? 3 dormitorios, incluyendo el principal con baño en suite, luminosos y funcionales con zona de trabajo? 2 baños en total? Cocina independiente con zona de lavandería/servicio independiente? Balcón privado en uno de los dormitorios? Luz natural en todo el apartamento y una brisa increíble para llenar tu hogar de aire fresco? Terraza privada en la azotea de 60 m² con impresionantes vistas a la montaña, al mar.
Dúplex en venta en Ondara
Impresionante ático duplex en Ondara, 193 metros con vistas panorámicas al mar y la montaña, en el mejor sitio de Ondara. Consta de dos plantas, en la planta baja dispone de vistíbulo de entrada con escalera que comunica con la planta alta de la vivienda; en esta planta disponemos de salón comedor con terraza, cocina completamente equipada con todos los electrodomésticos y con galería acristalada, dos dormitorios con armarios dobles y dos cuartos de baño, uno de ellos en suitte en el dormitorio principal. En la planta alta de la vivienda dispone de dos dormitorios, un amplio salón con facilidad de convertir una parte en el otro dormitorio con acceso a una terraza amplia, dicho salón comunica con el salón de la planta baja con una barandilla, además hay un baño y un armario trastero. La vivienda dispone de 4 splits de aire acondicionado frio /calor, wi-fi, alarma interior y perimetral, gas ciudad, cerradura de seguridad, video portero... En un edificio con solo 6 vecinos ( 2 por planta) y tiene ascensor con acceso directo al garaje. Esta vivienda no dispone de garaje pero hay disponibles en la finca. A escasos metros de Centro médico, Correos, plaza de toros, supermercado, Piscina municipal, Ayuntamiento. Y a menos de 3 Km del Centro comercial Marina Alta y del Hospital. A 10 minutos de la playa. Es una magnífica vivienda, no deje de visitarla!
Piso en venta en Ondara
Se vende amplio piso de 100 m² completamente exterior y esquinero, situado en una 2ª planta sin ascensor, con todos los servicios a pie de calle: comercios, supermercados, colegios, restauración y zonas de ocio. La vivienda cuenta con un luminoso salón-comedor con salida a balcón, cocina independiente, tres habitaciones, un baño completo y un aseo, ofreciendo una distribución cómoda y funcional. Al ser una vivienda esquinera, disfruta de una excelente luminosidad durante todo el día. Con una pequeña reforma podrás convertir este piso en el hogar ideal o en una gran oportunidad de inversión, gracias a su ubicación privilegiada en el corazón de Ondara. ¡No dejes pasar esta ocasión única en el centro! Contacta para más información o visita.
Piso en venta en Ondara
¡Descubre tu nuevo hogar en el corazón de Ondara! Este encantador piso en planta baja ofrece una oportunidad única para disfrutar de la vida en un entorno cómodo y accesible. Con 105 m² construidos y 100 m² útiles, cuenta con tres amplias habitaciones, un acogedor salón y una cocina independiente, perfecta para los amantes de la gastronomía. El gran patio es el verdadero protagonista de la vivienda, ideal para disfrutar del aire libre, organizar reuniones familiares o simplemente relajarte bajo el sol. Además, cuenta con una zona techada que te permitirá aprovechar el espacio durante todo el año. Los dos baños, uno de ellos ubicado en el patio, añaden comodidad y funcionalidad a la casa. Ubicado estratégicamente en el centro de Ondara, estarás a pocos pasos de todos los servicios necesarios para tu día a día. Esta propiedad, en buen estado y lista para entrar a vivir o modificar a tu gusto, es perfecta tanto para familias como para aquellos que buscan un refugio tranquilo. ¡No pierdas la oportunidad de hacer de este lugar tu nuevo hogar!
Nave industrial en venta en Ondara
Nave comercial con acceso a dos de las calles más comerciales de Ondara. La nave se encuentra situada en la antigua carretera comarcal, en la AVENIDA DR. FLEMING N 8, y tiene acceso tanto por esta calle como por la calle de detrás. En su día fue destinada a un taller mecánico, y en su parte superior y de manera independizada cuenta con una vivienda de unos 100 m2, formada por tres habitaciones, salón cocina, baño y terraza. Ofrece muchas posibilidades, tanto para los que buscan idear negocios, o trasladarlos, por su gran dimensión, así como accesibilidad y posicionamiento, ya que además cuenta con una gran zona de parking en la parte posterior.
Restaurante en alquiler en Ondara
¡Oportunidad única de inversión en Ondara! Se alquila un restaurante reconocido, ideal para emprendedores que buscan un negocio con gran potencial. Con una superficie total de 492 m², este local se encuentra a pie de calle, lo que garantiza una excelente visibilidad y acceso para los clientes. El restaurante ofrece comida tradicional y cuenta con una clientela establecida, lo que facilita la entrada inmediata a la actividad. La cocina está completamente equipada, lista para comenzar a producir sin necesidad de reformas. Además, incluye un mobiliario completo, barra, almacén, refrigeradores, cámaras de frío y electrodomésticos de alta calidad. Con 5 estancias y 2 baños, este local es perfecto para atender a una amplia variedad de clientes. También dispone de calefacción, aire acondicionado y sistemas de alarma para mayor seguridad. Por 2.400 € al mes + 200€ placas solares, esta es una oportunidad que no querrás dejar escapar. ¡Contáctanos y ven a descubrir tu futuro negocio en el corazón de Ondara!
Solar en venta en Ondara
Se vende magnífica parcela rústica de 22.560 m² situada en la codiciada zona de Marjals (Ondara), a solo un paso del centro urbano y del centro comercial. Una ubicación privilegiada que combina la tranquilidad del entorno natural con la comodidad de tener todos los servicios cerca. La finca se encuentra en plena producción de naranjos, lo que garantiza un rendimiento agrícola inmediato y estable. Además, su extensión y configuración la hacen ideal para construir dos chalets independientes, convirtiéndola en una opción perfecta tanto para inversión como para uso particular. Dispone de agua de regadío propia, fundamental para el cultivo, y la conexión de luz se encuentra a escasos metros, facilitando cualquier futura edificación o mejora. Una propiedad con enormes posibilidades en una de las zonas agrícolas más valoradas de la Marina Alta. No dejes pasar esta oportunidad.
Ático en venta en Ondara
Le presentamos Ubicado en el vibrante casco urbano de Ondara, en la hermosa provincia de Alicante, este impresionante dúplex se presenta como una oportunidad única para los que buscan un hogar moderno y cómodo. Con un generoso espacio construido de 272 m² y 250 m² útiles, este inmueble está diseñado para el bienestar y la funcionalidad. LA PLANTA PRINCIPAL CON 3 DORMITORIOS Y 3 BAÑOS, COCINA, SALONCOMEDOR, LAVADERO Y TERRAZA.LA PLANTA INFERIOR CON 1 DORMITORIO Y 1 BAÑOS CON ENTRADA INDEPENDIENTE POR LA ESCALERA DE LA PLANTA 2ª DEL EDIF.TERRAZA PREPARADA PARA PONER PISICINA Espacios InterioresLa propiedad cuenta con cuatro habitaciones, todas diseñadas con un enfoque en la luminosidad y la comodidad. Cada dormitorio ofrece un ambiente acogedor y amplio, perfecto para el descanso y la privacidad. Las cuatro habitaciones están distribuidas de manera eficiente, permitiendo una circulación fluida entre los espacios. Los cuatro cuartos de baño están equipados con instalaciones modernas, brindando un toque de elegancia y funcionalidad. Con acabados de calidad y amplios espacios, cada baño se convierte en un refugio privado dentro de la casa. Comodidades y CaracterísticasEste dúplex se destaca por su cocina independiente, perfecta para aquellos que disfrutan del arte culinario. La cocina cuenta con un diseño moderno y está equipada con los electrodomésticos necesarios para facilitar tus tareas diarias. El sistema de aire acondicionado frío/calor y la calefacción por conductos aseguran un clima agradable durante todo el año, mientras que la orientación sureste maximiza la luz natural, creando un espacio acogedor y atractivo. Entre las facilidades que ofrece la propiedad se incluyen una plaza de garaje subterráneo, una terraza descubierta delantera de 212,75m2 y otra terraza descubierta trasera de 23,45m2., donde podrás disfrutar de momentos al aire libre. La terraza es ideal para relajarse o para reuniones con amigos y familiares, además de contar con una barbacoa que
Local comercial en alquiler en Ondara
Ático en venta en Ondara
Descubre la combinación perfecta de comodidad, elegancia y vistas panorámicas en este impresionante ático dúplex de dos plantas, situado en una de las mejores zonas residenciales de Ondara. Con 193 m² construidos, terrazas con vistas al mar y la montaña y acabados de alta calidad, esta vivienda ofrece un estilo de vida excepcional en la Costa Blanca. Distribución Planta principal: Luminoso vestíbulo de entrada con acceso a la planta superior, amplio salón-comedor con terraza, cocina independiente totalmente equipada con galería acristalada, dos dormitorios y dos baños (uno en suite en el dormitorio principal). Planta superior: Dos dormitorios adicionales, un amplio salón abierto con posibilidad de crear un quinto dormitorio, acceso a una gran terraza soleada, un baño completo y un armario trastero. Cada dormitorio dispone de armarios empotrados, y el salón superior ofrece diferentes posibilidades de uso (zona de descanso, despacho o gimnasio). Características y equipamiento Superficie total: 193,10 m² Planta baja: 105,30 m² + terraza 5,00 m² + galería acristalada 5,70 m² Planta superior: 67,10 m² + terraza 10,00 m² Certificado energético: Clase C Incluye: 4 equipos de aire acondicionado y bomba de calor Fibra óptica Sistema de alarma con cámaras y seguridad perimetral Agua caliente por Gas Ciudad Ventanas de doble acristalamiento y materiales de alta calidad Detalles adicionales Garaje cerrado privado incluido (acceso directo por ascensor) Trastero en la planta superior Edificio con solo 6 vecinos (2 por planta) y ascensor Año de construcción: 2005 Estado: Excelente Orientación: Noroeste Terreno: Llano Ubicación Ubicado en una zona residencial tranquila con vistas panorámicas, muy cerca de: Supermercados, bancos y oficina de correos Ayuntamiento y Plaza de Toros centenaria (usada para eventos) Centro médico con servicio de urgencias Colegios y piscina municipal cubierta Centro Comercial La Marina (a menos de 3 km) Hospital General de la Seguridad Social
Casa pareada en venta en Ondara
¡Descubre esta increíble oportunidad de adquirir una espaciosa casa de pueblo en Ondara! Con 194 m² construidos, este chalet pareado cuenta con 6 amplias habitaciones y 3 baños, ideal para familias numerosas o como inversión. La propiedad se divide en dos salones acogedores, perfectos para disfrutar de momentos en familia o con amigos. Además, cuenta con una cocina funcional y dos terrazas que ofrecen un espacio exterior perfecto para relajarse. La versatilidad de esta casa es impresionante, ya que existe la posibilidad de dividirla en tres apartamentos de 2 habitaciones cada uno, lo que la convierte en una opción atractiva para quienes buscan rentabilidad. Aunque el inmueble se encuentra en buen estado de conservación, algunos pequeños retoques podrían convertirlo en el hogar de tus sueños. Ubicada cerca de todos los servicios, esta vivienda ofrece la combinación perfecta de tranquilidad y comodidad. Disfruta de armarios empotrados, un trastero y 2 terrazas que complementan esta maravillosa oferta. No dejes pasar la oportunidad de hacer de esta casa tu nuevo hogar o una excelente inversión. ¡Contáctanos para más información y ven a visitarla!
Casa adosada en venta en Ondara
Casa de pueblo en Ondara - Ideal para Familias o Inversores Descubre esta magnífica casa en venta de dos plantas ubicada en el casco urbano de Ondara, con una superficie total de 194 m² construidos y 118 m² útiles, perfecta para quienes buscan un hogar espacioso y acogedor. Con 5 dormitorios y 3 baños, esta propiedad es ideal para familias numerosas o para aquellos que desean compartir su espacio. En la planta baja, un gran recibidor te da la bienvenida, seguido de un salón luminoso y una cocina equipada que se abre a un encantador patio interior. También encontrarás una habitación individual y una doble con baño, lo que brinda comodidad y privacidad. Después del patio, existe una vivienda de 2 plantas totalmente independiente, equipada con aire acondicionado y baño privado. La segunda planta cuenta con una sala luminosa y dos amplias habitaciones dobles, además de otro baño completo. Disfruta de momentos al aire libre en la gran terraza abierta, donde podrás relajarte o disfrutar de reuniones familiares. Este chalet adosado ofrece la posibilidad de redistribución en dos viviendas independientes, lo que lo convierte en una excelente opción para inversores. Además, cuenta con armarios empotrados, un trastero y calefacción por bomba de frío/calor, garantizando confort durante todo el año. En buen estado y listo para entrar a vivir, esta propiedad es una oportunidad que no querrás dejar pasar. ¡Contáctanos ahora y ven a visitarla!
Terreno en venta en Ondara
Terreno en el corazón de Ondara. Perfecto para construir un par de adosados o un edificio de 3 alturas (sotano, planta baja y dos alturas). La parcela permite la construcción total del 100% de la parcela como planta baja (ideal para garaje o negocios). Mas información en camino. Cualquier consulta no duden en contactar! Muchas gracias.
Ático en venta en Ondara
Descubre este elegante ático dúplex, donde el estilo contemporáneo se combina con la comodidad del día a día. Perfecto para familias o quienes buscan un estilo de vida relajado y bien conectado, esta vivienda impecablemente mantenida ofrece amplitud, funcionalidad y serenidad en cada rincón. El amplio salón-comedor de concepto abierto y con bonitas vistas, es ideal tanto para momentos de descanso como para reuniones sociales. La cocina, completamente equipada, facilita la vida diaria y también es perfecta para quienes disfrutan de recibir invitados. Cuenta con cuatro dormitorios espaciosos, todos con armarios empotrados. El dormitorio principal dispone de baño en suite, complementado con un baño familiar independiente para mayor comodidad. Relájese en su terraza privada con impresionantes vistas: el lugar ideal para disfrutar del sol mediterráneo o de una tranquila mañana con café. La vivienda incluye todas las comodidades modernas: Aire acondicionado Fibra óptica Sistema de alarma y cámaras de seguridad Situado en una zona acogedora de Ondara, con bares, cafeterías y espacios culturales a pocos pasos, y a solo 15 minutos de las espectaculares playas de Dénia, este ático ofrece lo mejor de ambos mundos: tranquilidad residencial con excelente conexión al entorno urbano y costero. Tu vida ideal en la Costa Blanca comienza aquí. [IW].
Ático en venta en Ondara
Maravilloso dúplex de 127 m² con amplia terraza y vistas despejadas, ubicado a pocos metros del centro comercial y con excelente conexión a la red de carreteras. Construido en 2007 y en perfecto estado de conservación, la vivienda se distribuye en dos plantas: En la planta superior nos recibe un espacioso hall que da paso al comedor y a un luminoso salón, con la posibilidad de instalar una chimenea. A la izquierda, un pasillo conduce a una amplia y luminosa cocina, con acceso directo a la terraza, además de un baño completo con ducha y dos dormitorios con armarios empotrados. En la planta inferior se encuentra la suite principal, que cuenta con armarios empotrados, un baño completo con bañera de hidromasaje y un bonito balcón con vistas. La terraza, de más de 50 m², ofrece una zona ideal para disfrutar al aire libre, equipada con una barbacoa de estilo retro, una pajarera y espacio destinado a lavandería. Desde aquí se puede contemplar un entorno privilegiado, que abarca desde la montaña de Segària hasta el Montgó. Plaza de aparcamiento muy grande privada y cerrada con puerta automática. La vivienda se vende amueblada, con la cocina completamente equipada, y destaca por su luminosidad, distribución práctica y todas sus estancias exteriores. A tan solo 5 minutos a pie del centro y rodeada de todos los servicios necesarios para el día a día, esta propiedad representa una excelente relación calidad-precio.
Local comercial en venta en Ondara
Este bar-restaurante cuenta con 257 m² distribuidos en dos plantas: la planta principal alberga la zona de atención al público -ideal para barra, mesas y ambiente- mientras que la planta baja se reserva como almacén o área de back-office. Gracias a esta combinación, el local ofrece una funcionalidad excepcional, integrando la experiencia cliente con una óptima logística operativa. Su cocina es perfecta para unas tapas que hacen una compañía perfecta a esa bebida que todos desean cuando se entra en un local así. También cuenta dos aseos. Cuenta con una gran historia dentro de la población, debido a su gran carisma que ha logrado durante todo este tiempo. Situado en el corazón de Ondara, este bar goza de una localización privilegiada. Se encuentra a solo 5,6 km de la playa y 7,8 km de Dénia, lo que lo convierte en un punto de encuentro ideal tanto para paseantes urbanos como para visitantes que disfrutan del litoral cercano. No pierda la oportunidad de adquirir este fantástico local con un gran potencial en un entorno privilegiado. ¡Contáctenos para más información y concertar una visita! Referencia SLH-5-17-15861.
Terreno en venta en Ondara
OPORTUNIDAD! A la venta este solar urbano de 100 m2 con entrada o salida a dos calles. Actualmente es un solar al aire libre pero con la posibilidad de construir sótano, planta baja, 1º y 2º. No dispone de electricidad o agua pero el enganche está próximo. Ubicación en el casco urbano de Ondara. Referencia PRT-337311.
Terreno en venta en Ondara
OPORTUNIDAD! A la venta este solar urbano de 100 m2 con entrada o salida a dos calles. Actualmente es un solar al aire libre pero con la posibilidad de construir sótano, planta baja, 1º y 2º. No dispone de electricidad o agua pero el enganche está próximo. Ubicación en el casco urbano de Ondara.
Terreno en venta en Ondara
Solar urbano en venta en Ondara. El suelo tiene 1.062m2 con posibilidad de construcción de 10 viviendas adosadas. Es un terreno llano y con muy buen acceso, ademas se encuentra en el casco urbano de la población, cerca de todo tipo de servicios y a pocos metros del mayor centro comercial de la zona, a 7km de la ciudad de Denia y a 5,5km de la playa. Referencia SLH-5-52-14586.

Local comercial en venta en Ondara
Se vende local comercial en Ondara. Cuenta con 300m2 y se sitúa en el casco urbano de la población. A tan solo 9km de Denia y a 6,5km de la playa. Referencia SLH-5-52-14163.















































































































































































































































































































































































































































































































































































































































































































































































































































































































