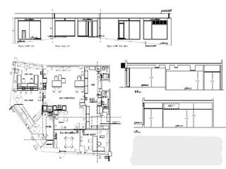
Oficinas Badalona
Sugerencias para ti
Novedades

Mesa oficina o mesa escritorio
Mesa en buen estado por traslado lo vendo esta en Carrer de Biscaia, 334, Sant Andreu, 08027 Barcelona
Local Oficina Parking Vivienda Almacén en Badalona
Se vende en Badalona local de 38 m3, con vado 24 horas!!!Entran 2 furgonetas grandes+2 motos grandes,tiene alta luz+agua+fibra internet+teléfono fijo, persiana eléctrica motor nuevo+2 mandos+4 llaves,instalación de luz nueva,tiene lavabo,extractor de humos+ventilación!!!Casi piso o oficina, o para montar un negocio!!!Está situado en una calle con macho trafico!!!+información por privado venta particular!!!Precio 65,000€ Algo Negociable No me deja ponen ese precio!!!Acepto cambio local o Casa particular lado Tiana,Mataró,Blanes o Play de Aro!!! No se alquila!!!Esta equipado con sistema de Alarma Securitas Direct!!!Obtenerse ocupas!!!
Local planta baja. Oficina/loft Badalona
Local planta baja. Tranquilo y bien comunicado NO tiene cédula.
Oficina en venta en Bufalà en Badalona
OFICINA LUMINOSA EN EDIFICIO CORPORATIVO EN MONTIGALÀ - BADALONA Ubicada en la Avinguda dels Vents, en el área empresarial de Montigalà (Badalona), la oficina se sitúa junto a la Policía Nacional y muy próxima a la B-20 y la C-31, lo que permite un acceso rápido a Barcelona y al aeropuerto. El edificio es corporativo de oficinas, con fachada acristalada, amplia recepción representativa, servicio de conserjería y vigilancia 24h, así como parking público y privado en la misma finca. OFICINA CON GRAN SUPERFICIE DIÁFANA Oficina con una amplia zona diáfana (open space) y varios despachos acristalados, fácilmente reconfigurables según las necesidades de cada empresa. Dispone de tres despachos y una sala de reuniones, con grandes ventanales a fachada que aportan luz natural durante todo el día y generan espacios de trabajo amplios y confortables. El pavimento es de moqueta sobre suelo técnico, con cajas de conexiones repartidas por toda la superficie. La climatización frío/calor está sectorizada por zonas y los aseos son comunitarios en la misma planta. La oficina cuenta además con zona de rack y cableado preparado para red informática. CARACTERÍSTICAS OFICINA - Distribución actual con gran zona diáfana, tres despachos y sala de reuniones. - Divisiones acristaladas, fácilmente adaptables. - Abundante luz natural y fachada acristalada. - Suelo técnico con pavimento de moqueta. - Falso techo registrable con luminarias empotradas. - Climatización frío/calor regulada por zonas. - Instalación de voz y datos y zona de rack. - Aseos comunitarios en la planta. CARACTERÍSTICAS DEL EDIFICIO - Edificio corporativo de oficinas en Montigalà. - Excelente imagen empresarial y fachada acristalada. - Amplia recepción con servicio de conserjería. - Vigilancia 24h. - 3 ascensores. - Aparcamiento público y privado en el mismo edificio. COMUNICACIONES - Metro: líneas L1 y L9N - estación Fondo. - Bus: líneas B15, B29, B80, M19, M1. - Accesos por carretera: conexión directa con B-20 (R
Oficina en alquiler en Centre en Badalona
Fantástica oficina en planta baja, situada en el corazón de Badalona. Con 45 m², este espacio ofrece una gran oportunidad para profesionales y empresas que buscan un entorno tranquilo y discreto. La ubicación es inmejorable, a pocos minutos a pie de la estación de metro Pompeu Fabra, lo que garantiza una excelente conexión con el resto de la ciudad. Aunque la oficina cuenta con poca luz natural, su diseño permite adaptarla a diversas actividades que no dependen de esta. Además, el gran potencial de reforma brinda la posibilidad de personalizar el espacio según las necesidades y gustos del inquilino. Con un aseo incluido y la opción de alquilar una plaza de parking, esta oferta se convierte en una solución práctica y funcional.

Oficina en venta en El Raval - Safaretjos en Santa Coloma de Gramanet
VENTA en Cesión de Remate (Subasta finalizada) Venta de Oficina de 12 m2 en CDR sin posesión (no visitable), en Santa Coloma de Gramenet - Barcelona La adquisición del inmueble publicitado se llevará a cabo de forma exclusiva mediante cesión de remate, en el marco del proceso de Subasta Judicial en el que se encuentra actualmente, sin que exista la posibilidad de compraventa directa. El precio publicado se trata de una orientación al precio de puja mínimo por la cual puede ser adjudicado el inmueble. No se contará con la posesión del inmueble en el momento de la adquisición, no siendo posible visitarlo. El precio indicado en la publicación se trata de un valor de referencia y no supone en ningún caso la aceptación del mismo por parte del acreedor, Toda la información publicada en el presente anuncio se encuentra disponible de manera pública en el boletín oficial del estado. El precio no tiene incluido aquellos gastos que por Ley le pudiera corresponder a la parte adquiriente tales como IVA/ITP, Notaria, Registro. Ikesa es agencia homologada de diferentes Entidades Financieras, disponemos de la mayor oferta de la provincia, visite nuestra web: ikesainmobiliaria. es.
Oficina en alquiler en Bufalà en Badalona
OFICINA LUMINOSA EN EDIFICIO CORPORATIVO EN MONTIGALÀ - BADALONA Ubicada en la Avinguda dels Vents, en el área empresarial de Montigalà (Badalona), la oficina se sitúa junto a la Policía Nacional y muy próxima a la B-20 y la C-31, lo que permite un acceso rápido a Barcelona y al aeropuerto. El edificio es corporativo de oficinas, con fachada acristalada, amplia recepción representativa, servicio de conserjería y vigilancia 24h, así como parking público y privado en la misma finca. OFICINA CON GRAN SUPERFICIE DIÁFANA Oficina con una amplia zona diáfana (open space) y varios despachos acristalados, fácilmente reconfigurables según las necesidades de cada empresa. Dispone de tres despachos y una sala de reuniones, con grandes ventanales a fachada que aportan luz natural durante todo el día y generan espacios de trabajo amplios y confortables. El pavimento es de moqueta sobre suelo técnico, con cajas de conexiones repartidas por toda la superficie. La climatización frío/calor está sectorizada por zonas y los aseos son comunitarios en la misma planta. La oficina cuenta además con zona de rack y cableado preparado para red informática. CARACTERÍSTICAS OFICINA - Distribución actual con gran zona diáfana, tres despachos y sala de reuniones. - Divisiones acristaladas, fácilmente adaptables. - Abundante luz natural y fachada acristalada. - Suelo técnico con pavimento de moqueta. - Falso techo registrable con luminarias empotradas. - Climatización frío/calor regulada por zonas. - Instalación de voz y datos y zona de rack. - Aseos comunitarios en la planta. - Gastos de comunidad e IBI incluidos: 500 €/mes. CARACTERÍSTICAS DEL EDIFICIO - Edificio corporativo de oficinas en Montigalà. - Excelente imagen empresarial y fachada acristalada. - Amplia recepción con servicio de conserjería. - Vigilancia 24h. - 3 ascensores. - Aparcamiento público y privado en el mismo edificio. COMUNICACIONES - Metro: líneas L1 y L9N - estación Fondo. - Bus: líneas B15, B29, B80, M19, M1. - A

Oficina en alquiler en La Morera en Badalona
Zona ajardinada Edificio de oficinas Servicio de conserjería Ascensor Superfície diáfana Aire acondicionado frío-calor Falso techo Luminarias empotradas Carpintería de aluminio Acabados de calidad Zona office Parking en el edificio Buena ubicación Recepción Bien comunicado Baño Certificado energético B Propuesta gratuita de plano de implantación.
Oficina en alquiler en Montigalà -Sant Crist en Badalona
Oficina de 174 m2 en zona Bufalà, Badalona. Suelo de gres, con calefacción y aire acondicionado. Amplias ventanas con luz natural. Edificio de oficinas con servicio de portería.
Oficina en alquiler en Gorg - Pep Ventura en Badalona
Oficina/Alomacen de 110 m2 aprox en alquiler en la zona de Sants-Les Corts. Situada junto Avenida Madrid y calle Galileo. Tiene una entrada peatonal y ascensor que da acceso a la primera planta. El inmueble dispone de 4 salas una de 25 m2, y 17,25 m2 de sala de reunines, asi como dos salsas destinadas a almacen. de 19 m2 y 14 respectivamente. Aire Acondicionado, falso techo, luminarias. Suministros de alta. Se entregará recien pintada, se puede alquilar con o sin muebles. Condiciones. Fianza 2 meses. Se solicitan referencias de solvencia. Ideal servicios, constructoras etc. Metro L 3 Plaça del Centre.
Oficina en alquiler en Port en Badalona
Noves oficines en lloguer, al nostre edifici d'oficines de Granland de Badalona. Cada oficina esta totalment equipada: •Aire Condicionat independent •Terra tècnic •Cablejat de veu i dades •Caixes de connexions electricitat / SAI / veu / dades distribuïdes per l'oficina. •Banys complets. •Office. •Edifici te servei de consergeria de dilluns a divendres de 8-20h. •Zona d'aparcament per bicicletes i patinets en el subterrani. •Vestidors amb taquilles i dutxes. A la planta subterrània del mateix edifici, tenim places de pàrquing opcionals i carregadors elèctrics per cotxe, patinets i bicicletes. La terrassa situada a la coberta de l'edifici, es un dels espais privilegiats on es pots gaudir de les vistes espectaculars que ofereix la ubicació, podent veure tota la costa des de Barcelona fins a Mataró i tot Collserola i Tibidabo. Es un espai ideal, on trobem zona de sofàs per relaxar-se i una zona amb taula per poder treballar ja que es una zona amb Wifi. L'oficina disponible en aquest moment és de 344 m2 amb zones comunes i tenim la possibilitat de dividir-les en 2 oficines, una de 128 m2 i l'altra de 216 m2. Preu de les dues oficines juntes es de 4.800 €/mes + iva amb les despeses incloses. Edifici ubicat a l'Avinguda Maresme numero 44 de Badalona, davant les 3 Xemeneies i del futur Hub de l'Audiovisual de Barcelona i al costat del Port de Badalona. El Parc té una immillorable situació estratègica (Metro, Tramvia i RENFE), amb enllaços a les Rondes de Barcelona (sortides 25, 26 i 27), accessos a Barcelona per Diagonal Mar, 22@, Poble Nou i la Gran Via. Les tindrem disponibles a l'octubre Podem realitzar visites.
Oficina en alquiler en Port en Badalona
Oficina en alquiler en San Roc - El Remei en Badalona
Oficina en alquiler en Avinguda Maresme / Alfons XII, Badalona Este moderno edificio acristalado ofrece despachos diáfanos con aseo interior y mucha luminosidad. Equipadas con aire acondicionado, cerramientos de PVC Servicios de conserjería de lunes a viernes, dos ascensores y opción de parking con acceso directo. Excelente ubicación y fácil acceso al transporte público. disponemos de 4 oficinas de superficie 37 m2 - 63 m2 - 47 m2 - 50 m2 útiles Contáctanos para más información.
Oficina en venta en Montigalà -Sant Crist en Badalona
Oportunidad de inversión: inmueble alquilado o cedido su uso. Fecha de fin de contrato: 09/2023. ¡Miles de locales, oficinas y naves con descuento! Oficina ubicada en la planta 4 del edificio BLURBIS de Badalona. De superficie construida 331, 82m2. Suelo técnico, climatización. Servicio de portería 24h. Buenas vistas. Consulte con nuestro Agente Comercial la información adicional sobre el inmueble y las condiciones especiales de compraventa. Imposibilidad de visita interior. Las fotografías pueden no corresponderse con el estado actual del inmueble.
Oficina en alquiler en San Roc - El Remei en Badalona
Oficina en alquiler en Badalona (Barcelona) de 250 m2, planta exterior con abundante luz natural, en un espacio diáfano con dos baños individuales, reformada y con buenas calidades. Luminarias empotradas en falso techo y suelo de terrazo. Suministros de luz y agua dados de alta. La oficina tiene posibilidad de plazas de aparcamiento en el mismo edificio (75 euros plaza mes). Ubicado a escasos metros de la parada de metro de Sant Roc en Badalona. Ubicación inmejorable relación calidad precio. Para entrar a trabajar de inmediato! [IW].
Oficina en venta en Bufalà en Badalona
Referencia BLURBIS-31A Oficina alquilada hasta agosto de 2026 con una renta de alquiler de 1.883, 4 euros al mes (gastos de comunidad de 502€/mes e IBI de 145 €/mes a cargo del arrendatario). Rentabilidad neta de 11,95%. Imposibilidad de visita (NDA disponible para interesados). Ubicada en el edificio exclusivo de oficinas Blurbis de Badalona. CARACTERÍSTICAS DE LA OFICINA: ■ Superficie catastral de 264m². ■ Ubicada en planta 3ª con buenas vistas. ■ Dispone de suelo técnico para electricidad y cableado de red. ■ Falso techo con luminarias empotradas. ■ Sistema de climatización frío/calor mediante conductos por falso techo. CARACTERÍSTICAS DEL EDIFICIO: ■ Fachada acristalada. ■ Servicio de conserjería 24 horas. ■ Dispone de 3 ascensores por escalera (2 escaleras) + 2 ascensores al garaje. ■ Garaje en el mismo edificio (plaza de garaje no incluida a partir de 9.000€/plaza). ■ Plazas de garaje por la zona. ■ Edificio construido en 2004. CONDICIONES DE COMPRA: -La venta se realizará por IVA al 21% (posibilidad de inversión del sujeto pasivo de IVA). ÚLTIMAS OFICINAS DISPONIBLES CON DISPONIBILIDAD INMEDIATA: **************************************************************************************************************************************************** ESCALERA B (superficies catastrales): ■ Planta 4ª: 337 m²(en rentabilidad). ■ Planta 3ª: 263 m². ■ Planta 3ª: 337 m². **************************************************************************************************************************************************** Comunicaciones: ■ BUS: B2, B24, M19, N2 ■ CARRETERAS: B-20 (Rda Dalt), C-31 ■ METRO: L2 Badalona Pompeu Fabra (a 15 minutos a pie) Para visitas u otras oficinas similares, contáctenos o visite nuestra web.
Oficina en venta en Bufalà en Badalona
Referencia BLURBIS-31B Oficina con disponibilidad INMEDIATA ubicada en el edificio exclusivo de oficinas Blurbis de Badalona. CARACTERÍSTICAS DE LA OFICINA: ■ Superficie catastral de 264m². ■ Ubicada en planta 3ª con buenas vistas. ■ Dispone de suelo técnico para electricidad y cableado de red. ■ Falso techo con luminarias empotradas. ■ Sistema de climatización frío/calor mediante conductos por falso techo. ■ Dispone de office privativo. CARACTERÍSTICAS DEL EDIFICIO: ■ Fachada acristalada. ■ Servicio de conserjería 24 horas. ■ Dispone de 3 ascensores por escalera (2 escaleras) + 2 ascensores al garaje. ■ Garaje en el mismo edificio (plaza de garaje no incluida). ■ Plazas de garaje por la zona. ■ Edificio construido en 2004. CONDICIONES DE COMPRA: -La venta se realizará por IVA al 21% (posibilidad de inversión del sujeto pasivo de IVA). DISPONEMOS de más oficinas en venta en el edificio Blurbis (tanto en rentabilidad como disponibles de inmediato): **************************************************************************************************************************************************** -ESCALERA B (superficies catastrales): ■ Planta 4ª: 337 m²(en rentabilidad). ■ Planta 3ª: 264m² (en rentabilidad) + 333m² + 337m² + 263m² (todas ellas en la misma planta y escalera. Suma total de 1.197m²). -ESCALERA A (superficies catastrales): ■ Planta 3ª: 264m² + 263m²(en rentabilidad). GARAJE EN EL MISMO EDIFICIO: ■ Últimas 2 plazas de garaje en el mismo edificio a razón de 9.000 euros/plaza. **************************************************************************************************************************************************** Comunicaciones: ■ BUS: B2, B24, M19, N2 ■ CARRETERAS: B-20 (Rda Dalt), C-31 ■ METRO: L2 Badalona Pompeu Fabra (a 15 minutos a pie) Para visitas u otras oficinas similares, contáctenos o visite nuestra web.
Oficina en venta en Bufalà en Badalona
Referencia BLURBIS-32B Oficina con disponibilidad INMEDIATA ubicada en el edificio exclusivo de oficinas Blurbis de Badalona. CARACTERÍSTICAS DE LA OFICINA: ■ Superficie catastral de 337m². ■ Ubicada en planta 3ª con buenas vistas. ■ Dispone de suelo técnico para electricidad y cableado de red. ■ Falso techo metálico con luminarias empotradas. ■ Sistema de climatización frío/calor mediante conductos por falso techo. ■ Posibilidad de Office (presinstalación hecha). CARACTERÍSTICAS DEL EDIFICIO: ■ Fachada acristalada. ■ Servicio de conserjería 24 horas. ■ Dispone de 3 ascensores por escalera (2 escaleras) + 2 ascensores al garaje. ■ Garaje en el mismo edificio (plaza de garaje no incluida). ■ Plazas de garaje por la zona. ■ Edificio construido en 2004. CONDICIONES DE COMPRA: -La venta se realizará por IVA al 21% (posibilidad de inversión del sujeto pasivo de IVA). GARAJE EN EL MISMO EDIFICIO: ■ Últimas plazas de garaje en el mismo edificio a razón de 9.000 euros/plaza. Comunicaciones: ■ BUS: B2, B24, M19, N2 ■ CARRETERAS: B-20 (Rda Dalt), C-31 ■ METRO: L2 Badalona Pompeu Fabra (a 15 minutos a pie) Para visitas u otras oficinas similares, contáctenos o visite nuestra web.
Oficina en venta en Bufalà en Badalona
Referencia BLURBIS-42B Ubicada en el edificio exclusivo de oficinas Blurbis de Badalona. Servicio de conserjería 24 horas. Garaje en el mismo edificio. LA OFICINA: ■ Superficie catastral de 337m². ■ Ubicada en planta 4ª con buenas vistas. ■ Dispone de suelo técnico para electricidad y cableado de red. ■ Falso techo con luminarias empotradas. ■ Sistema de climatización frío/calor mediante conductos por falso techo. EL EDIFICIO: ■ Fachada acristalada. ■ Servicio de conserjería 24 horas. ■ Dispone de 3 ascensores por escalera (2 escaleras) + 2 ascensores al garaje. ■ Garaje en el mismo edificio (plaza de garaje no incluida). ■ Plazas de garaje por la zona. ■ Edificio construido en 2004. CONDICIONES DE COMPRA: -La venta se realizará por IVA al 21% (posibilidad de inversión del sujeto pasivo de IVA). Comunicaciones: ■ BUS: B2, B24, M19, N2 ■ CARRETERAS: B-20 (Rda Dalt), C-31 ■ METRO: L2 Badalona Pompeu Fabra (a 15 minutos a pie) Para visitas u otras oficinas similares, contáctenos o visite nuestra web.
Local comercial en venta en La Salut - Lloreda en Badalona
Dolça Llar Santa Coloma de Gramanet, presenta en exclusiva esta fantástico Local Comercial de 176 m2 distribuidos en 2 plantas, gran oportunidad para inversión. Características principales: Se ofrece en venta local comercial de 176 m² situado en la calle Amadeu Vives, en el municipio de Badalona, dentro de un entorno residencial consolidado, con actividad comercial de proximidad y buena conexión con el resto de la ciudad. El inmueble cuenta con una distribución funcional en dos plantas, que permite una clara diferenciación de usos y una explotación eficiente del espacio: Planta baja de 102 m², a pie de calle, ideal como zona principal de actividad comercial, atención al público, exposición o área operativa. Planta primera tipo entresuelo de 74 m², baño, perfecta para oficinas, despachos, salas de trabajo, almacén o zona privada de gestión. El local dispone de persiana eléctrica, lo que aporta comodidad en el uso diario, mayor seguridad y una correcta imagen exterior. Aspectos destacados para inversores Superficie total amplia y muy aprovechable (176 m²) Distribución en dos niveles, muy demandada en alquiler Ubicación en zona residencial con demanda estable de servicios Inmueble adaptable a múltiples actividades: comercio, oficinas, academias, consultas profesionales, estudio, showroom o servicios Producto adecuado tanto para inversión patrimonial como para usuario final Gracias a sus características, el local permite diversas estrategias de inversión, ya sea mediante alquiler a un único operador o adaptación según la tipología de negocio, ofreciendo potencial de rentabilidad y revalorización a medio y largo plazo. Una oportunidad interesante para inversores que buscan un activo sólido en Badalona, con buena relación entre superficie, ubicación y posibilidades de explotación. En el precio del inmueble no se incluye los gastos de notaría, registro, impuestos y los honorarios que se le puedan girar al comprador. ¡No dudes en visitarlo! Poseemos asesoramiento
Oficina en venta en Bufalà en Badalona
UBICACIÓN: Oficina CON INQUILINO situada junto al parque Montigala, Badalona. Muy bien comunicada con las líneas de transporte público y con las autovías C-31 y B-20. DESCRIPCIÓN: Oficina CON INQUILINO de 337m2 aprox situada en 4ª planta del edificio. Cuenta con grandes ventanales que aportan luz natural. Hay posibilidad de obtener plazas de parking en el mismo edificio. *PARA INVERSIONISTA. *Inmueble procedente de cartera bancaria, sujeto a cambios. Para más información contacte con nuestros asesores. O-428.
Oficina en venta en Bufalà en Badalona
UBICACIÓN: Oficina situada junto al parque Montigala, Badalona. Muy bien comunicada con las líneas de transporte público y con las autovías C-31 y B-20. DESCRIPCIÓN: Oficina de 263m2 aprox situada en 3ªplanta del edificio. Cuenta con grandes ventanales que aportan luz natural. Hay posibilidad de obtener plazas de parking en el mismo edificio. *Inmueble procedente de cartera bancaria, sujeto a cambios. Para más información contacte con nuestros asesores. O-427.

Local comercial en alquiler en Montigalà -Sant Crist en Badalona
Local comercial todo en planta ideal supermercado, bazar, oficinas, gimnasio etc.
Nave industrial en alquiler en Pomar en Badalona
NAVE INDUSTRIAL EN ALQUILER Polígono Industrial Las Guixeres - Badalona Nave industrial-logística situada en el Polígono Industrial Las Guixeres de Badalona, una de las zonas industriales más consolidadas del área metropolitana, con excelente proximidad a Barcelona ciudad y acceso inmediato a las principales vías de comunicación (C-31, B-20 y B-10), lo que la convierte en una ubicación ideal para distribución urbana, logística de última milla o actividad industrial ligera. El activo cuenta con una superficie total aproximada de 805 m², distribuidos en 650 m² de planta baja destinados a almacenaje y 155 m² de oficinas en planta altillo, totalmente equipadas. CARACTERÍSTICAS PRINCIPALES Estructura de hormigón 666 m² de nave en planta baja 155 m² de oficinas en altillo, equipadas Dos puertas de acceso TIR Nave alquilada con estanterías tipo Mecalux incluidas Instalación contra incendios completa: BIEs Sistema de detección Rociadores Suministros de agua y electricidad dados de alta Nave funcional y operativa, pendiente únicamente de tareas menores de limpieza y adecuación estética USO Y POSICIONAMIENTO Activo especialmente indicado para: Operadores logísticos pequeños y medianos Distribución urbana y última milla Empresas de recambios o producto paletizado Actividad industrial ligera con necesidades de stock La posibilidad de aprovechar las estanterías existentes permite una entrada inmediata en operación, reduciendo significativamente la inversión inicial del arrendatario. CONDICIONES ECONÓMICAS Renta: 5.000 € / mes Honorarios de comercialización: equivalentes a una mensualidad de renta Gastos: a cargo del arrendatario.
Nave industrial en alquiler en Bufalà en Badalona
Se alquila nave industrial totalmente rehabilitada en 2025, situada en una ubicación estratégica en Badalona, a tan solo 10 minutos del centro de Barcelona y 25 minutos del Aeropuerto del Prat. Ideal para logística, distribución, servicios técnicos o actividad comercial de gran formato. La nave dispone de una superficie construida total de 2.236, 10 m², distribuida en 4 plantas amplias y diáfanas, con excelente luminosidad natural y altura libre de 6,50 m, creando un entorno de trabajo moderno, funcional y eficiente. DISTRIBUCIÓN DE SUPERFICIES -Planta sótano: 518,27 m² - ideal para almacén y aparcamiento -Planta baja: 503,19 m² - operativa y logística -Entreplanta: 362,44 m² - uso polivalente -Planta primera: 502,45 m² - perfecta para oficinas -Planta segunda: 349,75 m² - zona administrativa o técnica -Total construido: 2.236, 10 m² CARACTERÍSTICAS PRINCIPALES -Plantas diáfanas y versátiles -Excelente visibilidad y localización -Estructura de hormigón -Cubierta tipo sándwich -2 puertas de acceso TIR -Acceso peatonal independiente -Ascensor y montacargas que conectan todas las plantas -Zona de lavado de coches en planta baja -Patio delantero vallado y acceso posterior -Posibilidad de aparcamiento en sótano y patio -Espacios habilitados para oficinas en planta primera y segunda -Acometida eléctrica -Iluminación LED y cuadro eléctrico general -Suministros dados de alta COMUNICACIONES Accesos directos a B-20 y C-31, lo que convierte esta nave en un punto estratégico para empresas que necesiten rapidez logística y excelente conexión metropolitana. UNA OPORTUNIDAD ÚNICA Una nave moderna, funcional y lista para entrar, en una de las zonas industriales mejor comunicadas del área metropolitana de Barcelona. Contacta con nosotros para más información o para concertar una visita. ¡No dejes pasar esta oportunidad!
Nave industrial en alquiler en Port en Badalona
Alquiler de nave industrial en Badalona - Zona Gorg-Progrés-Pep Ventura DESGLOSE DE SUPERFICIE: Planta Baja: 312,15m² Planta Primera: 312,15m² Superficie Total: 624,30m² Altura libre: 8m CARACTERÍSTICAS: Nave adosada Estructura hormigón Cubierta tipo sándwich Con Suministros de agua y luz 4 plazas de aparcamiento 4 aseos Oficina acondicionada y acondicionada Sistema de seguridad: alarma Sistema anti-incendios: BIES, detección Interior en perfecto estado Exterior urbanizado Muy buena accesibilidad 1 puerta TIR y una peatonal de acceso Buen estado de estado conservación Montacargas de 1.000kg UBICACIÓN: Badalona se encuentra a 10 minutos del centro de Barcelona y a 25 min del Aeropuerto del Prat. TRANSPORTE: Acceso directo desde la C-31 (Salida 210). Acceso desde la B-20 (Salida 27). Transporte público: Rodalies RENFE: R1 parada Sant Adrià. Bus: 43, 44. Metro: L2 parada Sant Roc.
Nave industrial en alquiler en Pomar en Badalona
NAVE INDUSTRIAL EN ALQUILER EN BADALONA DESGLOSE DE SUPERFICIE: Planta Baja: 340m² Planta Primera: 160m² Superficie Total: 500m² Alto: 7m Patio: 25m² CARACTERÍSTICAS: Nave adosada Patio delantero 25m² Estructura hormigón Sistema anti-incendios: BIES Puertas de acceso: una para camión y 1 peatonal Interior en buen estado Oficina acondicionada Vestuarios 2 aseos Garaje: 2 o más plazas Sistema de seguridad: alarma Accesibilidad muy buena UBICACIÓN: Badalona se encuentra a 10 minutos del centro de Barcelona y a 25 min del Aeropuerto del Prat. TRANSPORTE: Acceso directo desde la C-31. Acceso desde la B-20. Rodalies RENFE: R1 parada Sant Adria". Bus (43, 44). Metro: L2 parada Sant Roc.
Oficina en venta en Bufalà en Badalona
Referencia BLURBIS-33Bv Directo propietario (activo NO bancario). Disponibilidad inmediata ubicada en el edificio exclusivo de oficinas Blurbis de Badalona. 1 plaza de garaje INCLUIDA en el precio y en el mismo edificio. Vistas despejadas a Badalona. CARACTERÍSTICAS DE LA OFICINA: ■ Superficie catastral de 333m². ■ Ubicada en planta 3ª con buenas vistas. ■ Dispone de suelo técnico para electricidad y cableado de red. ■ Falso techo metálico con luminarias empotradas. ■ Sistema de climatización frío/calor mediante conductos por falso techo con 4 termostatos. ■ Posibilidad de instalar office. CARACTERÍSTICAS DEL EDIFICIO: ■ Fachada acristalada. ■ Servicio de conserjería 24 horas. ■ Dispone de 3 ascensores por escalera (2 escaleras) + 2 ascensores al garaje. ■ Garaje en el mismo edificio (1 plaza de garaje incluida). ■ Plazas de garaje por la zona. ■ Edificio construido en 2004. Comunicaciones: ■ BUS: B2, B24, M19, N2 ■ CARRETERAS: B-20 (Rda Dalt), C-31 ■ METRO: L2 Badalona Pompeu Fabra (a 15 minutos a pie) Para ampliar información o visitar, contáctenos.
Terreno en venta en Bufalà en Badalona
En venta: parcela de 1416m2 con calificación de suelo industrial clave V. Edificable en planta baja +2 plantas. Usos admitidos: uso industrial, en industrias en categoría primera, segunda, tercera y cuarta. Se admiten comercios al por mayor y parques de vehículos y maquinaria. Apto también para: oficinas y sector sanitario. Ideal centros médicos, centro de medicina estética y todas sus variantes. Centros culturales, recreativos y deportivos. For sale: 1416m2 plot with industrial land classification key V. Buildable ground floor +2 floors. Admitted uses: industrial use, in industries in the first, second, third and fourth category. Wholesale shops and vehicle and machinery parks are allowed. Also suitable for: offices and health sector. Ideal medical centers, aesthetic medicine center and all its variants. Cultural, recreational and sports centers. En venda: parcel · la de 1416m2 amb qualificació de sol industrial clau V. Edificable a planta baixa +2 plantes. Usos admesos: ús industrial, en indústries en categoría primera, segona, tercera i quarta. S'admeten comerços a l´engros i parcs de vehicles i maquinària. Apte també per a: oficines i sector sanitari. Ideal centres mèdics, centre de medicina estètica i totes les seves variants. Centres culturals, recreatius i esportius.
Local comercial en venta en La Salut - Lloreda en Badalona
Local comercial con acceso directo a la calle Estadi situado en el municipio de Badalona, en la provincia de Barcelona. El edificio en el que se encuentra es de uso residencial de seis alturas sobre rasante, que por su antigüedad, no dispone de ascensor. El acceso a las viviendas se realiza por un portal independiente del acceso al local comercial. Se ubica en una de las zonas de mayor tránsito de la ciudad, siempre se ha considerado que se trata de una zona próxima a las principales calles de la localidad, donde se ubican las oficinas de las entidades financieras relevantes. La calle tiene una gran densidad de tráfico y una densidad peatonal media. Tiene una ocupación de locales entorno al 80%, el tipo de negocio es el de oficinas y terciario. El entorno es principalmente residencial, con edificios entre medianeras de entre seis y siete alturas, generalmente con locales comerciales en planta baja. Dicha calle conecta las principales zonas de la ciudad con el casco antiguo. El local tiene una morfología regular. Dispone de una superficie de 100m2 construidos, con una fachada lineal principal de 8 m y una superficie útil de 98m2. El Local se distribuye, en una zona de acceso, una zona de atención al público, un cuarto de aseos En general el inmueble se encuentra en buen estado de conservación, siendo necesario realizar las reformas necesarias para adecuarlo al negocio a emprender. El pavimento de todo el local es a base de piezas cerámicas.
Oficina en venta en Casagemes - Canyadó en Badalona
OFICINA EN PLANTA BAJA EN PRIMERA LÍNEA DE MAR (BADALONA / MONTGAT) MANRESÀ "VIUREMAR RESIDENCES" CALLE MANRESÀ, 50-60 JUNTO ESTACIÓN RENFE MONTGAT Oficina a estrenar en planta baja de 13 m2 en finca de obra nueva construida en 2025, exterior y con distribución diáfana. La oficina cuenta con los siguientes equipamientos: calefacción, aire acondicionado, iluminación pantallas techo LED, puntos de trabajo con enchufes, RJ45 y clavijas UTP, tomas de antena TV, fibra óptica y puerta blindada además de disponer de cuatro baños en la zona comunitaria, con lo que resulta ideal como despacho profesional. Situada en un edificio en primera línea de mar, en la frontera entre los términos municipales de Badalona y Montgat, la oficina está muy bien comunicada por transporte público (a un par de minutos a pie de la estación de RENFE Montgat y diversas líneas de bus) y por carretera.
Local comercial en alquiler en La Salut - Lloreda en Badalona
Local comercial en alquiler y venta. Descripción del inmueble Local comercial de 33 m² ubicado en Avenida Cataluña, junto a Rambla San Juan, dentro de un entorno consolidado, cuenta con un tránsito constante tanto de residentes como de usuarios de los comercios de proximidad. La zona presenta una alta densidad residencial y un tejido comercial muy activo, lo que aporta visibilidad y oportunidades para cualquier actividad profesional. El local se encuentra rodeado de negocios en funcionamiento como Supermercado Condis, Telepizza, Farmacia, panaderías con degustación, centro de estética, copistería, entre otros comercios de barrio que refuerzan la actividad diaria de la zona. Por sus características y superficie, es adecuado para despacho profesional, pequeño comercio, oficina o almacén. Ideal para profesionales o emprendedores que buscan la ubicación ideal para su negocio. Condiciones económicas Alquiler: 690 €/mes +Gastos • IBI: 9,00 € mensuales + Comunidad: 15,00 € mensuales Venta: 135.000 € *Consultar condiciones de contratación Contáctanos para más información y visitas. ¿Listo para encontrar el lugar perfecto para tu negocio? En CPL SERVEIS sabemos que el éxito de tu negocio comienza con la ubicación adecuada.
Terreno en venta en Artigas - Llefià en Badalona
Magnífica parcela en zona de Llefia, en el municipio de Badalona uso principal residencial, con superficie total 104 m2, uso permitido tanto unifamiliar como plurifamiliar, residencial, comercial, oficinas, todo tipo de equipamientos, garaje, talleres artesanos y pequeña industria en situación 1ª y 2ª. Clave 13b. Edificación según alineación de vial. Nº de plantas PB+altillo+2PP. Profundidad edificable del 100%. Calculo edificable en su mejor uso sería el de tres plantas de 104 m2, mas altillo de 85 m2. Cuenta con parada de autobuses a los rededores paradas líneas B3, B23, metro L10 Llefia a 4 minutos andando. A tan solo 5 minutos andando del mercado municipal de Llefia, fondo del solar orientado a la Plaça de i´Amistat, colegios, guarderías, calle comercial Pérez Galdós a escasos metros. Se comunica con el resto de las poblaciones cercanas por La Nacional-II, la Autopista C-32. y La B-20. El municipio tiene estación de RENFE, servicio de Metro (en los barrios de Gorg y Pep ventura), Tranvía y Autobús.
Local comercial en alquiler en Montigalà -Sant Crist en Badalona
Local ubicado en la zona del Sant Crist: una zona habitada mayoritariamente por familias y personas de mediana edad. Esto significa que el perfil de cliente puede ser estable y local, lo que ayuda a crear una base de clientes recurrentes. Dependiendo del negocio, podrías tener una clientela leal a largo plazo, póximo Centro Comercial Màgic Badalona y la Avinguda de Navarra, que alberga una gran variedad de comercios, tiendas y restaurantes, proximo a transporte público, metro y bus. Caracteríaticas principales: •173M2 •15 Metros de fachada •10 Metros de profundidad •Esquinero. •Local diáfano. Para crear un texto publicitario efectivo para un local comercial esquinero con las características que mencionas, es importante resaltar los puntos clave que hacen atractivo el local, tanto en términos funcionales como estéticos. Aquí tienes un ejemplo que puedes adaptar según tu negocio o necesidad: ¡Tu nuevo negocio en el mejor lugar de la ciudad! Local comercial en esquina con escaparate de 15 metros de visibilidad. 100% exterior y bañado de luz natural durante todo el día, creando un ambiente único y acogedor para tu negocio. Con una distribución diáfana y totalmente abierta, este local ofrece una flexibilidad total para adaptarse a tus necesidades comerciales. Ya sea una tienda, oficina, showroom, o cualquier otro tipo de negocio, las posibilidades son infinitas. ¿Por qué este local es perfecto para tu negocio? Ubicación esquinera: Visibilidad máxima desde dos calles, ideal para captar el interés de viandantes y clientes potenciales. Escaparate de 15 metros: Perfecto para mostrar tus productos o servicios de forma impactante y atractiva. Luz natural todo el día: Espacios amplios y luminosos que mejoran la experiencia de compra o trabajo para tus clientes y empleados. Distribución diáfana: Sin columnas ni obstáculos, lo que te permite crear un espacio abierto y versátil que se adapta a cualquier tipo de actividad. Accesibilidad: Facilidad de acceso. No lo dude, contá
Bar en venta en San Roc - El Remei en Badalona
La Casa Agency ofrece a la venta. Bar-Restaurante en funcionamiento con terraza en Badalona - listo para entrar Se vende bar-restaurante en pleno funcionamiento en la zona de Juli Galvè Brusson (Badalona), ideal para continuar la actividad desde el primer día. El local dispone de una superficie total de 62 m², formada por la unión de dos locales de 31 m² cada uno, con dos escrituras independientes. Cada local pertenece a una comunidad distinta, por lo que se pagan dos recibos de IBI y dos cuotas de comunidad. Actualmente funciona como cafetería, tapas y menús, con negocio en marcha y clientela habitual. El estado es muy bueno, totalmente equipado y listo para entrar a trabajar, sin necesidad de reformas. Cuenta además con terraza exterior con toldos, un valor añadido muy demandado que permite ampliar la capacidad y trabajar cómodamente durante todo el año. La venta se realiza por motivo de jubilación, lo que representa una excelente oportunidad tanto para autoempleo como para inversión. Características principales: Superficie: 62 m² 2 locales unidos (31 m² + 31 m²) 2 escrituras Terraza con toldos Bar-restaurante en activo Zona consolidada Listo para entrar Oportunidad ideal para quien busca un negocio funcionando y con continuidad inmediata. -Sobre La Casa Agency- Somos una agencia inmobiliaria con presencia en todo el territorio nacional, con más de 70 oficinas, ofreciendo una cobertura absoluta en las principales ciudades del país. Nuestro trabajo consiste en realizar todos los trámites y gestiones necesarias para la intermediación inmobiliaria. Disponemos de una amplia cartera de inmuebles de todo tipo. Además, ofrecemos servicios inmobiliarios complementarios de alta calidad, como: -Gestión vertical y/u horizontal de propiedades. -Soluciones de financiación para la compra o el alquiler de inmuebles. -Tramitación de seguros y asesoramiento jurídico y fiscal para garantizar una transacción segura y sin complicaciones. -Reformas y diseño de inter
Local comercial en venta en La Salut - Lloreda en Badalona
TECNOCASA LLOREDA tiene el placer de ofrecerles este local en EXCLUSIVA en el barrio de Lloreda (Badalona). Se vende local comercial situado en plena Rambla Sant Joan, en el barrio de Lloreda (Badalona), una de las zonas con mayor paso peatonal y visibilidad del área. El local dispone de 86 m² construidos, distribuidos en dos plantas, lo que permite una excelente organización del espacio según las necesidades del negocio. Ubicado en una zona comercial consolidada, rodeado de todo tipo de servicios y comercios, ideal para montar un negocio propio o como inversión por su alto potencial de rentabilidad. Esta propiedad goza de una excelente ubicación, en zona tranquila, bien ubicada, rodeada de servicios, un polideportivo, parques infantiles, zonas ajardinadas y comercios varios, tales como: Colegios, ambulatorios, transporte público Si lo desea puede llamarnos por teléfono o bien solicitar más información en nuestro punto de venta de RAMBLA SANT JOAN n°99 Local E en Badalona. Información al consumidor: Les comunicamos que, en el precio ofertado de venta, no están incluidos los gastos de compraventa (notariales, registrales, gestoría e impuestos estatales de ITP, ni gestión de la agencia). Si desean visitar este inmueble nuestros agentes, le informarán detalladamente de estos gastos, antes de visitarlo. Local versátil, apto para tienda, oficinas, despacho profesional, centro de estética, servicios o franquicia. Una oportunidad única en una ubicación estratégica.
Oficina en venta en Bufalà en Badalona
Oficina en el centro de Badalona, en el mítico edificio Blurbis. Planta totalmente diáfana y exterior, muy luminosa, con vistas 360. Edificio vigilado las 24h con cuatro ascensores. Muy bien ubicado y comunicado. Se disponen plazas de parking en venta en el mismo edificio.
Oficina en venta en Artigas - Llefià en Badalona
Local en Badalona, Barcelona. Dispone de una superficie de 51 m² construidos distribuidos en una planta. Está situado en el centro de Badalona, en sus alrededores encontramos el centro sanitario CAP El Fondo, la Escola Feliu i Vegués, supermercados, bancos, bibliotecas, farmacias, oficinas de correos, centros deportivos, varias paradas de autobús y la estación de metro Llefià. Cuenta con fácil acceso a C-31.
Local comercial en venta en Gorg - Pep Ventura en Badalona
Los gastos de compraventa no están incluidos en el precio, que serán a cargo del comprador (ITP, Notario, Registro). ¡Una oportunidad única en la zona de Progrés de Badalona! Este espacioso local de 89 metros cuadrados según referencia catastral, con 3,55 metros de altura de techos que crean una sensación de amplitud. Con una gran fachada de 4,10 metros que garantiza una exposición excepcional, este local es el lienzo perfecto para dar vida a tu próximo negocio. Este local es versátil y se presta para una amplia variedad de usos comerciales. Ya seas que estés buscando abrir una boutique de moda, una tienda de diseño, una cafetería de moda o una oficina, este espacio puede adaptarse a tus necesidades. Aunque no cuenta con salida de humos, su proximidad al metro Pep Ventura facilita el acceso tanto para clientes como para empleados. No pierdas la oportunidad de establecer tu negocio en esta ubicación estratégica y con tanto potencial. ¡Contáctanos hoy mismo para programar una visita y descubrir todas las posibilidades que este local tiene para ofrecer" En el precio no están incluidos los gastos inherentes a la compra a cargo del comprador. En nuestra web encontrarás muchos más inmuebles que los publicados aquí y además disponemos de un amplio catálogo privado de propiedades que se pueden ajustar a lo que estás buscando. Si estás pensando en vender tu vivienda, contáctanos para una valoración gratuita.
Local comercial en alquiler en La Salut - Lloreda en Badalona
Se alquila local comercial de 50 m² en una de las zonas más prácticas y con mejor conexión de Badalona. El espacio es diáfano, cómodo y versátil, perfecto para montar un pequeño negocio, oficina, estudio, almacén o punto de atención al público. La fachada ofrece buena visibilidad a pie de calle y permite adaptar el local según las necesidades del proyecto. El entorno cuenta con todo tipo de servicios: supermercados, comercios de barrio, paradas de bus, colegios y acceso rápido tanto al centro de Badalona como a Barcelona. Además, se encuentra junto a vías principales, lo que facilita la llegada de clientes y proveedores. Una oportunidad excelente para profesionales, autónomos y pequeños negocios que necesitan un local bien ubicado, fácil de adaptar y con un alquiler competitivo.
Local comercial en alquiler en Centre en Badalona
¡Local en Alquiler en el Corazón de Badalona! ¡Oportunidad única! Este amplio local de 180 m² en pleno centro de Badalona te espera para dar vida a tu negocio. Ubicado en la calle Francesc Layret, esquina con Riera Matamoros, su estratégica posición garantiza una alta visibilidad y un flujo constante de clientes. Con una impresionante fachada de cristal de 20 metros, tendrás la posibilidad de instalar hasta 4 escaparates, perfectos para mostrar tus productos o servicios. El local, totalmente reformado hace 10 años, cuenta con 4 estancias: 3 oficinas y un almacén, además de un pequeño office ideal para disfrutar de un café en tus momentos de descanso. Con 2 baños y equipamiento de calefacción y aire acondicionado, este espacio está listo para adaptarse a tus necesidades. Actualmente alberga una agencia inmobiliaria y una asesoría, lo que demuestra su versatilidad y potencial. No pierdas la oportunidad de establecer tu negocio en un lugar con tanto tráfico y visibilidad. ¡Contáctanos para más información y ven a conocer tu próximo local!
Local comercial en alquiler en Centre en Badalona
Presentamos un atractivo local comercial disponible para alquiler, ubicado en una de las calles más transitadas del centro de Badalona. Este espacio de planta baja cuenta con una superficie total de 58 m2 aprox. que se distribuyen eficientemente: al entrar, encontrará un primer ambiente luminoso ideal para exhibir productos o recibir clientes, despues otro espacio de unos 17m aprox. perfectamente adaptable a las necesidades comerciales. Adyacente a este espacio hay otra sala interior de 12 m2 aprox. que puede servir como oficina privada o área adicional según su actividad. Además, dispone de una zona destinada a almacenaje equipada con estanterías y suficiente capacidad (6 m2) para mantener organizados todos los insumos necesarios para su negocio. El local incluye también un baño completo. Esta propiedad es perfecta no solo para pequeños comercios sino también adecuada como consulta médica o despacho profesional gracias a su ubicación estratégica y diseño funcional.
Nave industrial en alquiler en Pomar en Badalona
Nave Industrial situada en el Polígono Pomar de Badalona. Situada en una zona empresarial consolidada con excelentes comunicaciones mediante el Metro (Líneas 1 y 2), Autobuses B3, B4, B25, B44 y Cercanías RENFE (R1). Fácil acceso a la C-31 y B-20. Estructura ignifugada. Cubierta sandwich. Amplia zona de almacén y producción en Planta Baja. Dispone de oficinas y despachos luminosos totalmente acondicionados con acceso independiente en la Planta 1ª. Seguridad contraincendios (Bie's, cortafuegos lateral). Suministros dados de alta (luz, agua y fuerza)Puerta TIT y puerta peatonal independiente. Preinstalación de puente grúa. DISPONIBLE EN FEBRERO DE 2026.
Nave industrial en alquiler en Bufalà en Badalona
Nave industrial sita en Badalona, en el polígono industrial Pomar. Nave diáfana. Fachada a autopista. Salida a dos calles. Estructura metálica ignifugada. Cerramientos de hormigón. Cubierta con falso techo aislante y lucernarios. 2 accesos. Puerta tir. Acceso peatonal independiente. Oficinas acondicionadas en planta primera. Baños en las dos plantas. Bies. Cortafuegos. Patio delantero y trasero vallado. Instalaciones en estado de uso. Excelentes comunicaciones con la Autopista C-31, rondas y Ctra. N-II.
Local comercial en alquiler en Bufalà en Badalona
" Local /oficina de 140 metros, ESQUINERO, POLIVALENTE, CON SALIDA DE HUMOS, para cualquier tipo de negocio, ¡HAY QUE VERLO PARA VALORAR SUS POSIBILIDADES! En Av dels Vents, frente CAP SALUT (BUFALA) Badalona. ¡MAGNIFICA ZONA Y MUY BIEN COMUNICADO! - ACTUALMENTE EQUIPADO COMO OFICINA, si quieren montar un salón de belleza, inmobiliaria, u oficina de cualquier otro negocio practicamente lo tienen hecho. "Les ofrecemos un gran local con salida de humos de 140m2, para cualquier tipo de negocio" El Local hace esquina de la Av principal del barrio de Bufala)) Se encuentra rodeado de parques, frente de un CAP salud, lado de paradas de Buses, condis, parque infantil, Panaderia, farmacia, estanco, loteria nacional y muchos más servicios al lado calle de mucho paso tanto peatonal como de coches, mucha visibilidad. ! En la mayor parte del local una altura de 5.5 metros, con posibilidad de hacer altillo además con luz natural por ventanales tanto parte baja como altillo si les hiciera falta más espacio también luz natural. Además actualmente tiene aire y calefacción por conductos, 2 aseos, cuarto limpieza, zona almacen, luces led, alarma y mucho más. Solo se traspasa para negocios a empresas o autonomos, presentando documentacion de solvencia. ¡Local NO VALIDO PARA VIVIENDA. " Si les interesa pueden contactar para quedar.!
Local comercial en alquiler en Artigas - Llefià en Badalona
Gran local comercial de gran formato en Avenida de Alfonso XIII - Máxima visibilidad y múltiples posibilidades Amplio local comercial ubicado en la Avenida de Alfonso XIII, una de las arterias principales de Badalona. El inmueble dispone de entrada a pie de calle, gran escaparate y se distribuye en dos plantas comunicadas mediante escalera interna, ofreciendo una excelente versatilidad para múltiples usos. La planta baja, con acceso directo desde la calle, cuenta con 370 m² totalmente diáfanos, ideal para atención al público, exposición o zona operativa. La primera planta en entresuelo dispone de 327 m², también diáfanos, perfecta para oficinas, almacén, showroom o ampliación de la actividad principal. El local se entrega en bruto, lo que permite diseñar y adaptar el espacio completamente a medida según las necesidades del proyecto. Por sus dimensiones, distribución y ubicación, es ideal para cualquier tipo de actividad comercial, profesional u oficinas. La Avenida de Alfonso XIII es una zona consolidada y muy dinámica, con alta visibilidad y tránsito tanto peatonal como rodado. El entorno combina comercios de proximidad, servicios, restauración y excelentes conexiones con transporte público, lo que garantiza un flujo constante de clientes y una ubicación estratégica para negocios que buscan presencia y accesibilidad en Badalona.
Local comercial en alquiler en Gorg - Pep Ventura en Badalona
LA CASA AGENCY PEP VENTURA Ofrece en alquiler un local comercial en Badalona, zona Pep Ventura, ubicado en la calle Saragossa, en un entorno urbano bien comunicado y con todos los servicios cercanos. El local es un bajo interior y cuenta con una superficie de 89 m², distribuidos en dos ambientes, lo que permite una organización cómoda y funcional del espacio. Dispone de baño, ideal para el desarrollo de actividad profesional o comercial. Espacio amplio y versátil, adecuado para oficina, despacho profesional, consulta, estudio o actividad comercial tranquila. Ubicado en una zona consolidada, cercana a transporte público, comercios y servicios. Ideal para quienes buscan un espacio práctico y bien ubicado en Badalona. -Sobre La Casa Agency- Somos una agencia inmobiliaria con presencia en todo el territorio nacional, con más de 70 oficinas, ofreciendo una cobertura absoluta en las principales ciudades del país. Nuestro trabajo consiste en realizar todos los trámites y gestiones necesarias para la intermediación inmobiliaria. Disponemos de una amplia cartera de inmuebles de todo tipo. Además, ofrecemos servicios inmobiliarios complementarios de alta calidad, como: -Gestión vertical y/u horizontal de propiedades. -Soluciones de financiación para la compra o el alquiler de inmuebles. -Tramitación de seguros y asesoramiento jurídico y fiscal para garantizar una transacción segura y sin complicaciones. -Reformas y diseño de interiores. Desde La Casa Agency sabemos que la compra de una vivienda es una gran responsabilidad y nuestro equipo estará a tu disposición para apoyarte en todo lo que necesites. ¡Te esperamos! *El precio del inmueble no incluye impuestos, gastos notariales y registrales, honorarios de agencia y gestión hipotecaria (si procede).
Local comercial en alquiler en Centre en Badalona
Fantástico Local Céntrico en Badalona, con vado esquinero y con 3 persianas automáticas. Local comercial amplio, diáfano y muy versátil - ideal para negocio visible y funcional Magnífico local comercial con una excelente distribución según plano, pensado para aprovechar al máximo el espacio y ofrecer una imagen profesional a clientes y visitantes. Dispone de una gran zona comercial abierta, ideal para showroom, atención al público, exposición, oficina abierta o cualquier actividad que requiera amplitud, visibilidad y comodidad. Junto a ella encontramos una zona de recepción de clientes, perfectamente diferenciada, que aporta orden y profesionalidad al funcionamiento diario del negocio. El local cuenta además con zona de almacenaje / área técnica y aseo, elementos imprescindibles para el día a día de cualquier actividad. Su forma regular y su amplitud permiten múltiples configuraciones y adaptaciones según necesidad. ✔️ Espacio muy aprovechado ✔️ Distribución funcional y profesional ✔️ Grandes estancias diáfanas ✔️ Zona de atención al público + recepción ✔️ Aseo y zonas auxiliares ✔️ Ideal para oficinas, despacho profesional, academia, showroom, centro médico/estético o cualquier actividad comercial SI DESEA VISITAR EL INMUEBLE NO DUDE EN CONTACTAR CON NOSOTROS PRECISAMOS INMUEBLES EN VENTA Y ALQUILER PARA NUESTROS CLIENTES EXTRANJEROS Y INVERSIONISTAS A NIVEL NACIONAL E ISLAS SI USTED TIENE ALGUNA PROPIEDAD PARA VENDER Y ALQUILAR NO DUDE EN CONTACTAR CON NOSOTROS AL [IMPUESTOS NO INCLUIDOS. Documento sin valor contractual, sujeto a cambios y revisiones por motivos técnicos, constructivos o comerciales. Las discreciones y especificaciones contenidas en este documento podrían variarse, siendo sustituidas por otras de igual o superior calidad. Mobiliario y elementos de decoración no incluidos. La información aquí contenida está sujeta a actualizaciones sin previo aviso, por lo que debe ser confirmada en cada caso]. � El precio indicado no incluye impuestos apl
Local comercial en alquiler en La Salut - Lloreda en Badalona
Gran oportunidad de negocio frente al CC Màgic | Local en dos plantas listo para abrir Pon en marcha tu negocio en este espectacular local comercial de 218 m², ubicado en la calle Don Pelayo, en una de las zonas con mayor proyección comercial de la población, justo frente al Centro Comercial Màgic y a escasos metros del complejo deportivo. El local se distribuye en dos amplias plantas diáfanas, perfectas para adaptarse a cualquier tipo de actividad: Planta baja de 95 m², ideal para atención al público y escaparate Planta altillo de 123 m², perfecta como zona de trabajo, exposición, oficinas o almacén En excelente estado de conservación No necesita reformas - entra y empieza a trabajar desde el primer día Espacios amplios, modernos y muy versátiles Ideal para comercio, oficinas, gimnasio, academia, clínica, showroom o franquicia Su distribución abierta permite diseñar el espacio a medida, optimizando cada metro cuadrado y adaptándolo fácilmente a tu proyecto empresarial. La ubicación es uno de sus grandes valores añadidos: zona muy transitada, rodeada de servicios, comercios y equipamientos, con excelente visibilidad y fácil acceso. Además, cuenta con rápida conexión a la C-31 en todas direcciones, facilitando la llegada de clientes y proveedores. Un local con potencial, ubicación y visibilidad para hacer crecer tu negocio. No dejes pasar esta oportunidad. Contacta y ven a visitarlo.
Piso en venta en San Roc - El Remei en Badalona
LA CASA AGENCY PRESENTA: MAGNÍFICO PISO TODO EXTERIOR, MUY LUMINOSO Y CON ACABADOS DE CALIDAD Este impresionante piso, situado en un quinto piso sin ascensor, destaca por su abundante luz natural que inunda todos sus espacios gracias a su diseño completamente exterior. La vivienda cuenta con 3 habitaciones amplias y luminosas, ideales para disfrutar de comodidad y tranquilidad. La cocina independiente, completamente equipada con fuegos de alta calidad, cuenta con salida directa a la galería, lo que la convierte en un espacio práctico y funcional. El salón-comedor es un lugar perfecto para relajarte, con una generosa cantidad de luz que crea un ambiente acogedor durante todo el día. El baño, con acabados de calidad, dispone de una bañera para ofrecerte el máximo confort. Características adicionales que marcan la diferencia: Carpintería de aluminio en todas las ventanas, garantizando una excelente eficiencia energética y aislamiento térmico y acústico. Suelos de cerámica de alta calidad, fáciles de mantener y con un diseño elegante que aporta modernidad al hogar. Excelente ubicación: A tan solo 3 minutos de transporte público (Metro y Tranvía Sant Roc) y líneas de autobuses, lo que te conecta rápidamente con el resto de la ciudad. Además, tendrás todo lo que necesitas a tu alrededor: colegios, supermercados, tiendas y una amplia oferta de servicios. Con fácil acceso a la autopista, la conexión con otras zonas de la ciudad es rápida y cómoda, lo que te permitirá disfrutar de la vida urbana sin renunciar a la tranquilidad de tu hogar. ¡No pierdas la oportunidad de visitar este luminoso y cómodo piso, ideal para quienes buscan calidad, ubicación y confort! -Sobre La Casa Agency- Somos una agencia inmobiliaria con presencia en todo el territorio nacional, con más de 70 oficinas, ofreciendo una cobertura absoluta en las principales ciudades del país. Nuestro trabajo consiste en realizar todos los trámites y gestiones necesarias para la intermediación inmobiliar
Estudio en venta en Artigas - Llefià en Badalona
Piso en Badalona, Barcelona, perfecto para parejas. El inmueble consta de 65 m² construidos distribuidos en salón-comedor, cocina. Localizado en el corazón de Badalona, en sus alrededores encontramos el centro sanitario CAP El Fondo, la Escola Ítaca, supermercados, bancos, bibliotecas, farmacias, oficinas de correos, centros deportivos, varias paradas de autobús y la estación de metro Llefià. Cuenta con fácil acceso a C-31. Alquilado (L 24/2015-Alquiler social obligatorio). Actualmente, no es posible realizar visitas al interior del inmueble. Las fotografías pueden no reflejar el estado actual de la propiedad. Renta actual: 126.58€/mes. Fecha de fin de contrato: 05/2031.

Estudio en venta en Artigas - Llefià en Badalona
Oportunidad de inversión: inmueble alquilado sin estar al corriente de pago. Fecha de fin de contrato: Vencido. Piso en Badalona, Barcelona, perfecto para parejas. La vivienda dispone de una superficie de 60 m² construidos distribuidos en salón-comedor, cocina. Se encuentra en el centro de Badalona, en sus alrededores encontramos el Fundació Hospital de l'Esperit Sant, la Escola Ítaca, supermercados, bancos, bibliotecas, farmacias, oficinas de correos, centros deportivos, varias paradas de autobús y la estación de metro La Salut. Cuenta con fácil acceso a C-31. Consulte con nuestro Agente Comercial la información adicional sobre el inmueble y las condiciones especiales de compraventa. Imposibilidad de visita interior. Las fotografías pueden no corresponderse con el estado actual del inmueble.
Piso en venta en Riera Alta - Llatí en Santa Coloma de Gramanet
Piso en Santa Coloma de Gramenet, Barcelona, perfecto para familias. El inmueble cuenta con una superficie de 88 m² construidos distribuidos en tres habitaciones, salón-comedor, cocina y un aseo. Está situado en el centro de Santa Coloma de Gramenet, en sus alrededores encontramos el centro sanitario CAP El Fondo, la Escola Pública Joan Coret, supermercados, bancos, bibliotecas, farmacias, oficinas de correos, centros deportivos, varias paradas de autobús y la estación de metro Fondo. Cuenta con fácil acceso a Ronda de Dalt. Oportunidad de inversión: inmueble ocupado. Consulte con nuestro Agente Comercial la información adicional sobre el inmueble y las condiciones especiales de compraventa. El precio del inmueble ha sido fijado en atención a que el inmueble se adquiera por el comprador en estado de ocupado por lo que no aplicaría dicho precio si en el momento de formalización de la escritura pública el inmueble se encontrara libre de ocupantes. Imposibilidad de visita interior. Las fotografías pueden no corresponderse con el estado actual del inmueble.
Local comercial en alquiler en La Salut - Lloreda en Badalona
Local de 45 m2 ubicado en Rambla Sant Joan en Badalona. Superficie de 45 m2 más altillo. Escaparate de 8 m2. Dos cuartos de baño. Instalación eléctrica actualizada. Persianas metálicas manuales. Ideal para comercios y oficinas. Ubicación con paso alto de tráfico y personas. Disponibilidad inmediata.
Local comercial en alquiler en Montigalà -Sant Crist en Badalona
Local de 50 m² construidos, situado a pie de calle, con muy buena visibilidad y fácil acceso. El espacio se encuentra en buen estado de conservación y dispone de aire acondicionado. Gracias a su distribución y tamaño, es ideal para múltiples usos: pequeño comercio, oficina, despacho profesional, estudio, consulta o negocio de servicios. La ubicación es uno de sus grandes puntos fuertes, en una zona con paso de peatones, rodeada de viviendas y con comercios y servicios en los alrededores, lo que asegura movimiento y potencial clientela. Además, cuenta con buena conexión con transporte público y accesos rápidos a las principales vías de Badalona, lo que facilita tanto la llegada de clientes como el día a día del negocio. Una oportunidad perfecta para emprendedores o inversores que buscan un local versátil, bien ubicado y en buen estado.
Piso en venta en La Salut - Lloreda en Badalona
Piso en Badalona, Barcelona, idóneo para familias. La vivienda cuenta con una superficie de 64 m² construidos distribuidos en tres habitaciones, salón-comedor, cocina y un aseo. Localizado en el corazón de Badalona, en sus alrededores encontramos el centro sanitario CAP El Fondo, la Escola Joan Miró, supermercados, bancos, bibliotecas, farmacias, oficinas de correos, centros deportivos, varias paradas de autobús y la estación de metro Fondo. Cuenta con fácil acceso a C-31. Oportunidad de inversión: inmueble ocupado. Consulte con nuestro Agente Comercial la información adicional sobre el inmueble y las condiciones especiales de compraventa. El precio del inmueble ha sido fijado en atención a que el inmueble se adquiera por el comprador en estado de ocupado por lo que no aplicaría dicho precio si en el momento de formalización de la escritura pública el inmueble se encontrara libre de ocupantes. Imposibilidad de visita interior. Las fotografías pueden no corresponderse con el estado actual del inmueble.
Piso en venta en Artigas - Llefià en Badalona
Cómodo piso en Badalona, Barcelona, ideal para parejas. El inmueble dispone de una superficie de 50 m² construidos distribuidos en dos habitaciones, salón-comedor, cocina y un aseo. Se encuentra en el centro de Badalona, en sus alrededores encontramos el Ambulatori CAP de Llefià, la Escola Ítaca, supermercados, bancos, bibliotecas, farmacias, oficinas de correos, centros deportivos, varias paradas de autobús y la estación de metro Artigues | Sant Adrià. Cuenta con fácil acceso a C-31. Oportunidad de inversión: inmueble ocupado. Consulte con nuestro Agente Comercial la información adicional sobre el inmueble y las condiciones especiales de compraventa. El precio del inmueble ha sido fijado en atención a que el inmueble se adquiera por el comprador en estado de ocupado por lo que no aplicaría dicho precio si en el momento de formalización de la escritura pública el inmueble se encontrara libre de ocupantes. Imposibilidad de visita interior. Las fotografías pueden no corresponderse con el estado actual del inmueble.
Local comercial en alquiler en Montigalà -Sant Crist en Badalona
Local comercial a pie de calle de 45 m2, con distribución tipo loft y altillo, ideal para despacho profesional, consulta, estudio, centro de estética u oficina. La planta baja cuenta con una amplia zona diáfana de gran altura, cocina tipo office y baño completo con plato de ducha. El altillo aporta un espacio extra muy versátil, perfecto como despacho independiente, zona de trabajo o almacén, e incluye trastero/zona técnica. El local se encuentra en buen estado, con suelos de parquet, aire acondicionado y listo para entrar sin necesidad de reformas. Situado en una zona tranquila, frente a amplias zonas verdes, con abundante aparcamiento gratuito en los alrededores y entrada independiente a pie de calle, lo que facilita una cómoda atención al público. Muy buena accesibilidad tanto a pie como en vehículo. Una opción funcional y acogedora para desarrollar tu actividad profesional. *El mobiliario y decoración mostrados en las fotos pueden ser propuestas de homestaging y no están incluidos en el precio. Condiciones: Dos meses de Fianza Garantias adicionales según estudio solvencia. Al precio general del alquiler no incluye los impuestos Gastos honorarios de la agencia.
Casa pareada en venta en La Salut - Lloreda en Badalona
Casa en Badalona, Barcelona, perfecto para parejas. La vivienda dispone de una superficie de 86 m² construidos distribuidos en dos habitaciones, salón-comedor, cocina y dos aseos. Localizada en el corazón de Badalona, en sus alrededores encontramos el centro sanitario CAP El Fondo, la escuela CEIP Wagner, supermercados, bancos, bibliotecas, farmacias, oficinas de correos, centros deportivos, varias paradas de autobús y la estación de metro La Salut. Cuenta con fácil acceso a C-31. Oportunidad de inversión: inmueble ocupado. Consulte con nuestro Agente Comercial la información adicional sobre el inmueble y las condiciones especiales de compraventa. El precio del inmueble ha sido fijado en atención a que el inmueble se adquiera por el comprador en estado de ocupado por lo que no aplicaría dicho precio si en el momento de formalización de la escritura pública el inmueble se encontrara libre de ocupantes. Imposibilidad de visita interior. Las fotografías pueden no corresponderse con el estado actual del inmueble.
Piso en venta en Artigas - Llefià en Badalona
Cómodo piso en Badalona, Barcelona, ideal para familias. El inmueble consta de 55 m² construidos distribuidos en tres habitaciones, salón-comedor, cocina y un aseo. Localizado en el corazón de Badalona, en sus alrededores encontramos el centro sanitario CAP El Fondo, la Escola Ítaca, supermercados, bancos, bibliotecas, farmacias, oficinas de correos, centros deportivos, varias paradas de autobús y la estación de metro Llefià. Cuenta con fácil acceso a C-31. Oportunidad de inversión: inmueble ocupado. Consulte con nuestro Agente Comercial la información adicional sobre el inmueble y las condiciones especiales de compraventa. El precio del inmueble ha sido fijado en atención a que el inmueble se adquiera por el comprador en estado de ocupado por lo que no aplicaría dicho precio si en el momento de formalización de la escritura pública el inmueble se encontrara libre de ocupantes. Imposibilidad de visita interior. Las fotografías pueden no corresponderse con el estado actual del inmueble.
Piso en venta en La Salut - Lloreda en Badalona
Oportunidad de inversión: inmueble alquilado. Fecha de fin de contrato: Vencido. Piso en Badalona, Barcelona, ideal para familias. La vivienda consta de 71 m² construidos distribuidos en tres habitaciones, salón-comedor, cocina y un aseo. Está ubicado en el corazón de Badalona, en sus alrededores encontramos el centro sanitario CAP El Fondo, la Escola Joan Miró, supermercados, bancos, bibliotecas, farmacias, oficinas de correos, centros deportivos, varias paradas de autobús y la estación de metro Fondo. Cuenta con fácil acceso a C-31. Consulte con nuestro Agente Comercial la información adicional sobre el inmueble y las condiciones especiales de compraventa. Imposibilidad de visita interior. Las fotografías pueden no corresponderse con el estado actual del inmueble.
Local comercial en alquiler en Artigas - Llefià en Badalona
TECNOCASA DESARROLLO SANT MORI S. L-. Presenta en exclusiva, alquiler local comercial 33m2 Local comercial de 33 m², situado a pie de calle, con amplia fachada acristalada que aporta gran visibilidad y entrada de luz natural. El acceso se realiza mediante puerta de cristal, protegida por persiana metálica. El espacio es diáfano, con una distribución rectangular que permite múltiples posibilidades de uso. Dispone de suelo cerámico y paredes revestidas, ofreciendo una base funcional para adaptar según las necesidades del negocio. En la parte posterior cuenta con una estancia independiente, ideal como almacén o zona auxiliar. El local se encuentra para actualizar o reformar, lo que permite personalizarlo completamente según el tipo de actividad. Es adecuado para pequeño comercio, despacho profesional, oficina o centro de belleza.
Local comercial en venta en Bufalà en Badalona
FABRA CONSULTORS les presenta excelente oportunidad de local en venta en el barrio de Bufalà, Badalona (calle Doctor Robert). Situado a pie de calle, con vado y entrada amplia para furgonetas, el inmueble cuenta con buena accesibilidad y, además, se encuentra cercano a autopistas y autovías, paradas de autobuses y varios comercios. Consta de 238m2 distribuidos, en: -Zona principal de aproximadamente 200 m2 diáfanos, perfecto para establecer cualquier tipo de negocio. - Oficina o despacho. - Zona para el descanso. Dispone de un área habilitada práctica y cómoda con una pequeña sala de estar, habitación y un baño completo con plato de ducha. Todo climatizado (aire acondicionado). Dispone, además, de salida de humo industrial. Si necesita más información o concertar una visita, no dude en contactar con nuestros asesores.
Piso en venta en La Salut - Lloreda en Badalona
Piso en Badalona, Barcelona, perfecto para familias. El inmueble consta de 85 m² construidos distribuidos en tres habitaciones, salón-comedor, cocina y un aseo. Localizado en el centro de Badalona, en sus alrededores encontramos el centro sanitario CAP El Fondo, la escuela CEIP Wagner, supermercados, bancos, bibliotecas, farmacias, oficinas de correos, centros deportivos, varias paradas de autobús y la estación de metro La Salut. Cuenta con fácil acceso a C-31.
Local comercial en venta en La Salut - Lloreda en Badalona
¡Miles de locales, oficinas y naves con descuento! Local exterior en planta baja de 223.24 m². Persiana metálica y carpintería de aluminio lacado en blanco. Dispone de un aseo. Cerca Metro La Salut. Ideal para oficina o almacén.
Piso en venta en La Salut - Lloreda en Badalona
Oportunidad de inversión: inmueble alquilado. Fecha de fin de contrato: Vencido. Piso en Badalona, Barcelona, perfecto para familias. El inmueble dispone de una superficie de 75 m² construidos distribuidos en tres habitaciones, salón-comedor, cocina y un aseo. Está ubicado en el corazón de Badalona, en sus alrededores encontramos el centro sanitario CAP El Fondo, la Escola Joan Miró, supermercados, bancos, bibliotecas, farmacias, oficinas de correos, centros deportivos, varias paradas de autobús y la estación de metro Fondo. Cuenta con fácil acceso a C-31. Consulte con nuestro Agente Comercial la información adicional sobre el inmueble y las condiciones especiales de compraventa. Imposibilidad de visita interior. Las fotografías pueden no corresponderse con el estado actual del inmueble.
Nave industrial en alquiler en Centre en Badalona
Nave disponible en alquiler en el polígono industrial Les Guixeres de Badalona. Con una superfície total de 543m2 de los cuales 140m2 son altillo se encuentran totalmente acondicionados como oficina. Instalaciones hechas y suminitro de luz dados de alta. Altura libre de más de 7 metros. Dispone de un patio delantero privado destinado tanto para aparcamiento como para zona de carga y descarga. Puertas tipo T. I. R, con aceso rodado.
Estudio en venta en La Salut - Lloreda en Badalona
Piso en Badalona, Barcelona, idóneo para parejas. La vivienda dispone de una superficie de 77 m² construidos distribuidos en salón-comedor, cocina. Se encuentra en el centro de Badalona, en sus alrededores encontramos el Ambulatori CAP de Llefià, la Escola D'Oficis Juper, supermercados, bancos, bibliotecas, farmacias, oficinas de correos, centros deportivos, varias paradas de autobús y la estación de metro La Salut. Cuenta con fácil acceso a C-31. Oportunidad de inversión: inmueble procedente de ejecución hipotecaria sin posesión. Consulte con nuestro Agente Comercial la información adicional sobre el inmueble y las condiciones especiales de compraventa. El precio del inmueble ha sido fijado en atención a que el inmueble se adquiera por el comprador en estado de ocupado por lo que no aplicaría dicho precio si en el momento de formalización de la escritura pública el inmueble se encontrara libre de ocupantes. Imposibilidad de visita interior. Las fotografías pueden no corresponderse con el estado actual del inmueble.
Local comercial en alquiler en Montigalà -Sant Crist en Badalona
Oportunidad única de alquilar un amplio local comercial a pie de calle, disponible por solo 2700€ al mes más IVA e IRPF. Este espacio cuenta con tres plantas que ofrecen una gran versatilidad para distintos tipos de negocios. La primera planta tiene una superficie generosa de 115 m2, ideal para exhibiciones o ventas directas. En la segunda planta se disponen otros 225 m2 perfectos para oficinas o almacenamiento adicional. Además, el inmueble incluye un gran altillo que maximiza el uso del espacio y proporciona área extra según las necesidades comerciales. El local está equipado con montacargas que permiten acceder cómodamente hasta la última planta y facilitar así cualquier tipo de operación logística necesaria en su actividad diaria. Situado estratégicamente en Montigala, muy cerca del Ikea, este local goza no sólo visibilidad sino también fácil acceso a clientes potenciales gracias al flujo constante tanto peatonal como vehicular en esta zona bien comunicada. Adicionalmente tendrás fácil acceso gracias a varias paradas de autobús ubicadas a solo cinco minutos caminando; junto con diversas opciones gastronómicas cercanas que atraerán tanto clientes locales como visitantes interesados.
Local comercial en alquiler en Gorg - Pep Ventura en Badalona
Este local comercial en alquiler se encuentra en la zona de Progrés-Pep Ventura, en Badalona. Con una superficie total de 124 m², el local cuenta con 100 m² de superficie útil distribuidos en una planta baja y sótano. Además, dispone de 1 aseo reformado, agua, aire acondicionado (frío y calor), suelos de parquet y luz natural . Su estado de conservación es bueno y es exterior, lo que garantiza una buena visibilidad para tu negocio. Las puertas de acceso son de aluminio y la persiana es de ballesta. Un lugar ideal para establecer tu peluquería u oficina. Contáctanos para más información y ven a visitarlo. En la actualidad el negocio sigue en funcionamiento
Local comercial en alquiler en Port en Badalona
¡Descubre este increíble local en alquiler que combina espacio, luminosidad y ubicación! Situado a pie de calle, este local de dos plantas ofrece 81 m² construidos, perfectos para establecer tu oficina o negocio. Las dos amplias estancias permiten una distribución versátil, adaptándose a tus necesidades. La gran entrada de luz solar inunda el espacio de energía positiva, creando un ambiente acogedor y productivo. Equipado con aire acondicionado y calefacción, este local garantiza el confort durante todo el año. Además, cuenta con un baño que añade funcionalidad a las instalaciones. Su diseño moderno y accesible lo convierte en una opción ideal para emprendedores que buscan un lugar estratégico en la ciudad. No pierdas la oportunidad de hacer crecer tu proyecto en este espacio único. ¡Contáctanos para más información y ven a visitarlo!
Piso en venta en Bufalà en Badalona
PONEMOS EN VENTA ESTE INMUEBLEOKUPADO, SITUADO EN LA PLAÇA DE LES CANÀRIES , BADALONA, BARCELONA No se puede visitar, no se puede tasar ni se puede hipotecar. Se tiene que comprar pagando al contado y el comprador asume la tarea de la desocupación. Maravilloso piso en Badalona, Barcelona, perfecto para familias. La vivienda consta de 71 m² distribuidos en 3 habitaciones, salón-comedor, cocina equipada con horno además de 1 baño completo. La vivienda tiene suelos de parquet. Ubicado en la 2a planta del edificio, sin ascensor. Localizado en el centro de Badalona, en sus alrededores encontramos la Escola Arrels-Blanquerna, supermercados, bancos, bibliotecas, farmacias, oficinas de correos y centros deportivos. Con fácil acceso a C-31.
Trastero en alquiler en San Roc - El Remei en Badalona
¡Descubre nuestra increíble oferta en Bluespace! Alquila un trastero de 3 m2 en Badalona (Barcelona), a un precio irresistible. Disfruta y aprovecha la comodidad de nuestros elementos de transporte interno gratuitos. Además, nuestros clientes disponen de parking gratuito. Si necesitas trasladar tus objetos o pertenencias, contamos con un servicio de mudanza profesional disponible (coste adicional). En Bluespace, tenemos una amplia variedad de medidas de trasteros y almacenes para adaptarnos a tus necesidades específicas. También ofrecemos cajas ecológicas y material de embalaje disponible en nuestras instalaciones. Nuestras instalaciones están equipadas con un sistema de video vigilancia CCTV las 24 horas del día. Facilitamos el proceso de carga y descarga con nuestra zona especializada, y nuestro amable personal en oficinas está siempre dispuesto a brindarte atención y asesoramiento. ¡No pierdas esta oportunidad única! Llámanos al de lunes a domingo, y asegura tu espacio de almacenamiento. Bluespace es tu mejor opción de almacenamiento y mudanzas. Confía en nuestra experiencia y calidad. ¡Contáctanos hoy mismo y descubre por qué somos líderes en el sector! *Iva, seguro y fianza no incluidos en la promoción.
Trastero en alquiler en San Roc - El Remei en Badalona
¡Descubre nuestra increíble oferta en Bluespace! Alquila un trastero de 20 m2 en Badalona Sur (Barcelona), a un precio irresistible. Disfruta y aprovecha la comodidad de nuestros elementos de transporte interno gratuitos. Además, nuestros clientes disponen de parking gratuito. Si necesitas asistencia adicional, contamos con un servicio de mudanza profesional disponible por un costo adicional. En Bluespace, la seguridad es nuestra prioridad. Nuestras instalaciones están equipadas con un sistema de video vigilancia CCTV las 24 horas del día. Si requieres acceso las 24 horas, todos los días del año, también ofrecemos esa opción con un costo adicional. Facilitamos el proceso de carga y descarga con nuestra zona especializada. Y nuestro amable personal en oficinas está siempre dispuesto a brindarte atención y asesoramiento. En Bluespace, tenemos una amplia variedad de medidas de trasteros y almacenes para adaptarnos a tus necesidades específicas. También ofrecemos cajas ecológicas y material de embalaje disponible en nuestras instalaciones. ¡No pierdas esta oportunidad única! Llámanos al de lunes a domingo, y asegura tu espacio de almacenamiento. Bluespace es tu mejor opción de almacenamiento y mudanzas. Confía en nuestra experiencia y calidad. ¡Contáctanos hoy mismo y descubre por qué somos líderes en el sector! *Seguro y fianza no incluidos en la promoción.
Piso en venta en Artigas - Llefià en Badalona
PONEMOS EN VENTA ESTE INMUEBLE OCUPADO, SITUADO EN LA AVDA ALFONS XIII, BADALONA, BARCELONA No se puede visitar, no se puede tasar ni se puede hipotecar. Se tiene que comprar pagando al contado y el comprador asume la tarea de la desocupación. Piso en Badalona, Barcelona, idóneo para familias. El inmueble cuenta con una superficie de 61 m² construidos distribuidos en tres habitaciones, salón-comedor, cocina y un aseo. Localizado en el centro de Badalona, en sus alrededores encontramos el Ambulatori CAP de Llefià, la Escuela de Oficios Juper, supermercados, bancos, bibliotecas, farmacias, oficinas de correos, centros deportivos y la estación de metro Sant Roc. Cuenta con fácil acceso a C-31.
Piso en venta en La Salut - Lloreda en Badalona
INMUEBLE OKUPADO, SITUADO EN LA CALLE TORÍ, BADALONA, BARCELONA No se puede visitar, no se puede tasar ni se puede hipotecar. Se tiene que comprar pagando al contado y el comprador asume la tarea de la desocupación. Piso en Badalona, Barcelona, idóneo para familias. El inmueble dispone de una superficie de 82 m² construidos distribuidos en 3 habitaciones, salón-comedor, cocina y 1 aseo. Localizado en el centro de Badalona, en sus alrededores encontramos el Ambulatori CAP de Llefià, la Escola D'Oficis Juper, supermercados, bancos, bibliotecas, farmacias, oficinas de correos, centros deportivos, varias paradas de autobús y la estación de metro La Salut. Cuenta con fácil acceso a C-31.
Piso en venta en La Salut - Lloreda en Badalona
PONEMOS EN VENTA ESTE INMUEBLE OKUPADO, SITUADO EN LA CALLE CALDERON DE LA BARCA , BADALONA, BARCELONA No se puede visitar, no se puede tasar ni se puede hipotecar. Se tiene que comprar pagando al contado y el comprador asume la tarea de la desocupación. Piso en Badalona, Barcelona, idóneo para familias. El inmueble dispone de una superficie de 74 m² construidos distribuidos en tres habitaciones, salón-comedor, cocina y un aseo. Se encuentra en el centro de Badalona, en sus alrededores encontramos el centro sanitario CAP El Fondo, la escuela CEIP Wagner, supermercados, bancos, bibliotecas, farmacias, oficinas de correos, centros deportivos, varias paradas de autobús y la estación de metro La Salut. Cuenta con fácil acceso a C-31.
Trastero en alquiler en Sant Adrià de Besos
¡Descubre nuestra increíble oferta en Bluespace! Alquila un trastero de 1 m2 Sant Adrià del Besos (Barcelona), a un precio irresistible. Disfruta y aprovecha la comodidad de nuestros elementos de transporte interno gratuitos. Además, nuestros clientes disponen de parking gratuito. Si necesitas asistencia adicional, contamos con un servicio de mudanza profesional disponible por un costo adicional. En Bluespace, la seguridad es nuestra prioridad. Nuestras instalaciones están equipadas con un sistema de video vigilancia CCTV las 24 horas del día. Si requieres acceso las 24 horas, todos los días del año, también ofrecemos esa opción con un costo adicional. Facilitamos el proceso de carga y descarga con nuestra zona especializada. Y nuestro amable personal en oficinas está siempre dispuesto a brindarte atención y asesoramiento. En Bluespace, tenemos una amplia variedad de medidas de trasteros y almacenes para adaptarnos a tus necesidades específicas. También ofrecemos cajas ecológicas y material de embalaje disponible en nuestras instalaciones. ¡No pierdas esta oportunidad única! Llámanos al de lunes a domingo, y asegura tu espacio de almacenamiento. Bluespace es tu mejor opción de almacenamiento y mudanzas. Confía en nuestra experiencia y calidad. ¡Contáctanos hoy mismo y descubre por qué somos líderes en el sector! *Seguro y fianza no incluidos en la promoción.
Piso en venta en San Roc - El Remei en Badalona
PONEMOS EN VENTA ESTE INMUEBLE KUPADO, SITUADO EN LA CALLE JEREZ DE LA FRONTERA , BADALONA, BARCELONA No se puede visitar, no se puede tasar ni se puede hipotecar. Se tiene que comprar pagando al contado y el comprador asume la tarea de la desocupación. Piso en Badalona, Barcelona, idóneo para familias. La vivienda cuenta con una superficie de 69 m² construidos distribuidos en tres habitaciones, salón-comedor, cocina y un aseo. Localizado en el corazón de Badalona, en sus alrededores encontramos el Ambulatori CAP de Llefià, la Escola Ítaca, supermercados, bancos, bibliotecas, farmacias, oficinas de correos, centros deportivos y la estación de metro Sant Roc. Cuenta con fácil acceso a C-31.





































































































































































































































































































































































































































































































































































































































































































































































































































































































































































































































































