Filtros
Logo

Casas y pisos en venta y alquiler O Grove

Novedades

Vende lo que ya no usas y gana un dinero extra.
  • Hotel en venta en Grove (O)
  • Hotel en venta en Grove (O)
  • Hotel en venta en Grove (O)
  • Hotel en venta en Grove (O)
  • Hotel en venta en Grove (O)
  • Hotel en venta en Grove (O)
  • Hotel en venta en Grove (O)
  • Hotel en venta en Grove (O)
  • Hotel en venta en Grove (O)
  • Hotel en venta en Grove (O)
  • Hotel en venta en Grove (O)
  • Hotel en venta en Grove (O)
  • Hotel en venta en Grove (O)
  • Hotel en venta en Grove (O)
  • 1 / 14
380.000 €

Hotel en venta en Grove (O)

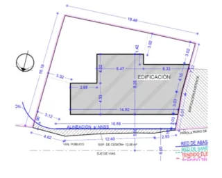
EDIFICIO CON 3 VIVIENDAS, GARAJE Y ALTO POTENCIAL DE RENTABILIDAD EN O Grove Oportunidad de inversión en pleno centro de O Grove, a pocos minutos del mar y rodeado de todos los servicios, en una de las zonas más demandadas de las Rías Baixas. El inmueble cuenta con 358 m² construidos sobre una parcela de 312 m², distribuido en tres plantas con varias unidades independientes, lo que permite GENERAR INGRESOS DESDE EL PRIMER MOMENTO y aumentar su rentabilidad a futuro. Distribución: Planta baja: Vivienda completa con cocina, salón, tres habitaciones, baño y calefacción. Además, dispone de GARAJE, zona de lavado, aseo y acceso a JARDÍN PRIVADO con trastero, aportando espacio exterior y funcionalidad. Primera planta (ACTUALMENTE ALQUILADA): Apartamento A: amplia cocina-comedor, tres habitaciones, baño, trastero y calefacción eléctrica. Apartamento B: cocina americana con salón, dos habitaciones y un baño. Planta ático: Espacio diáfano sin acondicionar con gran potencial para desarrollar una nueva vivienda. Destaca por sus VISTAS ABIERTAS hacia A Toxa, Cambados y Illa de Arousa, un valor diferencial. Características clave: INGRESOS ACTUALES DEMOSTRABLES Posibilidad de ampliación y revalorización Reformado en 2005 Se vende amueblado Zona con ALTA DEMANDA TURÍSTICA Y RESIDENCIAL Ubicado en una zona estratégica, cerca de playas, puerto y restauración, este inmueble es ideal tanto para INVERSIÓN como para uso mixto. UNA PROPIEDAD VERSÁTIL, CON RENTABILIDAD DESDE EL INICIO Y GRAN POTENCIAL DE CRECIMIENTO. Loreto Noriega. VIPKEL CONSULTING SERVICES - ÚNICA agencia Gallega y Española premiada por: • Premio a la Excelencia. CEX. • Premio Construcción y Vivienda. La Razón. • Premio Innovación Servicios Inmobiliarios. El Suplemento. • Récord de Ventas nueva empresa en Calidad y Crecimiento a nivel europeo. The European Award 2022. • Premio 2024 a mejor modelo de franquicia innovadora Resultados y trabajo continuo es lo que nos diferencia. Trabajamos un modelo c

  • Chalet en venta en Grove (O)
  • Chalet en venta en Grove (O)
  • Chalet en venta en Grove (O)
  • Chalet en venta en Grove (O)
  • Chalet en venta en Grove (O)
  • Chalet en venta en Grove (O)
  • Chalet en venta en Grove (O)
  • Chalet en venta en Grove (O)
  • Chalet en venta en Grove (O)
  • Chalet en venta en Grove (O)
  • Chalet en venta en Grove (O)
  • 1 / 11
175.000 €

Chalet en venta en Grove (O)

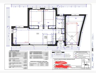
**Casa Independiente en Venta en el Corazón del Pueblo** Descubre esta encantadora casa/chalet independiente, ubicada en una zona central del pueblo, a pocos pasos del puerto. Con 135 m² construidos y 127 m² útiles, este hogar ofrece un espacio ideal para disfrutar de la vida en comunidad. La propiedad cuenta con 3 acogedoras habitaciones y 2 baños, perfectos para familias o para quienes buscan un lugar cómodo y funcional. El salón es amplio y luminoso, ideal para relajarse después de un largo día. La cocina independiente te permitirá preparar deliciosas comidas mientras disfrutas de la compañía de tus seres queridos. Además, cuenta con 2 terrazas donde podrás disfrutar del aire libre y organizar reuniones familiares o con amigos. La fachada en piedra le da un toque rústico y atractivo, mientras que la pequeña parcela de 8 m² es perfecta para instalar un asador y disfrutar de agradables barbacoas en verano. Aunque la casa es de segunda mano y necesita algunas reformas, su potencial es innegable. Con armarios empotrados para maximizar el espacio y calefacción mediante bomba de frío/calor, esta propiedad se adapta a las necesidades modernas. Construida en 1960, tiene una orientación norte que garantiza una buena iluminación natural durante todo el día. No pierdas la oportunidad de hacer de esta casa tu nuevo hogar. ¡Contáctanos para más información!

Buy or sell in Wallapop
¿Sin usar? Dale una segunda vida. Gana dinero y haz del mundo un lugar mejor. Encuentra las mejores ofertas mientras ahorras un promedio del 44% en comparación con comprar nuevo. ¡Disfruta de Wallapop!Cómo comprar y vender con Wallapop
Help Protection Policy
Pagos segurosPaga a través de PayPal, Apple Pay o nuestro propio sistema de pago. Ya sea que estés comprando o vendiendo, tus datos siempre están potegidos. Usa Wallapop con tranquilidad.Cómo protegemos tus transacciones
Wallapop Shipping
Enviar es fácilEntrega a domicilio, puntos de recogida, taquillas... Elige una opción de envío y sigue tu paquete en tiempo real. ¿Necesitas ayuda? Obtén asistencia personalizada.¿Cómo funciona Wallapop Envíos?