Locales de bancos Terrassa
Novedades
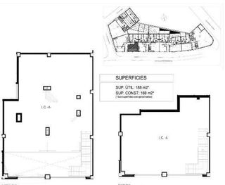
Local comercial 143mt2
Local en zona muy comercial al lado de supermercado Maximer de Periodista Grané en Terrassa cristales blindados (Antes era un banco) en 9metros de escaparate 1 lavabo son 2 locales unidos que se pueden dividir y montar 2 negocios.No tiene salida de humo .

Local/Oficina en venta
Se traspasa Bar Rste en terrassa de 110 m 2 . El local se encuentra en zona de mucho paso de viandantes junto a diferentes comercios , bancos y oficinas . El local dispone de permiso para terraza . Zona inmejorable . Se informa que el bar está libre de autorizaciones de máquinas de juego Alquiler 1550 € Negocio gestionado por Ocasiona Tel 675207122
Local comercial en venta en Barri del Centre en Terrassa
FANTÁSTICO EDIFICIO / RESTAURANTE DEL 2022 DE 3 PLANTAS CON ASCENSOR EN EL CENTRO- JUNTO AL TEATRO PRINCIPAL EN PLENO CENTRO DE TERRASSA. Edificio de 3 plantas, actualmente 2 de sus plantas, están adecuadas para actividad de hostelería, recién reformado (menos de 2 años) por lo que esta prácticamente nuevo, JUNTO AL TEATRO PRINCIPAL Y TAPIÑAS DE CARNE. Cuenta con unos 300 metros. Es un edificio/local de tres plantas, con ASCENSOR, adaptado a personas con movilidad reducida, cuenta con 100 m2 en cada planta, actualmente la planta baja y planta primera como restaurante con capacidad para 90 personas, decoración espectacular y muy singular inspirada en el modernismo Catalán. Planta segunda, almacén o vivienda si se quisiese construir, todas las plantas son independientes. Precio: 395.000€ Un buen hogar es aquel donde te sientes cómodo, si quieres iniciar una nueva vida, empieza por imaginarte tu futuro en esta vivienda. Por eso, cuando buscas el piso de tu vida, confía en profesionales con más de 20 años de experiencia. Somos la inmobiliaria en la que confían las familias de la zona para adquirir una vivienda. Tenemos a tu disposición un Asesor Financiero en crédito hipotecario acreditado por el Banco de España, ofreciendo un financiamiento a medida con las mejores condiciones que podrás encontrar en el mercado. Asegúrate de no arrepentirte de tus decisiones inmobiliarias. Búscanos. Te apoyaremos en lo que haga falta. Con nosotros tendrás siempre una buena decisión inmobiliaria garantizada. Si lo prefiere puede pasar por nuestras oficinas de la calle Gutenberg número 26 de Terrassa o bien llamar al / y uno de nuestros asesores le atenderá sin compromiso. ¡Queremos estar en su presente y futuro!
Local comercial en venta en Barri del Centre en Terrassa
ESPECIAL INVERSORES, MÁS RENTABILIDAD QUE UN PISO! LOCAL ALQUILADO-BAR-CAFETERÍA EN EL CENTRO. Se vende Bar-Cafetería, con salida de humos, ideal para inversores muy buena rentabilidad en el centro de Terrassa zona Vapor Gran, de 60 m2, en pleno funcionamiento, actualmente alquilado a 700 € de Base, delante de la Policía. El local esta insonorizado totalmente, aire acondicionado y con todos los permisos en regla y permisos de terraza. Precio: 124.800€ INFORMACIÓN IMPORTANTE PARA EL COMPRADOR AHORRO 10% IVA. EN LA COMPRA VENTA. En la venta del local renunciando a la exención del IVA y con Inversión del Sujeto Pasivo, se podría hacerse. El procedimiento es el siguiente: se hará constar tanto en el contrato de arras como en la escritura de compraventa esta renuncia. Sobre todo, en el momento de formalizar la escritura de compraventa, deberá comunicar al Notario que lo desea hacer de esta manera y en la escritura deberá constar una cláusula con la mención expresa de esta operación. Al hacerlo de esta forma, deberías hacer una factura de venta sin repercutir IVA. Sólo hace falta hacer constar la mención Operación en la que se produzca la inversión del sujeto pasivo de acuerdo con lo establecido en el artículo 84. Uno. 2º. e) de la Ley del IVA. El comprador por su parte deberá autor repercutirse y liquidar el IVA. Tenemos a tu disposición un Asesor Financiero en crédito hipotecario acreditado por el Banco de España, ofreciendo un financiamiento a medida con las mejores condiciones que podrás encontrar en el mercado. Asegúrate de no arrepentirte de tus decisiones inmobiliarias. Búscanos. Te apoyaremos en lo que haga falta. Con nosotros tendrás siempre una buena decisión inmobiliaria garantizada. Si lo prefiere puede pasar por nuestras oficinas de la calle Gutenberg número 26 de Terrassa o bien llamar al / y uno de nuestros asesores le atenderá sin compromiso ¡Queremos estar en su presente y futuro!
Local comercial en venta en Segle XX en Terrassa
MAGNÍFICO LOCAL DE 180 M2 ÚTILES, 190 M2 CONSTRUIDOS EN DOS PLANTAS EN SEGLE XX. El local tiene está dividido en 2 plantas, salida de humos, agua, conductos de aire acondicionado, 2 escaparates, gran parking a 2 minutos del local para los clientes (Zona comercial Siglo XXI). Excelente ubicación, delante de las piscinas Vallparadis. Precio: 99.900€ Un buen hogar es aquel donde te sientes cómodo, si quieres iniciar una nueva vida, empieza por imaginarte tu futuro en esta vivienda. Por eso, cuando buscas el piso de tu vida, confía en profesionales con más de 20 años de experiencia. Somos la inmobiliaria en la que confían las familias de la zona para adquirir una vivienda. Tenemos a tu disposición un Asesor Financiero en crédito hipotecario acreditado por el Banco de España, ofreciendo un financiamiento a medida con las mejores condiciones que podrás encontrar en el mercado. Asegúrate de no arrepentirte de tus decisiones inmobiliarias. Búscanos. Te apoyaremos en lo que haga falta. Con nosotros tendrás siempre una buena decisión inmobiliaria garantizada. Si lo prefiere puede pasar por nuestras oficinas de la calle Gutenberg número 26 de Terrassa, o bien llamar al / y uno de nuestros asesores le atenderá sin compromiso. ¡Queremos estar en su presente y futuro!
Local comercial en venta en Can Boada en Terrassa
¡ POSIBLE OCUPACIÓN DEL INMUEBLE, NO SE PUEDE VISITAR NI FINANCIAR! OPORTUNIDAD VENTA SIN POSESIÓN - CESIÓN DE REMATE! El inmueble no se puede visitar interiormente. Este tipo de compra no admite hipoteca. Lea LAS CONDICIONES a continuación. Magnífica oportunidad de almacén en Paseo Vint I Dos De Juliol situado en Terrassa - Barcelona. Tiene una superficie de 34 m2 construidos y 14 m2 útiles. Está situado en la sótano del edificio. Cuenta a su alrededor con una inmensa variedad de servicios, tanto de ocio como de necesidad. Desconocemos si el edificio dispone de ascensor. El inmueble no se puede visitar por desconocer su estado de ocupación, así como su distribución y estado de conservación interior. Al tratarse de una Cesión de Remate derivada de una subasta judicial, el importe de la cesión deberá ser aprobada por el juzgado competente. LA FOTO NO IDENTIFICA LA PROPIEDAD EXACTA DE VENTA, SOLO INFORMA DE LA ZONA. CONDICIONES ESPECIALES DE COMPRA: En este tipo de adquisiciones se requieren una serie de requisitos detallados a continuación: 1º. - No permite hipoteca sobre el inmueble, los bancos no financian estas operaciones. 2º. - LA PROPIEDAD NO SE PUEDE VER INTERIORMENTE, pero sí saber su ubicación exacta (no disponemos de fotos del interior). 3º. - La obtención de las llaves dependerá del curso del procedimiento o la posible negociación con los ocupantes. 4º. - En el caso de que el cliente lo solicite, nuestros profesionales (abogado y procurador) podrán atender su procedimiento judicial hasta la obtención de llaves. Los honorarios de este servicio no están incluidos en el precio, consúltenos. 5º. - La ley exige al adjudicatario poner al día comunidad y IBI de los últimos 4 años en caso de que exista deuda (desconocemos deuda). 6º. - Gastos del comprador: ITP y registro. NO COBRAMOS COMISIÓN AL COMPRADOR. � Encuentra tu hogar ideal con nosotros � Descubre nuestras mejores ofertas en inmuebles y contacta con nosotros directamente a través de WhatsApp en
Local comercial en venta en Sant Pere Nord en Terrassa
LOCAL COMERCIAL DE 42 M2 ÚTILES Y 45 M2 CONSTRUIDOS EN SANT PERE NORD. Local ideal para peluquería, almacén, etc. Con persiana Eléctrica en perfecto estado con aseo. Al lado de la Av del Valles, CAP Nord de Sant Pera, en frente de la plaza Dolors Aleu, concretamente en la calle Periodista Grané en Terrassa. ¡No pierdas esta gran oportunidad de adquirir este local y contacta con nosotros! Precio: 47.800 € Si quieres iniciar una nueva vida, empieza por imaginarte tu futuro en este Local. Por eso, cuando buscas un local, confía en profesionales con más de 30 años de experiencia. Asegúrate de no arrepentirte de tus decisiones inmobiliarias. Búscanos. Te apoyaremos en lo que haga falta. Tenemos a tu disposición un Asesor Financiero en crédito hipotecario acreditado por el Banco de España, ofreciendo un financiamiento a medida con las mejores condiciones que podrás encontrar en el mercado Con nosotros tendrás siempre una buena decisión inmobiliaria garantizada. Si lo prefiere puede pasar por nuestras oficinas de la calle Gutenberg número 26 de Terrassa o bien llamar al / y uno de nuestros asesores le atenderá sin compromiso. ¡Queremos estar en su presente y futuro!
Local comercial en venta en Ca n'Anglada en Terrassa
West Side vende: Os damos la bienvenida a este local situado en Terrassa, Barcelona. El inmueble se distribuye en 2 plantas. La planta baja es diáfana y con techos altos y mucha claridad y la segunda se puede utilizar como altillo, despacho. Tiene 1 aseo. Está situado en el centro de Terrassa. En sus alrededores encontramos escuelas, supermercados, bancos, bibliotecas, farmacias, oficinas de correos y centros deportivos. En términos de accesibilidad, la propiedad dispone de múltiples conexiones y cuenta con fácil acceso a N-150. No dude en llamar y pedir más información.
Local comercial en venta en Can Boada en Terrassa
Amplio y diáfano local de 185.00 m. de superficie, antiguamente se utilizaba como almacén, por lo que tiene infinitas posibilidades para establecer su negocio. En el interior dispone de cocina y un baño completo, por lo que ya cuenta con instalación de agua y gas. En la zona encontrará un sinfín de servicios, como son supermercados, bancos, centros de salud, zonas ajardinadas, colegios y transporte público, lo que garantiza la concurrencia de público. ¡No deje escarpar la oportunidad de establecer su negocio en el centro y visítelo!
Local comercial en venta en Sant Pere en Terrassa
Local comercial a pie de calle, en uno de los mejores barrios de Terrassa, Sant pere es una zona muy demandada por su buena ubicación, es muy residencial con comercios de aproximación, escuelas, paradas de tren y autobús a pocos minutos. El Local dispone de 80 m2, es una sala diáfana separada por un cristal pavé que se puede mantener o se puede quitar sin problema. Techos de 3m2. Ancho de entrada 3m2. Dispone de un baño con posibilidad de poder poner uno más. La zona te va a encantar, ven a visitarlo! Precio: 99.900€ Un buen hogar es aquel donde te sientes cómodo, si quieres iniciar una nueva vida, empieza por imaginarte tu futuro en esta vivienda. Por eso, cuando buscas el piso de tu vida, confía en profesionales con más de 20 años de experiencia. Somos la inmobiliaria en la que confían las familias de la zona para adquirir una vivienda. Tenemos a tu disposición un Asesor Financiero en crédito hipotecario acreditado por el Banco de España, ofreciendo un financiamiento a medida con las mejores condiciones que podrás encontrar en el mercado. Asegúrate de no arrepentirte de tus decisiones inmobiliarias. Búscanos. Te apoyaremos en lo que haga falta. Con nosotros tendrás siempre una buena decisión inmobiliaria garantizada. Si lo prefiere puede pasar por nuestras oficinas de la calle Gutenberg número 26 de Terrassa o bien llamar al / y uno de nuestros asesores le atenderá sin compromiso ¡Queremos estar en su presente y futuro!
Local comercial en venta en Les Arenes - La Grípia Can Montllor en Terrassa
MAGNÍFICO LOCAL DE 40 M2 CON LICENCIA DE BAR EN LA GRÍPIA Local comercial con licencia de bar en vigor, ubicado en una zona residencial con buena visibilidad y paso de gente, en el barrio de La Grípia. El local cuenta con: Cocina equipada, Barra de servicio, Zona de comedor interior, Terraza exterior con gran potencial (ideal como reclamo y para aprovechar durante todo el año), Almacén y aseos, Instalaciones listas para retomar la actividad con mínima inversión. Características destacadas: Licencia activa, Buena distribución, Luminoso y con ventilación natural, Cerca de transporte público y zonas residenciales y con Salida de humos Tiene persiana metálica de acceso y puerta de entrada de aluminio. Una opción ideal para abrir tu propio negocio o como inversión para rentabilidad. Precio: 59.900€ Tenemos a tu disposición un Asesor Financiero en crédito hipotecario acreditado por el Banco de España, ofreciendo un financiamiento a medida con las mejores condiciones que podrás encontrar en el mercado. Asegúrate de no arrepentirte de tus decisiones inmobiliarias. Búscanos. Te apoyaremos en lo que haga falta. Con nosotros tendrás siempre una buena decisión inmobiliaria garantizada. Si lo prefiere puede pasar por nuestras oficinas de la calle Gutenberg número 26 de Terrassa o bien llamar al / y uno de nuestros asesores le atenderá sin compromiso ¡Queremos estar en su presente y futuro! Tenemos a tu disposición un Asesor Financiero en crédito hipotecario acreditado por el Banco de España, ofreciendo un financiamiento a medida con las mejores condiciones que podrás encontrar en el mercado. Asegúrate de no arrepentirte de tus decisiones inmobiliarias. Búscanos. Te apoyaremos en lo que haga falta. Con nosotros tendrás siempre una buena decisión inmobiliaria garantizada. Si lo prefiere puede pasar por nuestras oficinas de la calle Gutenberg número 26 de Terrassa o bien llamar al / y uno de nuestros asesores le atenderá sin compromiso ¡Queremos estar en su
Local comercial en venta en Egara en Terrassa
B&N IMMOBLES pone a su disposición este magnífico local comercial. Está ubicado en una zona inmejorable, en Sant Pere Nord, rodeado de servicios y muy bien comunicado. Este local comercial se distribuye en dos alturas, ofreciendo un espacio versátil y funcional. Al entrar, nos recibe una luminosa zona diáfana de 30 m² con un amplio escaparate, ideal para exhibición o recepción de clientes. Desde aquí, se accede a un aseo de cortesía y a una espaciosa sala de 45 m², que cuenta con salida a un patio interior. Una escalera nos conduce a la planta superior, donde encontramos una sala polivalente de 30 m², perfecta para oficina, sala de reuniones o cualquier otro uso según las necesidades del negocio. QUEREMOS QUE TENGAS TU HOGAR.. . El que has visto, el que te ha ilusionado, el que te ha llevado a soñar con la vida que quieres.. . Por eso, en B&N Immobles ponemos a tu disposición un Asesor Financiero en crédito hipotecario acreditado por el Banco de España, ofreciendo un financiamiento a medida con las mejores condiciones que podrás encontrar en el mercado. -Hacemos un estudio gratuito de viabilidad. Analizamos tu caso y te explicamos las mejores opciones entre diferentes entidades bancarias. -Gestionamos la tramitación. Presentamos la solicitud y obtenemos las mejores ofertas para ti. -Gestionamos la tasación y la firma. Te acompañamos a lo largo del proceso y te ayudamos a tomar la mejor decisión. Para poder ofrecerte el mejor servicio y el tiempo que te mereces, no dudes en contactar con nosotros o, si lo prefieres, visita nuestra oficina situada en Plaza de Can Roca n-13, Terrassa, y uno de nuestros asesores te informará con mucho gusto.
Local comercial en venta en Sant Pere en Terrassa
Local de nueva construcción, es nuevo a estrenar, no ha habido actividad anteriormente. uso actual es almacén. CUENTA CON 124 mts2 HABITABLES y lo compone 2 plantas de 60 mts cada una, es muy luminoso, la parte trasera tiene sol todo el dia. Acera muy amplia. El local ES DE OBRA NUEVA, todavía no tiene Baño ni suelo y esta SIN AGUA Y SIN LUZ. IDEAL PARA HACERLO A TU GUSTO. Posibilidad de Alquiler opción de compra. Posibilidad permuta, cambiar local por apartamento en la playa, mismo valor A un paso del mercado, muy cerca de la estación del renfe y a 5 minutos de colegios y de todos los servicios. Se encuentra en el centro de Terrassa, en sus alrededores encontramos el Hospital Universitari Mútua Terrassa, el Campus Training, supermercados, bancos, bibliotecas, farmacias, oficinas de correos, paradas de autobús, la estación de metro Terrassa y la estación de tren Terrassa. Con fácil acceso a C-58. Terrassa dista unos veinte kilómetros de la ciudad de Barcelona, la capital de la provincia y de la comunidad autónoma. El municipio alcanzó en 2005 la cifra de doscientos mil habitantes y en 2019 su censo era de 220 556 habitantes, lo que implica que sea la tercera ciudad más poblada de Cataluña, tras Barcelona y Hospitalet de Llobregat, y justo por delante de Badalona y la vigesimoprimera de España. Además, este municipio es un importante nudo de comunicaciones por carretera, autopista y ferrocarril. Cuenta con varias escuelas universitarias y es sede de la diócesis de Tarrasa. ".
Piso en alquiler en Barri del Centre en Terrassa
ALQUILER DE TEMPORADA En pleno centro de Terrassa, hay un piso que encaja con quien quiere tener la ciudad a sus pies sin renunciar a un hogar amplio y práctico. Sales a la calle y tienes transporte público, comercios, servicios y vida urbana a pocos minutos andando; vuelves a casa y te encuentras un espacio cuidado, reformado y listo para entrar a vivir sin obras ni complicaciones. Al entrar, la sensación es clara: aquí se vive fácil. Dos habitaciones dobles permiten separar bien descanso y vida diaria. Por otro lado, los dos espacios adicionales se adaptan a lo que necesites en cada etapa: despacho para teletrabajo, zona de estudio, vestidor, cuarto de juegos o un rincón extra para invitados. Además, contar con un baño completo y un aseo independiente hace el día a día más ágil, sobre todo cuando compartes piso, trabajas desde casa o recibes visitas con frecuencia. En cuanto a la ubicación, estar en la zona centro de Terrassa significa ganar tiempo cada semana. Tienes autobuses a pocos pasos, conexión rápida con los puntos clave de la ciudad y salida cómoda hacia otras localidades. Menos desplazamientos largos, más margen para tu vida personal, tu familia o tu proyecto profesional. Este piso está pensado para una pareja profesional, alguien que teletrabaja, o dos personas que quieren compartir un hogar bien ubicado, con buena imagen y espacios definidos para no vivir "encima" de los demás. Aquí puedes separar trabajo y descanso, recibir gente sin agobios y organizar tu día a día con lógica. Si ahora estás viviendo en otra vivienda y estás valorando el cambio, en Finques Vall también podemos ayudarte a vender tu propiedad actual para que el traslado sea más sencillo. Y si en paralelo estás planteando dar el salto a la compra en un futuro próximo, podemos orientarte en todo el proceso de financiación con los bancos con los que colaboramos. Si sientes que este piso encaja contigo, no lo dejes pasar. � Contacta con Finques Vall para agendar tu visita. � Envíanos
Local comercial en venta en Segle XX en Terrassa
Se vende local comercial de 20 m² en una ubicación privilegiada en la Carretera Montcada, una de las arterias principales de Terrassa. Este espacio es ideal para emprendedores y pequeños negocios que buscan establecerse en una zona con alta visibilidad y tránsito peatonal. Características del Local: Superficie: 20 m² diáfanos, perfectos para adaptar a cualquier tipo de negocio. Escaparate: Amplio escaparate que ofrece gran visibilidad desde la calle. Estado: En buen estado, listo para entrar. Ventajas de la Zona: Entorno: Ubicado en una zona comercial consolidada, con una gran cantidad de negocios y oficinas alrededor, lo que asegura un flujo constante de potenciales clientes. Servicios: Rodeado de una amplia variedad de servicios, incluyendo bancos, supermercados, restaurantes y tiendas de todo tipo. Afluencia: Zona de alto tránsito tanto peatonal como vehicular, lo que garantiza una gran visibilidad para tu negocio. Transporte: Excelente conexión con transporte público, con varias paradas de autobús cercanas y fácil acceso a la estación de tren. No pierdas la oportunidad de establecer tu negocio en una de las mejores ubicaciones de Terrassa. ¡Contacta con nosotros para más información y para concertar una visita!
Casa adosada en venta en La Cogullada en Terrassa
MAGNÍFICA CASA ADOSADA DE 190 M2 ÚTILES Y 204 M2 CONSTRUIDOS, EN 3 PLANTAS, CON GARAJE Y TERRAZAS EN LA COGULLADA - Cerca del centro y de la salida a la autopista. - PLANTA BAJA: garaje tipo almacén con capacidad para 3 coches, o para adaptarlo como local o almacén. Tiene una parte al final con un pequeño patio donde entra luz natural. - PLANTA PRIMERA: 2 habitaciones (1 doble y 1 individual, ) un baño completo con plato de ducha y una estupenda cocina independiente, salón-comedor, con salida a un balcón y con un acogedor fuego a tierra, el comedor se ubican las escaleras para subir a la segunda planta. - PLANTA SEGUNDA: Al acceder a ella, encontramos, a mano izquierda, una habitación doble con una terraza estupenda, a mano derecha de las escaleras, un gran baño completo con bañera, que da lugar a otro dormitorio, actualmente estudio, con espacio para lavandería, y otra bonita terraza ideal para disfrutar de las comidas al aire libre. Toda la vivienda es exterior y con luz natural. La calefacción es de gas natural, el suelo es de terrazo y la carpintería exterior de aluminio. Está ubicada a 5 minutos del centro y junto a la salida a la autopista, en una zona muy tranquila. Precio: 339.900 € Un buen hogar es aquel donde te sientes cómodo, si quieres iniciar una nueva vida, empieza por imaginarte tu futuro en esta vivienda. Por eso, cuando buscas el piso de tu vida, confía en profesionales con más de 20 años de experiencia. Somos la inmobiliaria en la que confían las familias de la zona para adquirir una vivienda. Tenemos a tu disposición un Asesor Financiero en crédito hipotecario acreditado por el Banco de España, ofreciendo un financiamiento a medida con las mejores condiciones que podrás encontrar en el mercado. Asegúrate de no arrepentirte de tus decisiones inmobiliarias. Búscanos. Te apoyaremos en lo que haga falta. Con nosotros tendrás siempre una buena decisión inmobiliaria garantizada. Si lo prefiere puede pasar por nuestras oficinas d
Garaje en venta en Sant Pere Nord en Terrassa
Se ofrece un local comercial ubicado en Sant Pere Nord, Terrassa, en una zona tranquila y cercana a las Ramblas Francesc Macià, rodeado de comercios y con fácil acceso. Actualmente, el local se utiliza como aparcamiento, con 7 plazas de parking alquiladas, lo que proporciona una rentabilidad inmediata. Este local cuenta con 233 m² es versátil y puede adaptarse para diversos usos, como almacén, taller o comercio. La propiedad ofrece una excelente oportunidad de inversión, con un flujo de ingresos constante gracias al alquiler de las plazas de parking y el potencial para otros usos. Ubicación privilegiada: El local está situado en una zona tranquila de Sant Pere Nord, una de las áreas más solicitadas de la ciudad por su proximidad a las Ramblas Francesc Macià, una de las principales vías comerciales de Terrassa. La cercanía a esta zona de alta circulación garantiza una excelente visibilidad y accesibilidad para clientes y proveedores. Además, el área cuenta con una amplia variedad de comercios, servicios y restaurantes, lo que contribuye a un entorno dinámico y comercial. Potencial de uso: Este local no solo es una opción atractiva para aquellos que deseen establecer un negocio comercial, sino que también ofrece una gran versatilidad para otros tipos de actividades. Su espacio diáfano permite adaptarlo fácilmente a las necesidades de un almacén, taller o incluso una oficina. Además, la propiedad cuenta con unas condiciones que garantizan una óptima rentabilidad desde el momento en que se adquiera, ya que se encuentra alquilado actualmente, lo que proporciona un flujo de ingresos inmediato. Para más información o para agendar una visita, no dude en contactarnos. QUEREMOS QUE TENGAS TU HOGAR. El que has visto, el que te ha ilusionado, el que te ha llevado a soñar con la vida que quieres... Por eso, en B&N Immobles ponemos a tu disposición un Asesor Financiero en crédito hipotecario acreditado por el Banco de España, ofreciendo un financiamiento a medida con las me




























































































































































































































